REF. SP-35953
4
3
254m2
193m2
800 Mts.
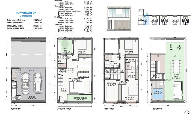
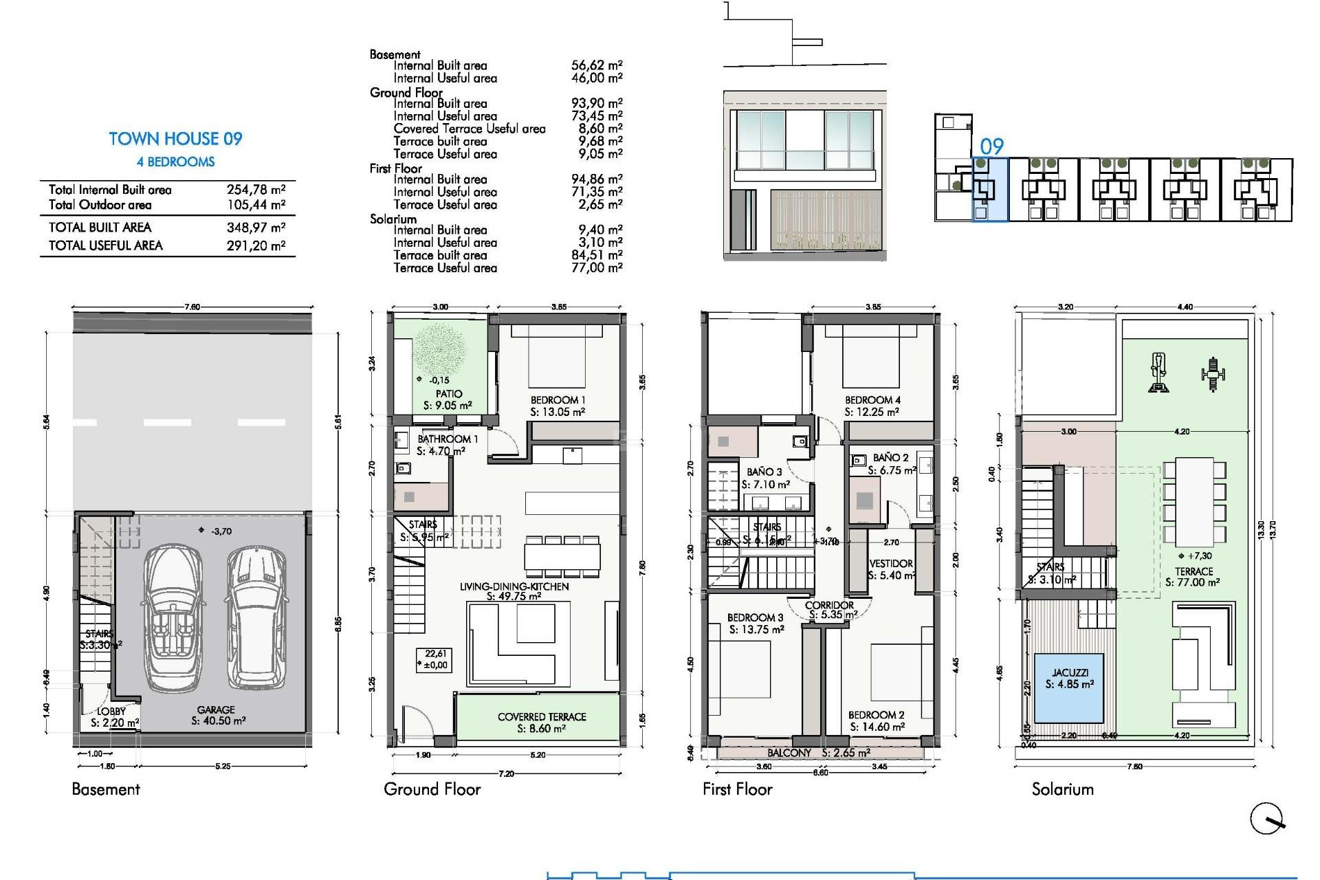
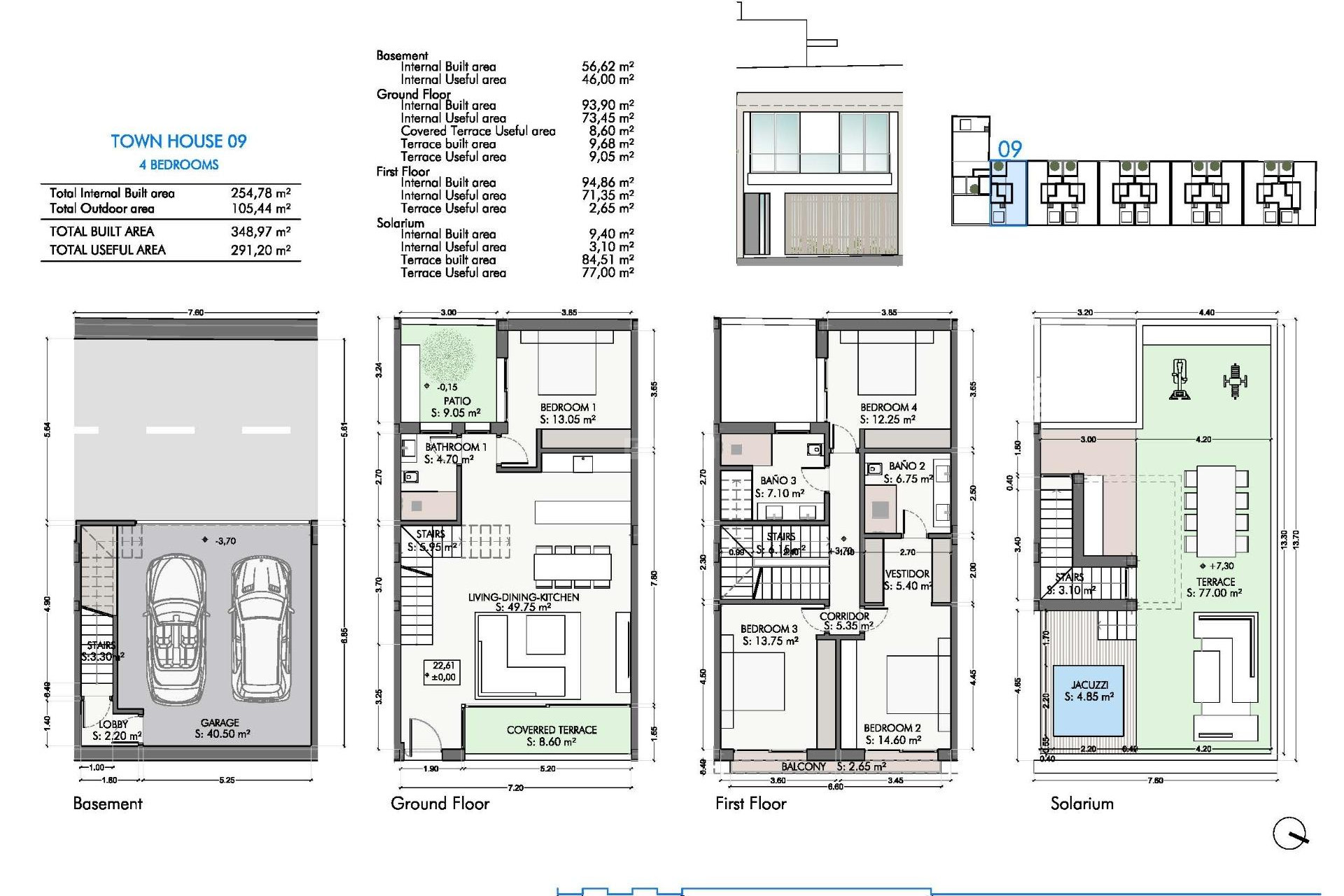
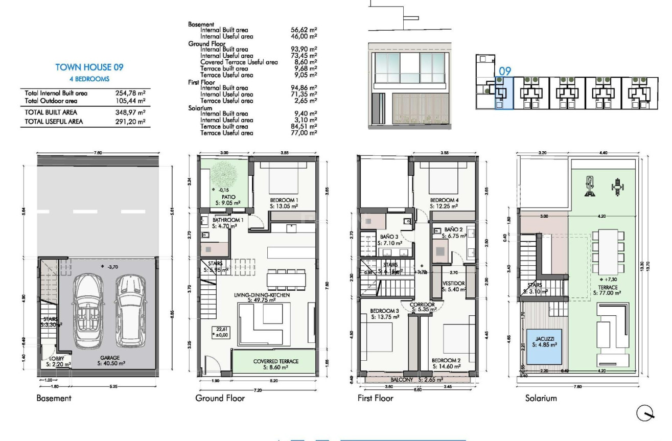
Luksusowe, nowo wybudowane wille, apartamenty i kamienice w San Pedro de Alcantara w Marbelli Ekskluzywna inwestycja mieszkaniowa w pobliżu plaży Odkryj tę wyjątkową nową inwestycję, oferującą niepowtarzalną kolekcję willi, kamienic i apartamentów w San Pedro de Alcantara, jednej z najbardziej pożądanych lokalizacji na Costa del Sol. Idealnie położony zaledwie 800 metrów od Morza Śródziemnego i tuż obok tętniącego życiem bulwaru, projekt ten łączy nowoczesny styl życia z bezkonkurencyjną lokalizacją. Otoczeni terenami zielonymi i w odległości spaceru od centrum miasta, mieszkańcy mają łatwy dostęp do restauracji, sklepów, kawiarni i wszystkich niezbędnych usług. San Pedro de Alcantara słynie z relaksującej atmosfery, pięknej promenady i bliskości Marbelli, co czyni ją doskonałym miejscem zarówno do stałego zamieszkania, jak i na domy wakacyjne. Szeroki wybór nowoczesnych domów Ta ekskluzywna inwestycja obejmuje 38 ekskluzywnych rezydencji oraz ograniczoną liczbę lokali komercyjnych. Nabywcy mogą wybierać spośród 11 luksusowych willi, 10 nowoczesnych kamienic i 17 stylowych apartamentów, wszystkie zaprojektowane z elegancką architekturą i wysokiej jakości wykończeniem. Dostępne są apartamenty z jedną, dwiema lub trzema sypialniami, oferujące opcje takie jak lokale na parterze z prywatnymi ogrodami lub lokale na najwyższym piętrze z tarasami i solariami. Każdy apartament posiada podziemny parking oraz schowek z dostępem windą. Przestronne kamienice z prywatnym solarium Kamienice oferują trzy lub cztery sypialnie oraz trzy łazienki, a ich przestronny rozkład rozciąga się na kilka poziomów. Większość lokali posiada prywatną windę łączącą wszystkie piętra, podziemny parking na dwa samochody oraz dodatkową, wszechstronną przestrzeń, którą można wykorzystać jako siłownię, pokój gier lub biuro. Na parterze znajduje się otwarta część dzienna z bezpośrednim dostępem do tarasów i patio, natomiast na piętrze znajdują się sypialnie z łazienkami. Całość dopełnia prywatne solarium na dachu, idealne do cieszenia się śródziemnomorskim klimatem. Wille klasy premium z prywatnym basenem i piwnicą Wille położone są na działkach o powierzchni ponad 300 m2 i oferują pięć lub sześć sypialni rozmieszczonych w piwnicy, na dwóch głównych piętrach oraz na tarasie na dachu, połączonych prywatną windą. Każda willa posiada prywatny basen, ogród oraz przestronne wnętrza zaprojektowane z myślą o luksusowym stylu życia. W piwnicy znajduje się parking, dodatkowe sypialnie oraz elastyczna przestrzeń do wypoczynku lub pracy. Parter płynnie łączy się z zewnętrznymi tarasami i prywatnym basenem, natomiast na piętrze znajdują się sypialnie z łazienkami oraz rozległe widoki. Wysokiej jakości wykończenia i nowoczesny komfort Wszystkie nieruchomości są zbudowane zgodnie z najwyższymi standardami i wyposażone w w pełni zainstalowaną klimatyzację, ogrzewanie podłogowe, designerskie kuchnie z urządzeniami marki Siemens oraz wzmocnione drzwi antywłamaniowe z systemami alarmowymi. Doskonała lokalizacja w pobliżu pola golfowego i kluczowych atrakcji Osiedle to jest doskonale położone – klub golfowy Guadalmina znajduje się zaledwie 1,2 km od niego, plaża 0,8 km, a bulwar San Pedro 0,6 km. Marbella znajduje się 10 km stąd, a lotnisko w Maladze około 65 km, co zapewnia doskonałe połączenia komunikacyjne. Idealna inwestycja na Costa del Sol Ta ekskluzywna inwestycja oferuje rzadką okazję do nabycia luksusowej nieruchomości w jednej z najbardziej pożądanych dzielnic Marbelli. Skontaktuj się z nami już dziś, aby uzyskać więcej informacji lub umówić się na oglądanie i zapewnić sobie nowy dom w San Pedro de Alcantara. 631