REF. SP-35953
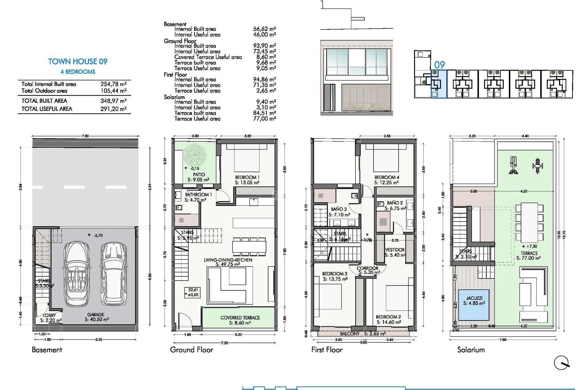
4
3
254m2
193m2
800 Mts.
Luxuriöse Neubau-Villen, Apartments und Reihenhäuser in San Pedro de Alcántara, Marbella Exklusive Wohnanlage in Strandnähe Entdecken Sie diese außergewöhnliche Neubauanlage mit einer einzigartigen Auswahl an Villen, Reihenhäusern und Apartments in San Pedro de Alcántara, einer der begehrtesten Gegenden an der Costa del Sol. Ideal gelegen, nur 800 Meter vom Mittelmeer entfernt und direkt an der belebten Promenade, verbindet dieses Projekt modernes Wohnen mit einer unschlagbaren Lage. Umgeben von Grünflächen und nur wenige Gehminuten vom Stadtzentrum entfernt, genießen die Bewohner einfachen Zugang zu Restaurants, Geschäften, Cafés und allen wichtigen Dienstleistungen. San Pedro de Alcantara ist bekannt für seine entspannte Atmosphäre, die schöne Promenade und die Nähe zu Marbella, was es zu einem erstklassigen Ziel sowohl für den dauerhaften Wohnsitz als auch für Ferienhäuser macht. Große Auswahl an zeitgemäßen Wohnräumen Diese Boutique-Anlage umfasst 38 exklusive Wohneinheiten und eine begrenzte Anzahl an Gewerbeeinheiten. Käufer können zwischen 11 Luxusvillen, 10 modernen Reihenhäusern und 17 stilvollen Apartments wählen, die alle durch elegante Architektur und hochwertige Ausstattung bestechen. Die Apartments sind mit einem, zwei oder drei Schlafzimmern erhältlich und bieten Optionen wie Erdgeschosswohnungen mit privaten Gärten oder Dachgeschosswohnungen mit Terrassen und Solariums. Jedes Apartment verfügt über einen Tiefgaragenstellplatz und einen Abstellraum mit Aufzugszugang. Geräumige Reihenhäuser mit privatem Solarium Die Reihenhäuser bieten drei oder vier Schlafzimmer und drei Badezimmer sowie großzügige Grundrisse, die sich über mehrere Ebenen erstrecken. Die meisten Einheiten verfügen über einen privaten Aufzug, der alle Etagen verbindet, eine Tiefgarage für zwei Autos und zusätzlichen vielseitig nutzbaren Raum, der als Fitnessraum, Spielzimmer oder Büro genutzt werden kann. Das Erdgeschoss verfügt über einen offenen Wohnbereich mit direktem Zugang zu Terrassen und Innenhöfen, während das Obergeschoss Schlafzimmer mit eigenen Badezimmern umfasst. Ein privates Dachterrasse-Solarium rundet das Anwesen ab und ist ideal, um das mediterrane Klima zu genießen. Premium-Villen mit privatem Pool und Keller Die Villen stehen auf Grundstücken von über 300 m² und bieten fünf oder sechs Schlafzimmer, verteilt auf Untergeschoss, zwei Hauptetagen und eine Dachterrasse, die über einen privaten Aufzug erreichbar ist. Jede Villa verfügt über einen privaten Pool, einen Garten und großzügige Innenräume, die für luxuriöses Wohnen konzipiert sind. Das Untergeschoss bietet Parkplätze, zusätzliche Schlafzimmer und flexible Räume für Freizeit oder Arbeit. Das Erdgeschoss geht nahtlos in die Außenterrassen und den privaten Pool über, während das Obergeschoss Schlafzimmer mit eigenem Bad und freiem Ausblick bietet. Hochwertige Ausstattung und moderner Komfort Alle Immobilien sind nach höchsten Standards gebaut und verfügen über eine voll installierte Klimaanlage, Fußbodenheizung, Designerküchen mit Siemens-Geräten sowie verstärkte Sicherheitstüren mit Alarmanlagen. Erstklassige Lage in der Nähe von Golfplätzen und wichtigen Zielen Diese Wohnanlage ist perfekt gelegen: Der Guadalmina Golf Club ist nur 1,2 km entfernt, der Strand 0,8 km und der San Pedro Boulevard 0,6 km. Marbella ist 10 km entfernt und der Flughafen Málaga liegt etwa 65 km entfernt, was eine hervorragende Anbindung gewährleistet. Ideale Investition an der Costa del Sol Diese exklusive Wohnanlage bietet eine seltene Gelegenheit, eine Luxusimmobilie in einer der begehrtesten Gegenden von Marbella zu erwerben. Kontaktieren Sie uns noch heute für weitere Informationen oder um einen Besichtigungstermin zu vereinbaren und sich Ihr neues Zuhause in San Pedro de Alcántara zu sichern. 631