REF. NB-23096
3
2
215m2
100m2
317m2
Tak
10000 Mts.
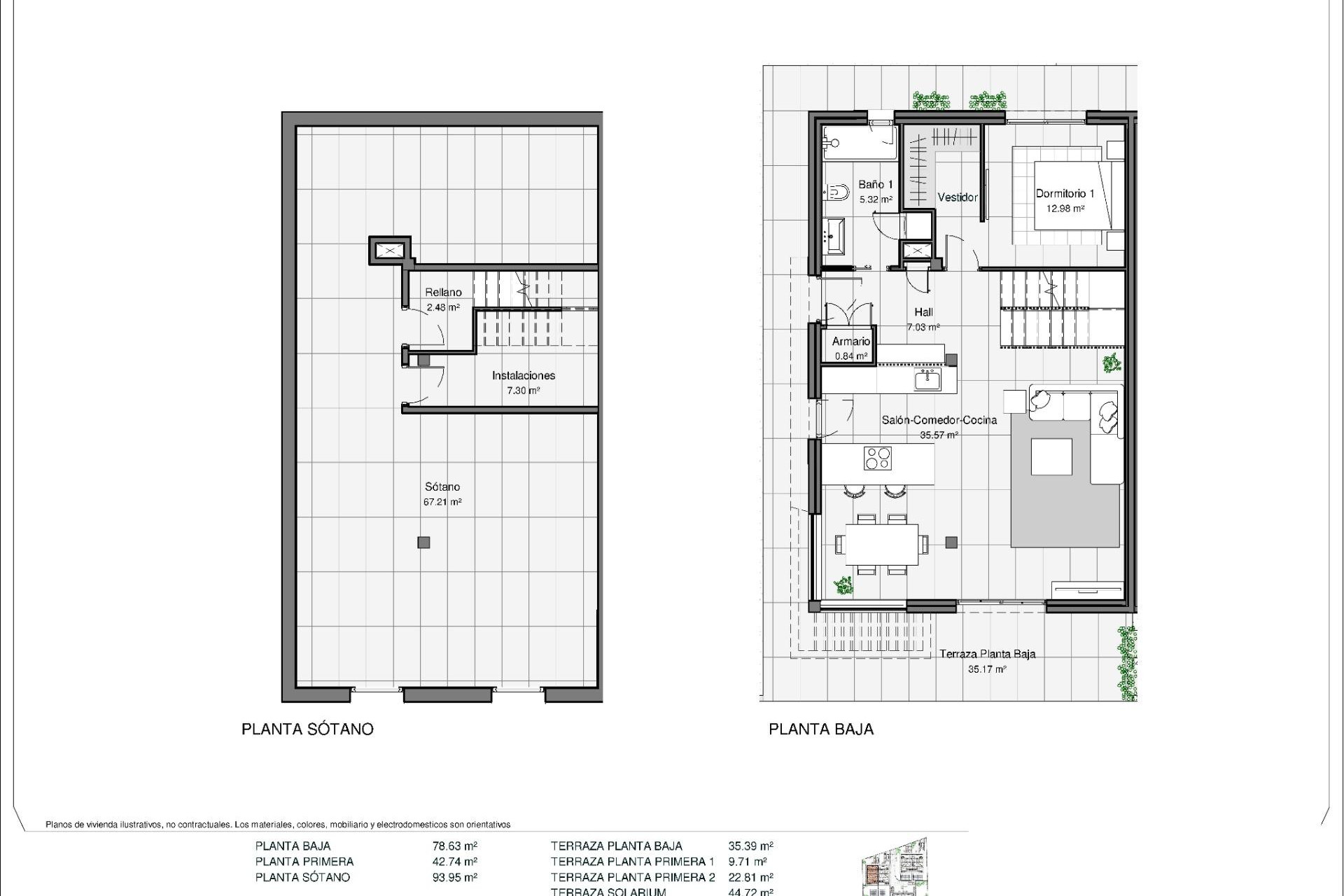
RYNEK PIERWOTNY WILLE W ZABUDOWIE BLIŹNIACZEJ W POLOP Rynek Pierwotny wille w zabudowie bliźniaczej z kilkoma tarasami i solarium, całkowicie ogrodzone, z parkingiem dla samochodów i prywatnym basenem w Polop. Nowoczesne nieruchomości z 3 przestronnymi sypialniami z wbudowanymi szafami (główna na parterze, z łazienką i garderobą en suite), 2 przestronnymi łazienkami, dużym salonem-jadalnią z otwartą kuchnią, przestronnymi tarasami. Kuchnia wyposażona w szafki dolne i blaty ze silestone, z płytą ceramiczną, piekarnikiem, okapem, lodówką, pralką, zmywarką i grzejnikiem aerotermalnym. Pierwsze cechy: stolarka wewnętrzna z drewna i białych lakierowanych laminatów, stolarka zewnętrzna z antracytowo-szarego PCV z podwójnymi szybami i przekładką termiczną oraz automatyczne żaluzje z aluminiowymi listwami, ceramiczne podłogi pierwszej jakości antypoślizgowe, gładkie ściany, drzwi antywłamaniowe z 5 punktami kotwiczenia, duże wbudowane szafy. Miasto Polop oferuje niesamowitą gamę opcji dla miłośników wspaniałego wypoczynku na świeżym powietrzu w otoczeniu przyrody i niezrównanego spokoju. Gmina cieszy się śródziemnomorskim klimatem z niższymi temperaturami i czystszym powietrzem, położona niecałe 10 kilometrów od Benidormu, Altei i ich plaż. Rozciąga się od rzek Guadalest i Algar do miasta Villajoyosa, w tym plaż Albir i Benidorm; w głębi lądu graniczy z Callosa i Guadalest.