REF. NB-23096
3
2
215m2
100m2
317m2
Ja
10000 Mts.
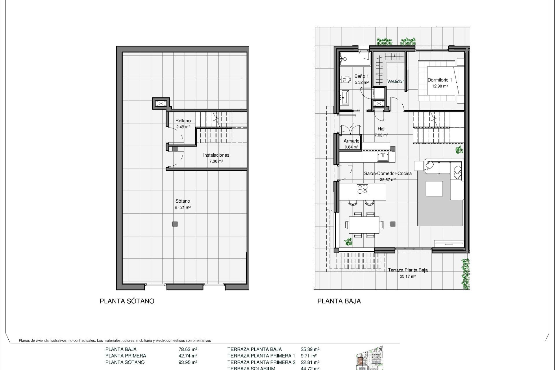
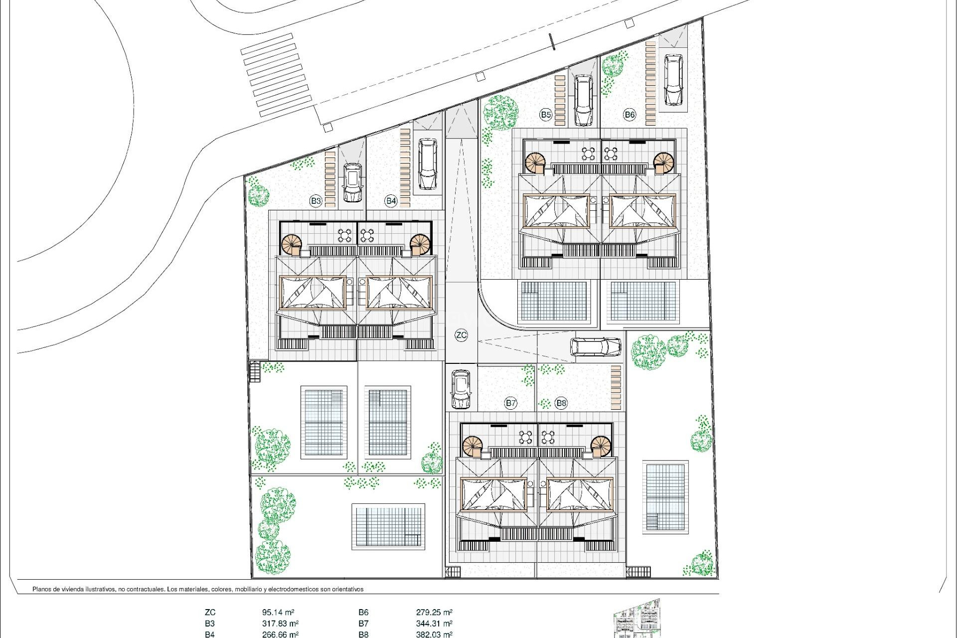
NEU GEBAUTE DOPPELHAUSHÄLFTEN IN POLOP Neubau von modernen Doppelhaushälften mit mehreren Terrassen und Solarium, komplett eingezäunt, mit Parkplatz für Fahrzeuge und privatem Swimmingpool in Polop. Moderne Immobilien mit 3 geräumigen Schlafzimmern mit Einbauschränken (das Hauptschlafzimmer im Erdgeschoss, mit Bad und Ankleidezimmer en suite), 2 geräumigen Badezimmern, großem Wohn-Esszimmer mit offener Küche, großen Terrassen. Die Küche ist mit Unterschränken und Silestone-Arbeitsplatten ausgestattet, mit Cerankochfeld, Backofen, Dunstabzugshaube, Kühlschrank, Waschmaschine, Geschirrspüler und aerothermischer Heizung. Erste Qualitäten: Innenschreinerarbeiten in Holz und weiß lackierten Laminaten, Außenschreinerarbeiten in anthrazitgrauem PVC mit Doppelverglasung und Wärmebrückenunterbrechung und automatischen Jalousien mit Aluminiumlamellen, rutschfeste Keramikböden erster Qualität, glatte Wände, Sicherheitstür mit 5 Ankerpunkten, große Einbauschränke. Die Stadt Polop bietet eine Vielzahl von Möglichkeiten für Liebhaber der Natur und der unvergleichlichen Ruhe. Die Gemeinde genießt ein mediterranes Klima mit kühleren Temperaturen und sauberer Luft und liegt weniger als 10 Kilometer von Benidorm, Altea und deren Stränden entfernt. Sie erstreckt sich von den Flüssen Guadalest und Algar bis zur Stadt Villajoyosa, einschließlich der Strände von Albir und Benidorm; im Landesinneren grenzt sie an Callosa und Guadalest.