REF. NB-71396
3
3
210m2
629m2
Sí
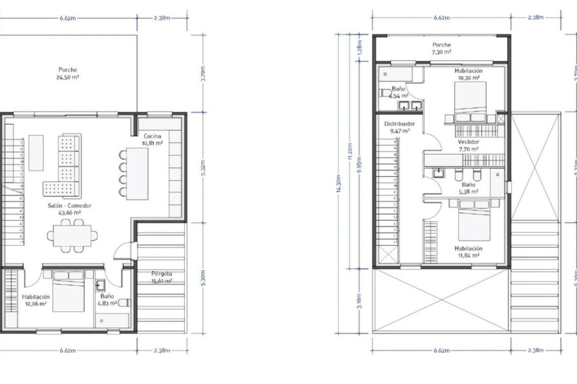
Modernas villas de nueva construcción cerca de Estepona, cerca de la playa y del campo de golf Valle Romano Vida mediterránea contemporánea en la Costa del Sol Descubra este elegante proyecto de villas de nueva construcción situado junto a Estepona, en la Costa del Sol. Diseñadas con una arquitectura minimalista, líneas limpias y espacios abiertos y luminosos, estas viviendas combinan simplicidad, eficiencia y un estilo mediterráneo atemporal. Con orientación oeste, las villas disfrutan de una hermosa luz por la tarde y están idealmente situadas cerca de campos de golf, servicios y la playa. Estepona es una de las localidades más atractivas de la Costa del Sol, conocida por su encantador casco antiguo, su puerto deportivo, sus playas de arena y sus más de 320 días de sol al año. La zona ofrece una calidad de vida excepcional, que combina la gastronomía internacional, las tradiciones locales y un ambiente costero relajado. Los compradores pueden elegir entre dos tamaños de villa para adaptarse a sus necesidades: 160 m2 de superficie construida en una parcela de 434 m2 210 m2 de superficie construida en una parcela de 629 m2 Cada villa se distribuye en un semisótano y dos plantas principales, lo que ofrece una distribución equilibrada y práctica. El sótano incluye una sauna, un lavadero y un trastero, creando un espacio privado de bienestar y utilidad. En la planta baja, el salón y la cocina de planta abierta conectan directamente con la terraza delantera y la piscina ecológica privada. Esta planta también cuenta con un dormitorio y un cuarto de baño completo. La primera planta ofrece dos dormitorios adicionales y dos baños, uno de ellos en suite, junto con dos terrazas descubiertas en la parte delantera y trasera de la propiedad. Las amplias terrazas y el sistema de balcones dobles amplían las zonas de estar al aire libre, mejorando la conexión entre los espacios interiores y el entorno mediterráneo. Diseño energéticamente eficiente y especificaciones de alta calidad Estas villas están diseñadas para la vida moderna, priorizando el confort, la sostenibilidad y el bajo consumo energético. Las características principales incluyen: Cocinas y baños totalmente equipados Preinstalación para aire acondicionado por conductos con sistema aerotérmico o bomba de calor Sistema de energía renovable para agua caliente Iluminación LED empotrada en toda la vivienda Preinstalación para domótica Paneles fotovoltaicos para autoconsumo de 4 kW Clasificación energética de clase A El plazo de construcción es de aproximadamente 14 meses desde la compra. Excelente ubicación y distancias Playa a 1,8 km Valle Romano Golf a 1 km Marbella a 15 km Puerto Banús a 20 km Aeropuerto de Málaga a 75 km Asegúrese su villa contemporánea en Estepona Este proyecto ofrece una oportunidad única de adquirir una villa moderna y energéticamente eficiente en una ubicación privilegiada cerca del golf y del mar. Póngase en contacto con nosotros hoy mismo para recibir más información y reservar su nueva vivienda en la Costa del Sol.