REF. NB-71396
3
3
210m2
629m2
Yes
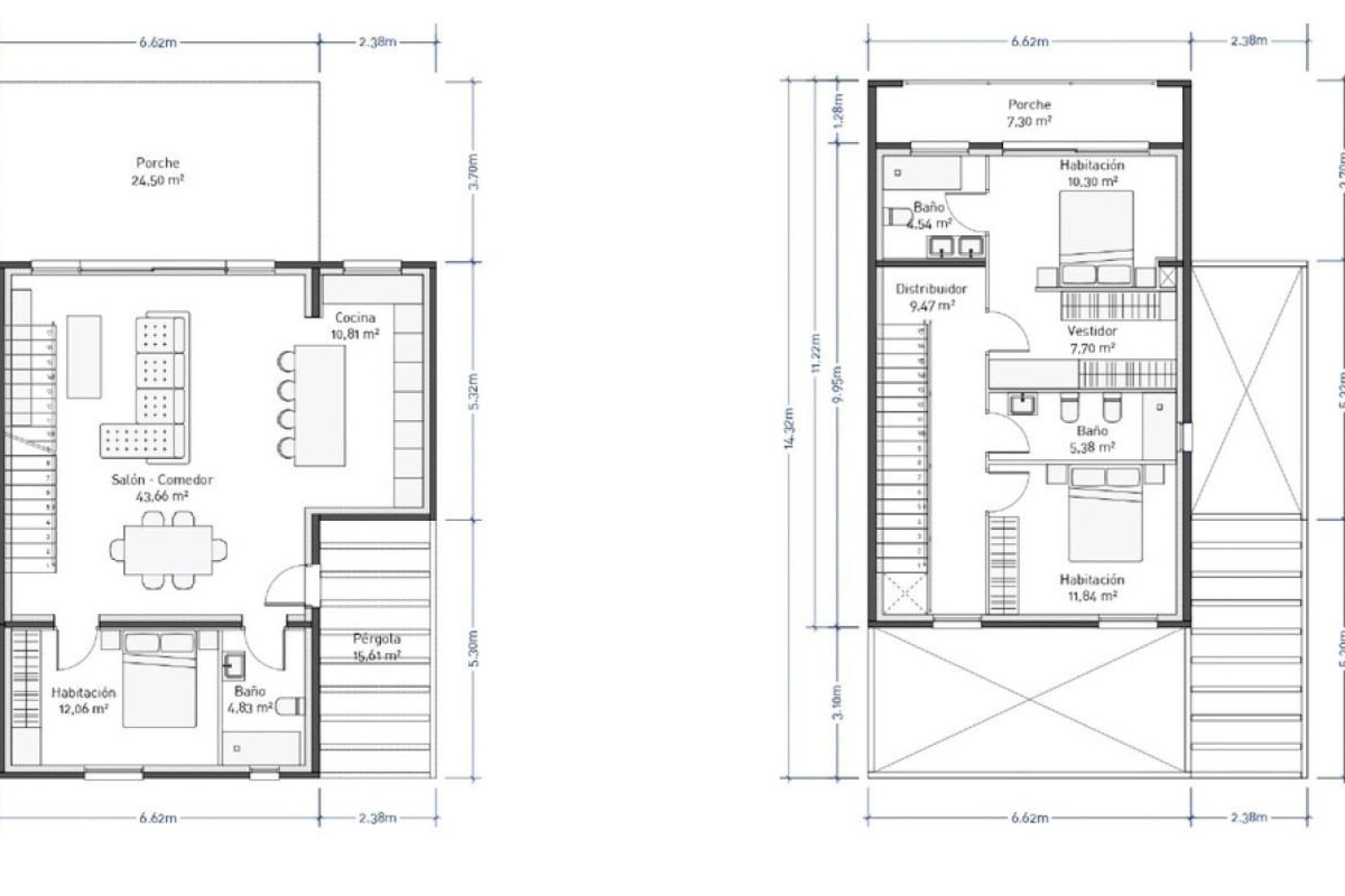
Modern New Build Villas Near Estepona Close to Beach and Valle Romano Golf Contemporary Mediterranean Living on the Costa del Sol Discover this elegant new build villa project located next to Estepona on the Costa del Sol. Designed with minimalist architecture, clean lines and bright open spaces, these homes combine simplicity, efficiency and timeless Mediterranean style. With a west facing orientation, the villas enjoy beautiful afternoon light and are ideally positioned close to golf courses, amenities and the beach. Estepona is one of the most attractive towns on the Costa del Sol, known for its charming old town, marina, sandy beaches and more than 320 days of sunshine per year. The area offers an exceptional quality of life, blending international gastronomy, local traditions and a relaxed coastal atmosphere. Buyers can choose between two villa sizes to suit their needs: 160 m2 built area on a 434 m2 plot 210 m2 built area on a 629 m2 plot Each villa is distributed over a semi basement and two main levels, offering a balanced and practical layout. The basement includes a sauna, laundry room and storage area, creating a private wellness and utility space. On the ground floor, the open plan living room and kitchen connect directly to the front terrace and private ecological swimming pool. This level also features one bedroom and a full bathroom. The first floor offers two additional bedrooms and two bathrooms, one of them en suite, along with two uncovered terraces at the front and rear of the property. Large terraces and a double balcony system extend the living areas outdoors, enhancing the connection between interior spaces and the Mediterranean environment. Energy Efficient Design and High Quality Specifications These villas are designed for modern living, prioritizing comfort, sustainability and low energy consumption. Key features include: Fully equipped kitchens and bathrooms Pre installation for ducted air conditioning with aerothermal or heat pump system Renewable energy system for hot water LED recessed lighting throughout Pre wiring for home automation Photovoltaic panels for self consumption 4 kW Energy rating Class A The construction period is approximately 14 months from purchase. Excellent Location and Distances Beach 1.8 km Valle Romano Golf 1 km Marbella 15 km Puerto Banus 20 km Malaga Airport 75 km Secure Your Contemporary Villa in Estepona This project offers a rare opportunity to own a modern, energy efficient villa in a privileged location near golf and the sea. Contact us today to receive more information and reserve your new home on the Costa del Sol.