REF. SP-11722
5
5
655m2
520m2
1.690m2
Sí
3000 Mts.
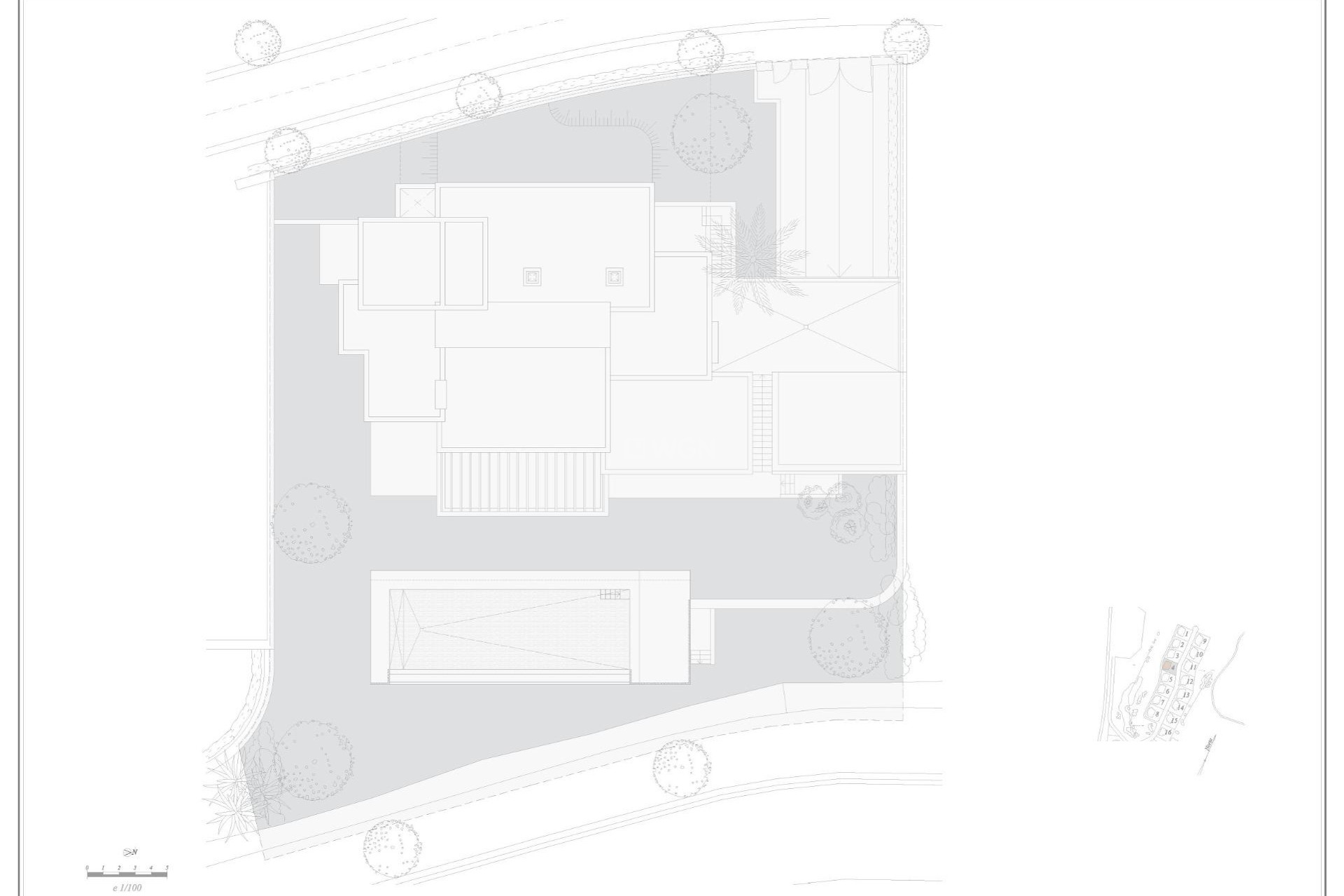
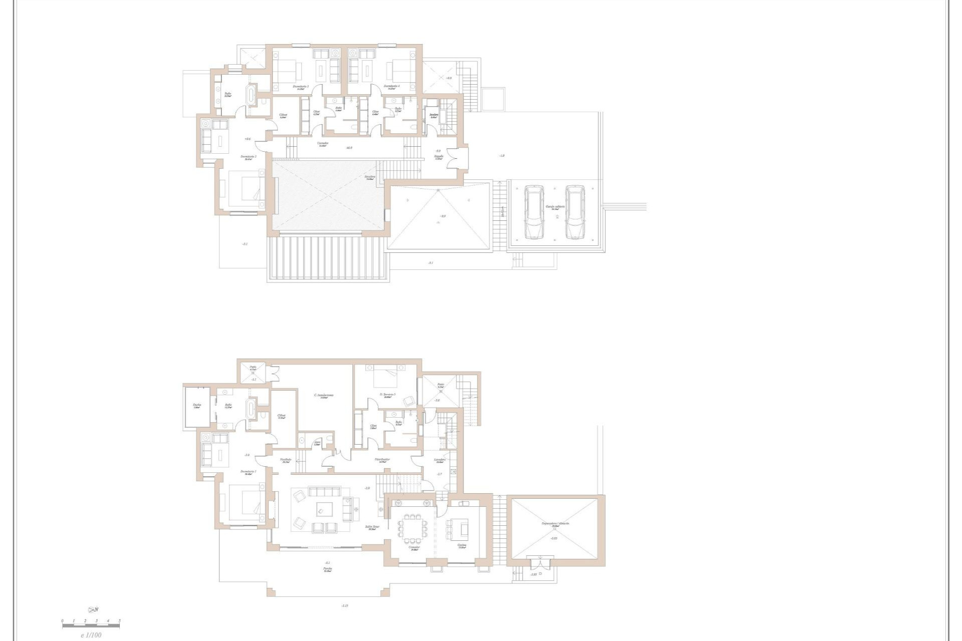
EXCLUSIVA VILLA DE LUJO DE OBRA NUEVA EN FINCA CORTESÍN, CASARES Enclavada en Finca Cortesín, esta villa de obra nueva desprende el encanto de las residencias de estilo ibicenco. La estructura blanca, adornada con piedras tradicionales mediterráneas, crea una atmósfera cautivadora para disfrutar al máximo. Ubicada en una generosa parcela, la propiedad cuenta con jardines meticulosamente cuidados, adornados con palmeras y vibrantes arbustos florales. Una impresionante piscina invita a un refrescante chapuzón, mientras que la terraza cubierta ofrece un delicioso espacio para comer al aire libre y un relajante oasis. Distribuida en dos plantas, la villa ofrece acceso directo al jardín desde la planta baja. La acogedora planta baja consta de un amplio salón, comedor y cocina, adornado con techos altos y abundantes ventanas que bañan el espacio de luz natural. La moderna cocina está totalmente equipada con electrodomésticos Gaggenau de alta gama. Dos habitaciones de invitados, con acceso directo al jardín, están cuidadosamente situadas en la planta baja. El nivel superior de la villa está dedicado a los dormitorios restantes, cada uno con su propio cuarto de baño privado. La pasarela que conecta las habitaciones ofrece una pintoresca vista de la zona de estar, creando una experiencia similar a la de un balcón interior. La propiedad cuenta con amplias vistas al campo de golf y a la cadena montañosa circundante, proporcionando un telón de fondo idílico que irradia tranquilidad y serenidad. La propiedad también cuenta con un camino privado para aparcar cómodamente dentro de la parcela. Con su codiciada ubicación dentro del complejo Finca Cortesín, esta villa es un refugio ideal para familias o para aquellos que buscan abrazar el lujoso estilo de vida mediterráneo en todo su esplendor. 631