REF. SP-11722
5
5
655m2
520m2
1.690m2
Yes
3000 Mts.
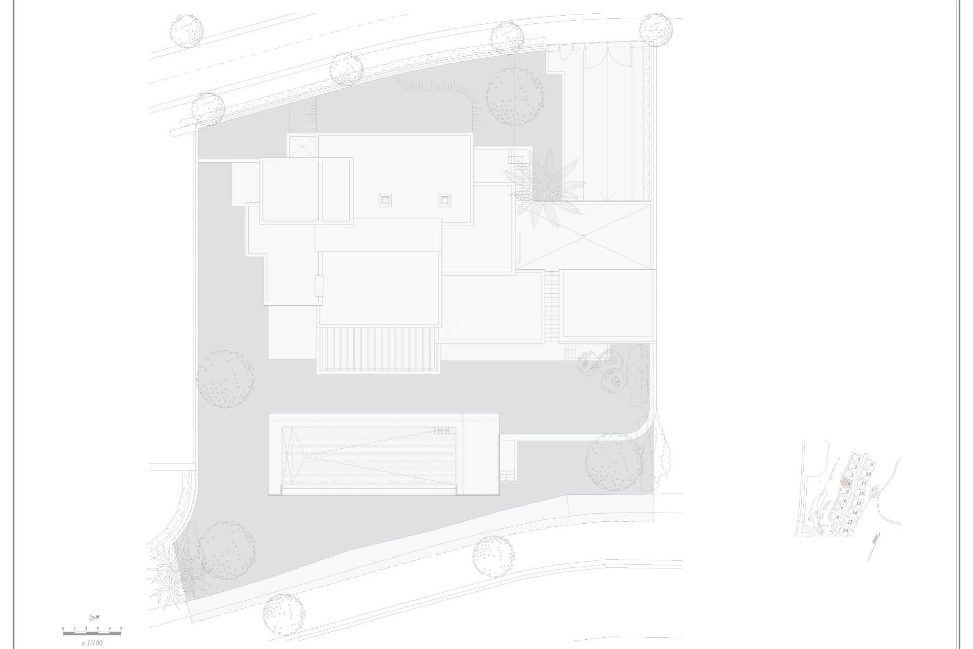
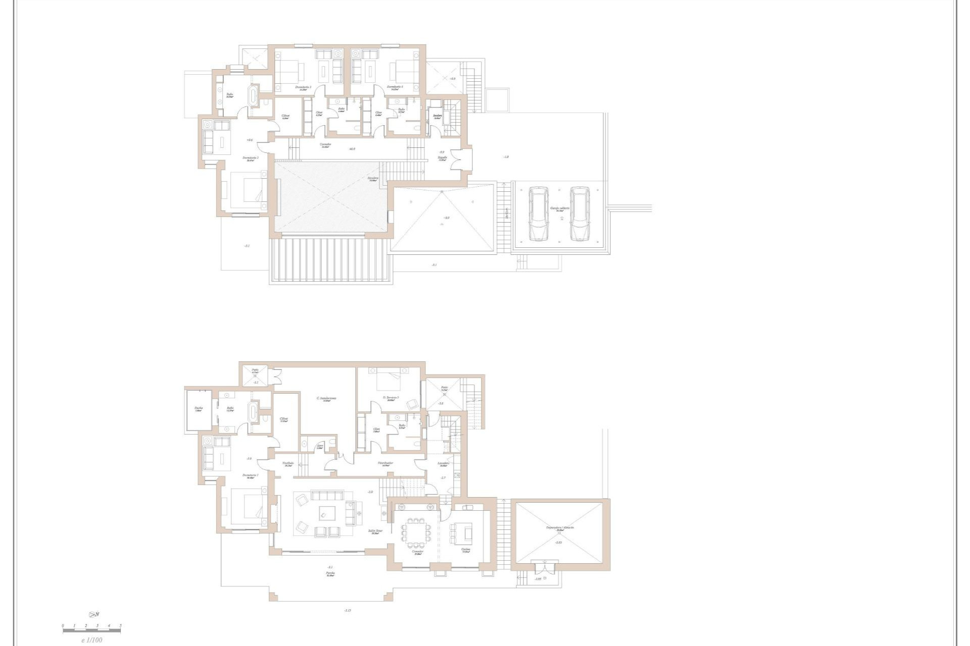
NEW BUILD EXCLUSIVE LUXURY VILLA AT FINCA CORTESÍN, CASARES Nestled within the enclave in the Finca Cortesin resort, this New Build villa exudes the charm of Ibiza-style residences. The white structure, adorned with traditional Mediterranean stones, creates a captivating atmosphere for ultimate enjoyment. Set on a generous plot, the property boasts meticulously manicured gardens, adorned with swaying palm trees and vibrant floral bushes. A stunning pool beckons for a refreshing dip, while the covered terrace provides a delightful space for al-fresco dining and a relaxing oasis. Spanning across two floors, the villa offers direct garden access from the ground level. The inviting ground floor encompasses a spacious living, dining and kitchen area, adorned with high ceilings and abundant windows that bathe the space in natural light. The modern kitchen comes fully equipped with top-of-the-line Gaggenau appliances. Two guest rooms, with direct access to the garden, are thoughtfully located on the ground floor. The upper level of the villa is dedicated to the remaining bedrooms, each boasting its own private bathroom. The walkway connecting the rooms offers a picturesque view of the living area, creating an interior balcony-like experience. The property boasts sweeping vistas of the golf course and surrounding mountain range, providing an idyllic backdrop that radiates tranquility and serenity. The property also has a private driveway for parking convenience within the plot. With its coveted location within the Finca Cortesin resort, this villa is an ideal haven for families or those seeking to embrace the luxurious Mediterranean lifestyle in all its splendor. 631