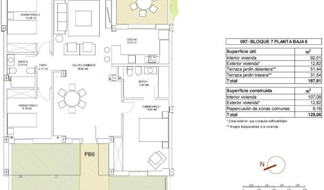
REF. NB-78674
3
2
107m2
92m2
Tak
400 Mts.
NOWY BUDYNEK KOMPLEKSU MIESZKALNEGO W VERA New Build residential of apartments in Vera just 400m from the huge Vera beach named "El Playazo". Typologia to parter z dwoma prywatnymi ogrodami, jeden w każdej orientacji, co pozwala cieszyć się słońcem lub cieniem, kiedy tylko chcesz, w zależności od pory dnia lub pory roku. Pierwsze piętra mają tarasy, a penthouse'y duże solaria. Wszystkie apartamenty mają sufity o dodatkowej wysokości (2,95 m), co daje duże poczucie przestronności. Kuchnia jest w pełni umeblowana i wyposażona, zintegrowana z częścią dzienno-jadalną z miejscem na bar. Drzwi i szafy są lakierowane w kolorze białym, a podłoga wykonana jest z drewna laminowanego. Klimatyzacja ciepło-zimno i ciepła woda są generowane przez nowoczesne urządzenie DAIKIN Aerothermal, technologia, która pozwala zaoszczędzić do 70% zużycia energii elektrycznej w porównaniu do tradycyjnych systemów. Wszystkie łazienki wyposażone są w prysznic zamiast wanny, z wpuszczonymi lustrami, a także z kamiennym blatem i szklaną przegrodą w głównej łazience. Żaluzje w salonie i głównej sypialni są elektryczne, hermetycznie zamknięte i z regulowanymi lamelami. Ogrody i solarium są dostarczane z podłogami wykończonymi łącząc sztuczną trawę i piękny bruk imitujący drewno. Każdy dom zawiera prywatne zewnętrzne miejsce parkingowe. Każdy blok promocji posiada niezależną windę. Zarówno budynki, jak i apartamenty posiadają szereg cech architektury bioklimatycznej (orientacja, izolacja, okna i okiennice, pergole), które pozwalają na optymalną naturalną regulację wentylacji, temperatury i światła przez różne pory roku. Tereny wspólne składają się z placów dla pieszych i terenów zielonych, z dużym basenem dla dorosłych i innym dla dzieci na centralnym placu. Cała urbanizacja jest pozbawiona barier architektonicznych dla osób niepełnosprawnych. Tutaj spokój i relaks są gwarantowane. Vera jest jednym z najlepszych miejsc dla naturystów w Europie, uznanym za jakość i czystość swoich wód. Oferuje sześć kilometrów plaż (Las Marinas-Bolaga, Puerto Rey, El Playazo, Quitapellejos). Vera graniczy ze słynnymi miejscami turystycznymi, takimi jak Mojacar i jaskinie Almanzora. Kompleks mieszkalny położony około 1,5 godziny jazdy od lotniska Murcia - Corvera i około 2 godziny od lotniska w Alicante.