REF. SP-22827
3
2
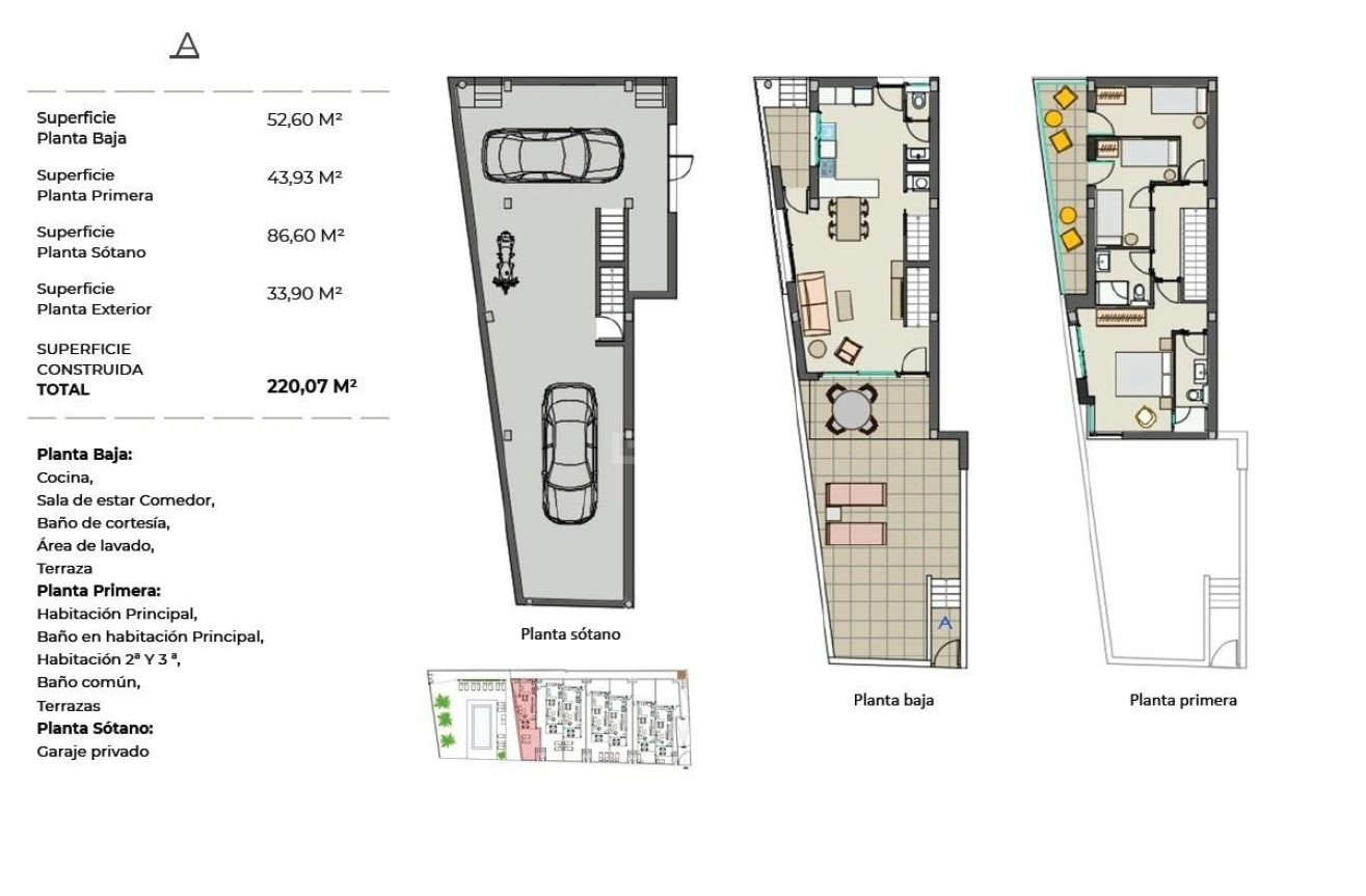
173m2
116m2
Tak
10 Mts.
Nowo wybudowane bliźniacze wille przy plaży w Moncofa z widokiem na morze Doskonała lokalizacja na wybrzeżu Castellón Odkryj ekskluzywną inwestycję obejmującą nowoczesne wille bliźniacze położone w pierwszej linii brzegowej w Moncofa, pomiędzy nadmorskimi miejscowościami Chilches i Moncofa. Ta wyjątkowa lokalizacja na wybrzeżu Costa del Azahar zapewnia bezpośredni dostęp do spokojnych, piaszczystych plaż oraz pozwala cieszyć się relaksującym śródziemnomorskim stylem życia. Okolica jest idealna zarówno do stałego zamieszkania, jak i na wakacje, a w niewielkiej odległości znajdują się lokalne restauracje, bary plażowe, supermarkety i niezbędne usługi. Moncofa ma dobre połączenia drogowe, co pozwala na łatwy dojazd do pobliskich miast, takich jak Castellón i Walencja. Nowoczesny design i funkcjonalny rozkład Ta ekskluzywna inwestycja składa się z zaledwie 7 eleganckich domów, zaprojektowanych z zachowaniem czystych linii architektonicznych i z naciskiem na komfort i codzienne życie. Każda nieruchomość posiada 3 sypialnie, 2 łazienki, w tym jedną przy sypialni głównej, oraz dodatkową toaletę dla gości. Domy rozmieszczone są na trzech poziomach, co pozwala maksymalnie wykorzystać przestrzeń i naturalne światło. Na parterze znajduje się otwarta część dzienna z jadalnią i w pełni wyposażoną kuchnią, płynnie przechodząca w prywatny taras z pięknym widokiem na morze. Na pierwszym piętrze znajdują się sypialnie, w tym przestronna sypialnia główna, a niektóre domy posiadają również taras na tym poziomie. W piwnicy znajduje się prywatny garaż na 1 lub 2 samochody oraz dodatkowa przestrzeń magazynowa. Wysokiej jakości wykończenia i gotowość do zamieszkania Wszystkie wille są dostarczane w pełni umeblowane. Kuchnie wyposażone są w sprzęt AGD, a łazienki w meble, lustra i kabiny prysznicowe. Nieruchomości posiadają również w pełni zainstalowaną klimatyzację oraz wydajny system aerotermiczny do podgrzewania wody, zapewniający komfort i oszczędność energii przez cały rok. Ekskluzywna społeczność i styl życia Kompleks mieszkaniowy obejmuje wspólny basen i ogrody krajobrazowe, a wszystko to w bezpośrednim sąsiedztwie plaży. Tworzy to spokojną i bezpieczną atmosferę, idealną do cieszenia się śródziemnomorskim klimatem i życiem na świeżym powietrzu. Odległości do kluczowych punktów zainteresowania Plaża Moncofa: 0 km Plaża Chilches: 2 km Centrum miasta Castellón: 30 km Miasto Walencja: 50 km Lotnisko w Walencji: 55 km Lotnisko w Castellón: 45 km Najbliższe pola golfowe: około 20 km Twój śródziemnomorski dom czeka Niezależnie od tego, czy szukasz stałego miejsca zamieszkania, domu wakacyjnego, czy też mądrej inwestycji, te położone przy plaży wille bliźniacze w Moncofa oferują wyjątkową okazję do cieszenia się morzem, komfortem i nowoczesnym designem w jednym z najbardziej autentycznych nadmorskich regionów Hiszpanii. Skontaktuj się z nami już dziś, aby uzyskać więcej informacji lub umówić się na wizytę. 631