REF. NB-36010
1
1
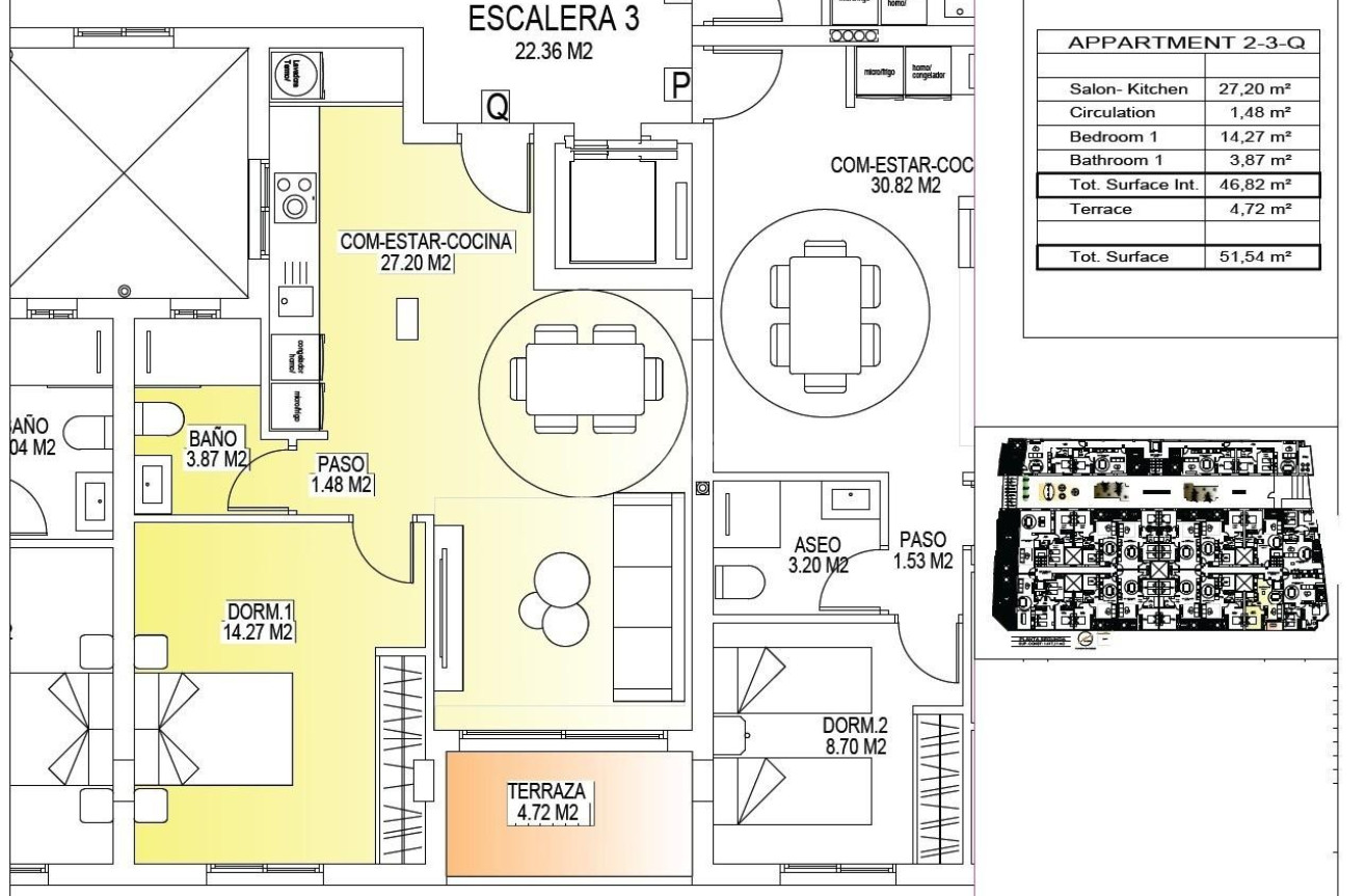
51m2
46m2
Tak
10000 Mts.
Nowoczesne apartamenty w centrum San Miguel de Salinas Współczesne życie w zdrowym śródziemnomorskim otoczeniu Położona w uroczej miejscowości San Miguel de Salinas, zaledwie 10 km od Morza Śródziemnego, ta nowa inwestycja mieszkaniowa oferuje idealną równowagę między nowoczesnym komfortem a naturalnym otoczeniem. Okolica ta znana jest z pobliskich słonych jezior i wyjątkowego mikroklimatu, uważanego za jeden z najzdrowszych w Europie. To spokojne, ale tętniące życiem miasteczko pozwala mieszkańcom cieszyć się autentycznym śródziemnomorskim stylem życia, a jednocześnie znajduje się w odległości spaceru od sklepów, restauracji, supermarketów i wszystkich niezbędnych usług. San Miguel de Salinas leży nieco w głębi lądu na południowym wybrzeżu Costa Blanca, oferując otwarte widoki, świeże powietrze i łatwy dostęp do plaż, pól golfowych i centrów handlowych. Stylowe apartamenty zaprojektowane z myślą o komforcie i wydajności Projekt składa się z dwóch nowoczesnych budynków oddzielonych zagospodarowanym ogrodem wspólnym. Dostępnych jest łącznie 56 nowoczesnych apartamentów z 1, 2 lub 3 sypialniami, każdy z prywatnym tarasem. Każdy dom został zaprojektowany z myślą o komforcie, estetyce i efektywności energetycznej, przy użyciu wysokiej jakości materiałów i nowoczesnych systemów izolacyjnych. Każdy apartament obejmuje: Bронированные входные двери Łazienki z szafkami pod umywalkę Preinstalacja klimatyzacji kanałowej Certyfikat energetyczny klasy A Rozkład i orientacja mieszkań zapewniają naturalne światło przez cały dzień, tworząc jasne i przytulne wnętrza, idealne zarówno do stałego zamieszkania, jak i do spędzania wakacji. Wyjątkowe przestrzenie wspólne do relaksu i życia towarzyskiego Przestrzeń wspólna na parterze została zaprojektowana jako centrum życia towarzyskiego osiedla, otoczona ogrodami krajobrazowymi, miejscami do siedzenia, parkingiem dla rowerów i placem zabaw dla dzieci. Jest to idealne miejsce spotkań dla mieszkańców w każdym wieku. Na dachu znajduje się imponująca strefa rekreacyjna o powierzchni 350 m2. Przestrzeń ta obejmuje basen o powierzchni 70 m2 z oddzielną strefą dla dzieci, pergole, leżaki i zacienione miejsca, umożliwiające mieszkańcom relaks przy podziwianiu panoramicznych widoków. Dach jest łatwo dostępny dzięki jednej z trzech wind i wyposażony w sanitariaty dla dodatkowego komfortu. Doskonała lokalizacja w pobliżu najważniejszych atrakcji Śródziemnomorskie plaże 10 km Centrum handlowe Zenia Boulevard 9 km Villamartin Golf 6 km Las Colinas Golf 8 km Marina Torrevieja 12 km Lotnisko w Alicante 60 km Lotnisko Murcia Corvera 55 km Inteligentna inwestycja na południowym wybrzeżu Costa Blanca Ten kompleks mieszkaniowy łączy w sobie nowoczesną architekturę, wysokiej jakości wykończenie i doskonałą lokalizację w centrum, co czyni go doskonałym wyborem do zamieszkania, spędzania wakacji lub inwestycji w wynajem. Skontaktuj się z nami już dziś, aby uzyskać więcej informacji lub umówić się na wizytę w tych nowoczesnych apartamentach w San Miguel de Salinas.