REF. NB-44767
4
4
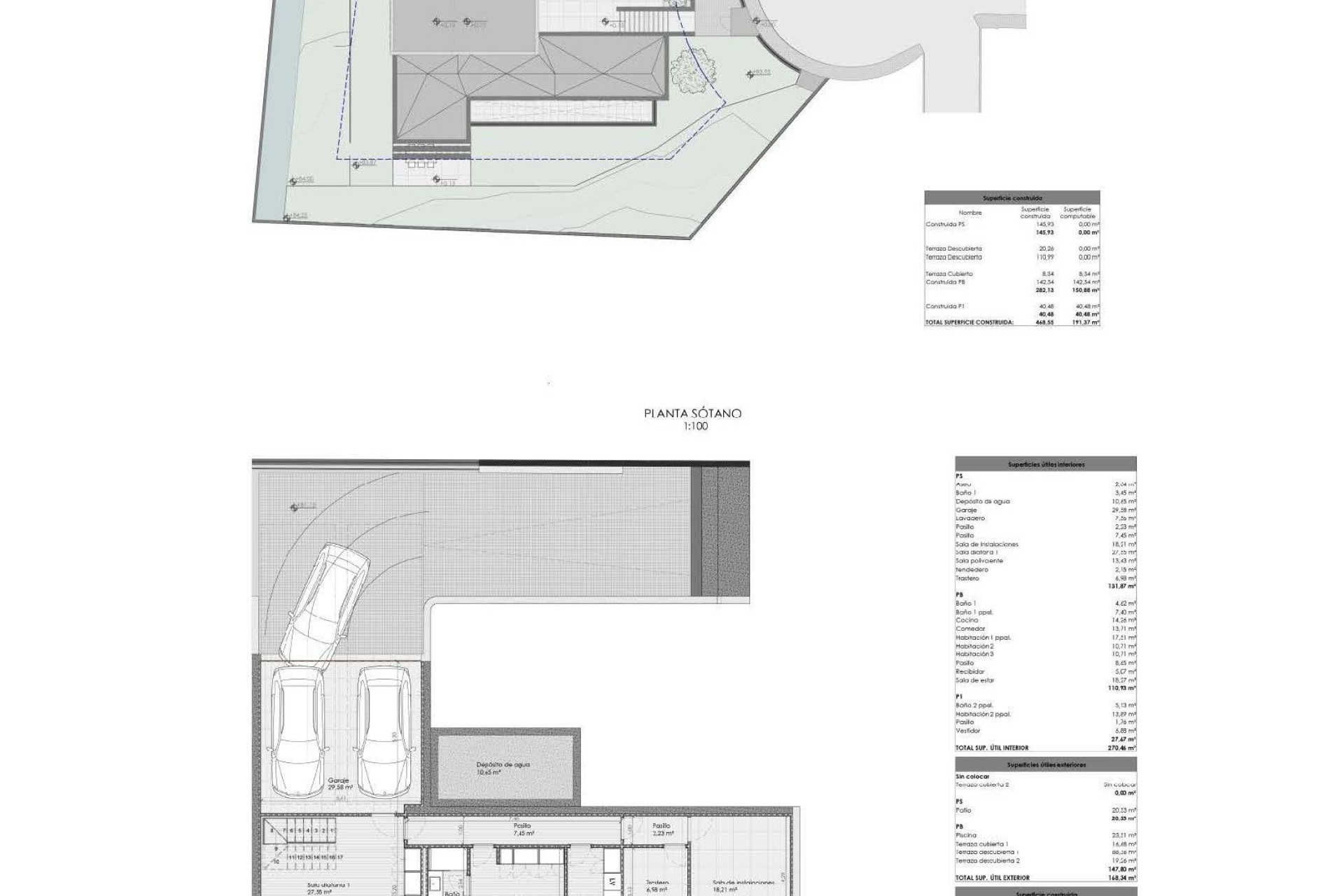
468m2
270m2
1.000m2
Tak
3000 Mts.
Nowoczesna, nowo wybudowana willa z luksusowymi udogodnieniami w Javea Współczesne śródziemnomorskie życie na Costa Blanca Ta wspaniała, nowo wybudowana willa w Javea łączy w sobie wysokiej jakości wykończenia, elegancki design i optymalną funkcjonalność na trzech przestronnych poziomach. Położona w jednej z najbardziej pożądanych nadmorskich miejscowości na północnym wybrzeżu Costa Blanca, nieruchomość oferuje spokojne otoczenie mieszkalne, otoczone zielonymi górami, parkami przyrodniczymi i pięknymi plażami. Javea słynie z krystalicznie czystej wody, tradycyjnej gastronomii i śródziemnomorskiego stylu życia, co czyni ją idealnym miejscem zarówno do stałego zamieszkania, jak i inwestycji. Przestronna piwnica zaprojektowana z myślą o wszechstronności Poziom piwnicy został starannie zaprojektowany, aby sprostać potrzebom współczesnego stylu życia. Obejmuje on otwarty garaż na dwa samochody, łazienkę, toaletę dla gości, otwartą przestrzeń, pomieszczenie wielofunkcyjne oraz patio, które zapewnia naturalne oświetlenie. Poziom ten oferuje nieograniczone możliwości, niezależnie od tego, czy planujesz stworzyć siłownię, pokój rozrywkowy, biuro czy apartament dla gości. Elegancki parter z połączonymi przestrzeniami mieszkalnymi Na parterze znajduje się jasny salon z jadalnią, który płynnie łączy się z w pełni wyposażoną kuchnią, tworząc idealne miejsce na rodzinne spotkania. Hol wejściowy, toaleta dla gości i korytarze dodają praktyczności i płynności. Na tym poziomie znajdują się dwie wygodne sypialnie z nowoczesną łazienką oraz przestronna sypialnia główna z łazienką, zapewniająca prywatność i komfort. Luksusowy apartament główny na piętrze Piętro przeznaczone jest na drugą sypialnię główną, która stanowi ekskluzywne miejsce wypoczynku z własną łazienką, garderobą i korytarzem. Ta prywatna przestrzeń zapewnia komfort i spokój oraz piękne widoki na otaczającą zieloną okolicę. Przestrzeń zewnętrzna zaprojektowana z myślą o klimacie śródziemnomorskim Zewnętrzne obszary nieruchomości zostały stworzone z myślą o całorocznym korzystaniu z przestrzeni zewnętrznej. Na parterze znajdują się dwa zadaszone tarasy i dwa tarasy odkryte. Jeden z zadaszonych tarasów otacza basen, idealny do letniego relaksu, a odkryty taras obok kuchni jest idealnym miejscem do spożywania posiłków na świeżym powietrzu i spotkań towarzyskich. Wyposażona w ogrzewanie podłogowe i klimatyzację kanałową, willa gwarantuje komfort o każdej porze roku. Doskonała lokalizacja w Javea Plaża El Arenal 3 km Port i marina w Javea 7 km Klub golfowy Javea 3 km Lotnisko w Alicante 100 km Lotnisko w Walencji 125 km Twój śródziemnomorski dom czeka Niezależnie od tego, czy szukasz luksusowej rezydencji, domu wakacyjnego, czy bezpiecznej długoterminowej inwestycji, ta willa oferuje wyjątkowy styl życia w Javea. Skontaktuj się z nami już dziś, aby umówić się na wizytę i odkryć swój przyszły dom na Costa Blanca.