REF. NB-23599
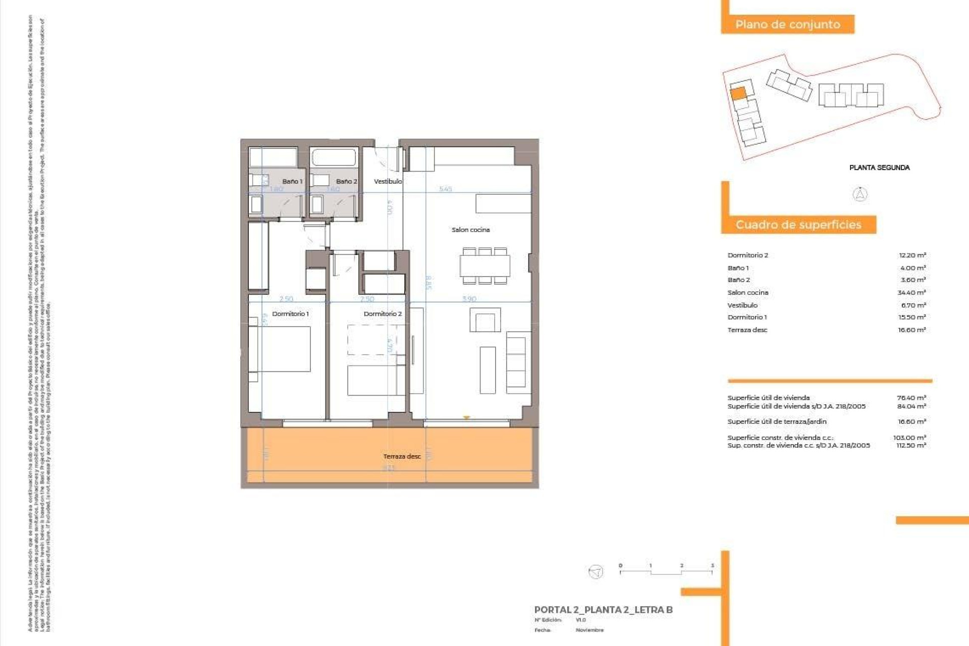
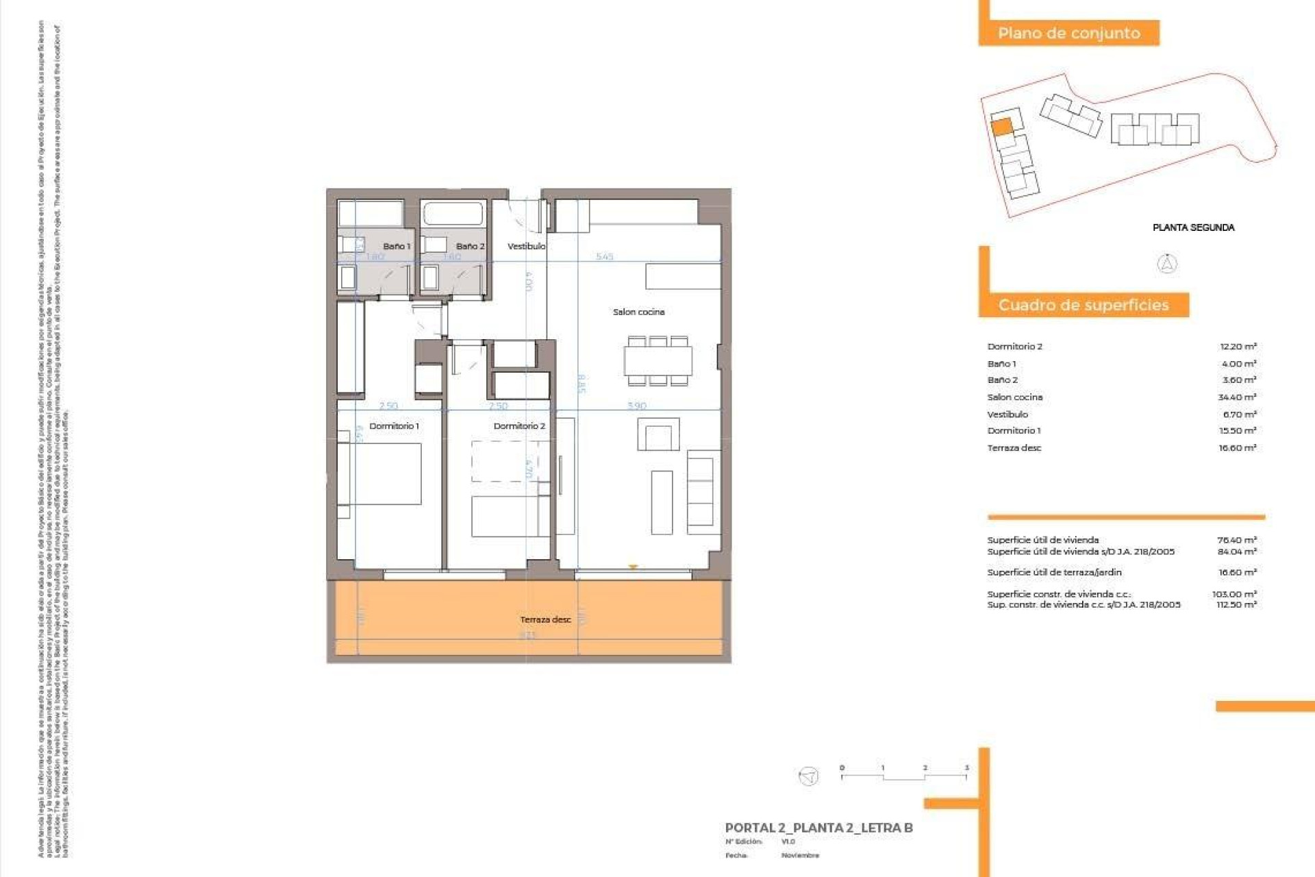
2
2
112m2
Tak
Nowe apartamenty z widokiem na morze w La Cala de Mijas Ekskluzywna inwestycja mieszkaniowa na Costa del Sol Odkryj tę nowoczesną, ogrodzoną społeczność składającą się z 72 nowych apartamentów w La Cala de Mijas, jednej z najbardziej pożądanych lokalizacji na Costa del Sol. Dzięki swojemu wyjątkowemu urokowi, złocistym piaszczystym plażom, polom golfowym i tętniącemu życiem stylowi życia, La Cala oferuje idealną równowagę między relaksem a wypoczynkiem. Osiedle jest idealnie położone zaledwie 150 m od plaży Playamarina i tylko 10 minut jazdy samochodem od Fuengirola. Nowoczesne domy z widokiem na morze Ten spektakularny projekt oferuje apartamenty z 2, 3 i 4 sypialniami o przestronnym rozkładzie, zaprojektowane z myślą o komforcie i funkcjonalności. Wiele domów oferuje zapierające dech w piersiach widoki na morze, a lokale na parterze posiadają prywatne ogrody, a penthouse'y - rozległe tarasy idealne do spędzania czasu na świeżym powietrzu. Wszystkie nieruchomości posiadają co najmniej jedno prywatne miejsce parkingowe i pomieszczenie gospodarcze. Wysokiej jakości wyposażenie i wykończenie Każdy szczegół został starannie zaplanowany, aby zapewnić maksymalny komfort i jakość życia: W pełni wyposażone kuchnie z urządzeniami AGD Produkcja ciepłej wody za pomocą systemu aerotermicznego Klimatyzacja kanałowa Wzmocnione drzwi wejściowe Szerokie możliwości personalizacji, aby dostosować każdy dom do własnych upodobań Wyjątkowe przestrzenie wspólne Osiedle oferuje najwyższej klasy udogodnienia wspólne, zaprojektowane z myślą o wypoczynku i dobrym samopoczuciu: Ogrody krajobrazowe z roślinnością śródziemnomorską Duży basen W pełni wyposażona siłownia Sala towarzyska dla mieszkańców Doskonała lokalizacja z doskonałą komunikacją La Cala de Mijas cieszy się doskonałą lokalizacją z szybkim dostępem do niezbędnych usług i możliwości spędzania wolnego czasu: Plaża Playamarina: 150 m Klub golfowy Chaparral: 2 km Fuengirola: 10 km Marbella: 23 km Puerto Banús: 30 km Międzynarodowe lotnisko w Maladze: 25 km Dworzec kolejowy Málaga María Zambrano: 40 km W okolicy znajdują się supermarkety, centra zdrowia, apteki, restauracje i centra handlowe, a wszystko to w niewielkiej odległości samochodem. Bezpośrednie połączenie z autostradą A-7 i bliskość płatnej drogi AP-7 zapewniają doskonałą komunikację wzdłuż Costa del Sol. Żyj w stylu śródziemnomorskim Niezależnie od tego, czy szukasz stałego miejsca zamieszkania, domu wakacyjnego, czy inwestycji, te apartamenty w La Cala de Mijas stanowią wyjątkową okazję, aby cieszyć się tym, co najlepsze na Costa del Sol, łącząc nowoczesny design, widoki na morze i niezrównane udogodnienia. Skontaktuj się z nami już dziś, aby umówić się na wizytę i zapewnić sobie nowy dom w La Cala de Mijas.