REF. SP-82755
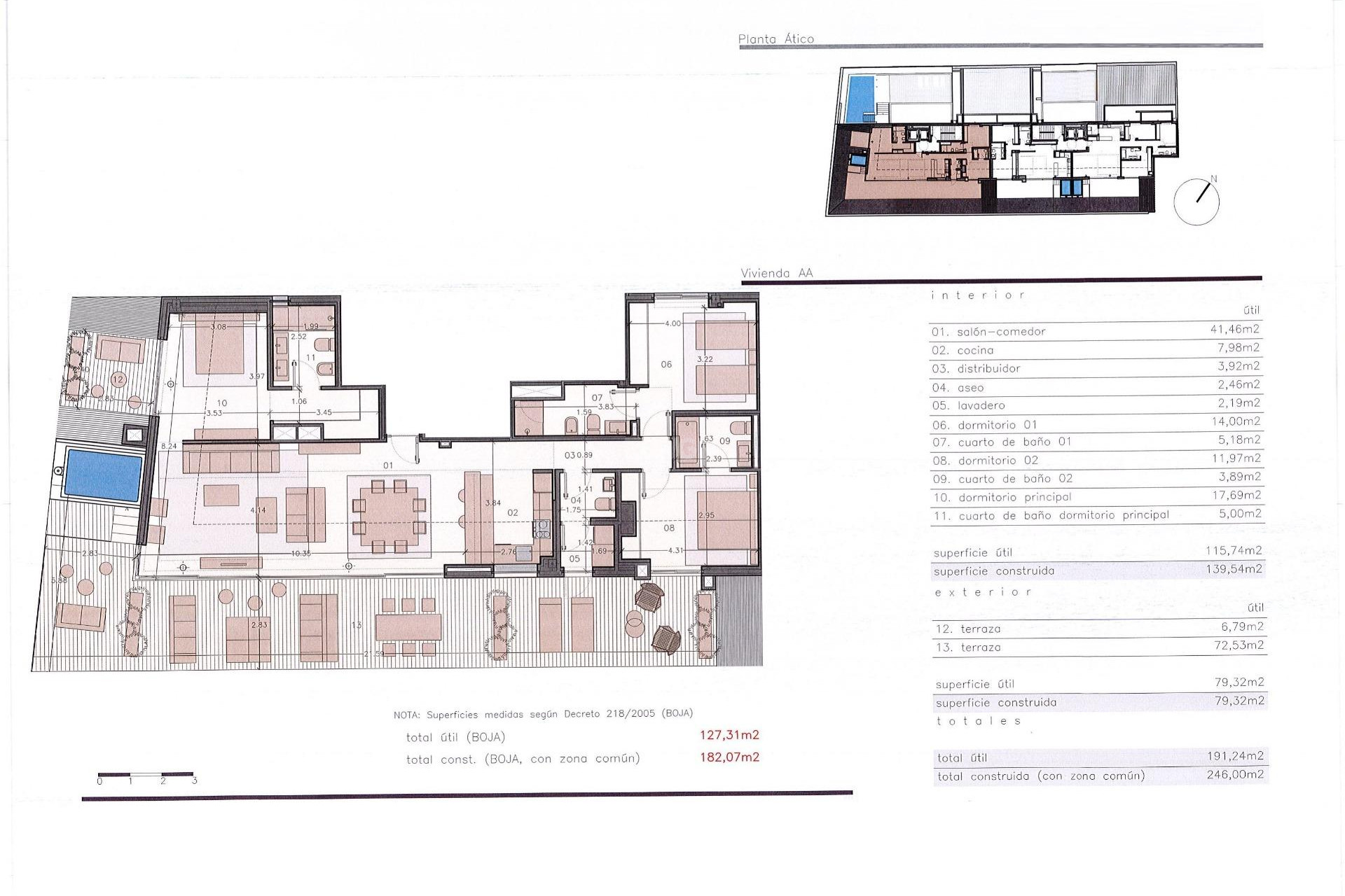
3
2
139m2
115m2
Tak
350 Mts.
NOWY BUDYNEK KOMPLEKSU MIESZKALNEGO W FUENGIROLA Nowy budynek mieszkalny będzie składał się z 33 luksusowych apartamentów i penthousów z najnowocześniejszym wyposażeniem i najlepszymi cechami na rynku. Projekt jest nowoczesną konstrukcją zaprojektowaną przez prestiżową firmę architektoniczną A0- projekt z własnym stylem, który odzwierciedla ekskluzywną koncepcję jakości życia: aktualny, elegancki, klasyczny i zgodny z najnowszą technologią, wszystkie te elementy sprawiają, że życie jest przyjemnością dla zmysłów. Położony zaledwie 350 metrów od morza. Elegancki styl czyni ten budynek przykładem nowoczesnej architektury, w której wszystko zostało zaprojektowane z myślą o komforcie jego mieszkańców. Został stworzony z powołaniem, aby stać się emblematyczną konstrukcją Fuengiroli i całego Costa del Sol. Zewnętrzne tereny ogrodowe, garaże, miejsca i przejścia utrzymują elegancki i nowoczesny styl. Mieszkanie w tym kompleksie oznacza korzystanie z możliwości spędzania wolnego czasu, kultury, usług, spokoju i śródziemnomorskiego stylu życia bez konieczności rezygnacji z czegokolwiek. Pomiędzy Marbellą a Malagą, Fuengirola jest jednym z najbardziej żywych miast na Costa del Sol, jednym z klejnotów mieszkalnych obszaru i rosnącą wartością z wysoką jakością życia. 631