REF. SP-62204
6
8
795m2
630m2
2.520m2
Tak
3000 Mts.
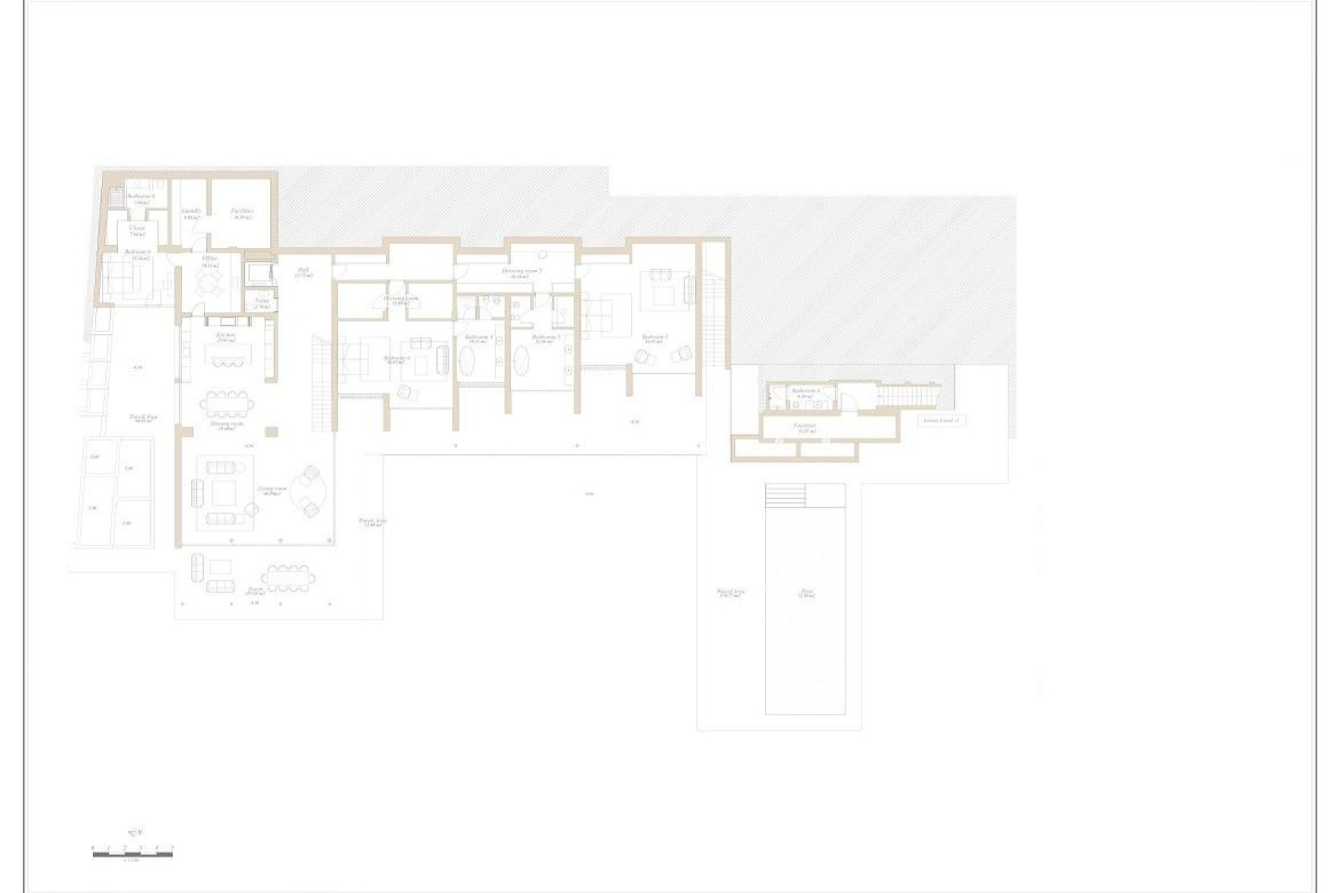
RYNEK PIERWOTNY EKSKLUZYWNA WILLA W FINCA CORTESÍN, CASARES Ta wyjątkowa rezydencja, ekskluzywna dla ośrodka Finca Cortesin, emanuje urzekającą mieszanką luksusu i elegancji. Zaprojektowane przez renomowanych architektów Jose Maria Sierra, to architektoniczne arcydzieło nie ma sobie równych na Costa del Sol, szczycąc się niezwykłą działką i zapierającymi dech w piersiach widokami. Nieruchomość posiada mnóstwo okien sięgających od podłogi do sufitu, które zdobią oba poziomy, pozwalając naturalnemu światłu zalać wnętrza. Uderzająca biała fasada, ozdobiona drewnianymi akcentami, nadaje ton płynnemu przejściu między przestrzenią zewnętrzną i wewnętrzną. Na szczególną uwagę zasługuje imponująca wysokość sufitu, sięgająca aż 9 metrów w części dziennej na parterze. Unikalną cechą jest mniejsza część mieszkalna na najwyższym piętrze, zapewniająca punkt widokowy z widokiem na przestrzeń mieszkalną na parterze - prywatne zacisze, podobne do ukrytego tarasu w obrębie nieruchomości. Górny poziom przeznaczony jest na główną sypialnię i dwa pokoje gościnne, z których każdy oferuje swój własny urok z oszałamiającym widokiem na pole golfowe i Morze Śródziemne. Niższy poziom obejmuje pozostałe sypialnie, część dzienną i kuchnię - harmonijne połączenie funkcjonalności i stylu. Cały parter bez wysiłku otwiera się na ogród, witając świeże powietrze i naturalne światło w nieruchomości. Perłą w koronie tej rezydencji jest spektakularny ogród, rozległy i starannie wypielęgnowany. Ogród jest rajem dla entuzjastów spędzania czasu na świeżym powietrzu i oferuje kuszący basen z ciemnymi lazurowymi kafelkami, który zachęca do orzeźwiającej kąpieli, a zintegrowana altana obok basenu zapewnia idylliczne miejsce do relaksu. Majestatyczne palmy otaczają ogród, uzupełniając rozległe widoki na pole golfowe i wybrzeże Morza Śródziemnego. Zachwycająca architektura krajobrazu, obejmująca wspaniałe klomby i starannie przycięte krzewy, dodaje odrobinę naturalnego piękna. Dzięki uprzywilejowanej lokalizacji przy polu golfowym, inspirującej architekturze i niezrównanej atmosferze, ta naprawdę wyjątkowa nieruchomość jest świadectwem uroku Finca Cortesin Resort. 631