REF. SP-89940
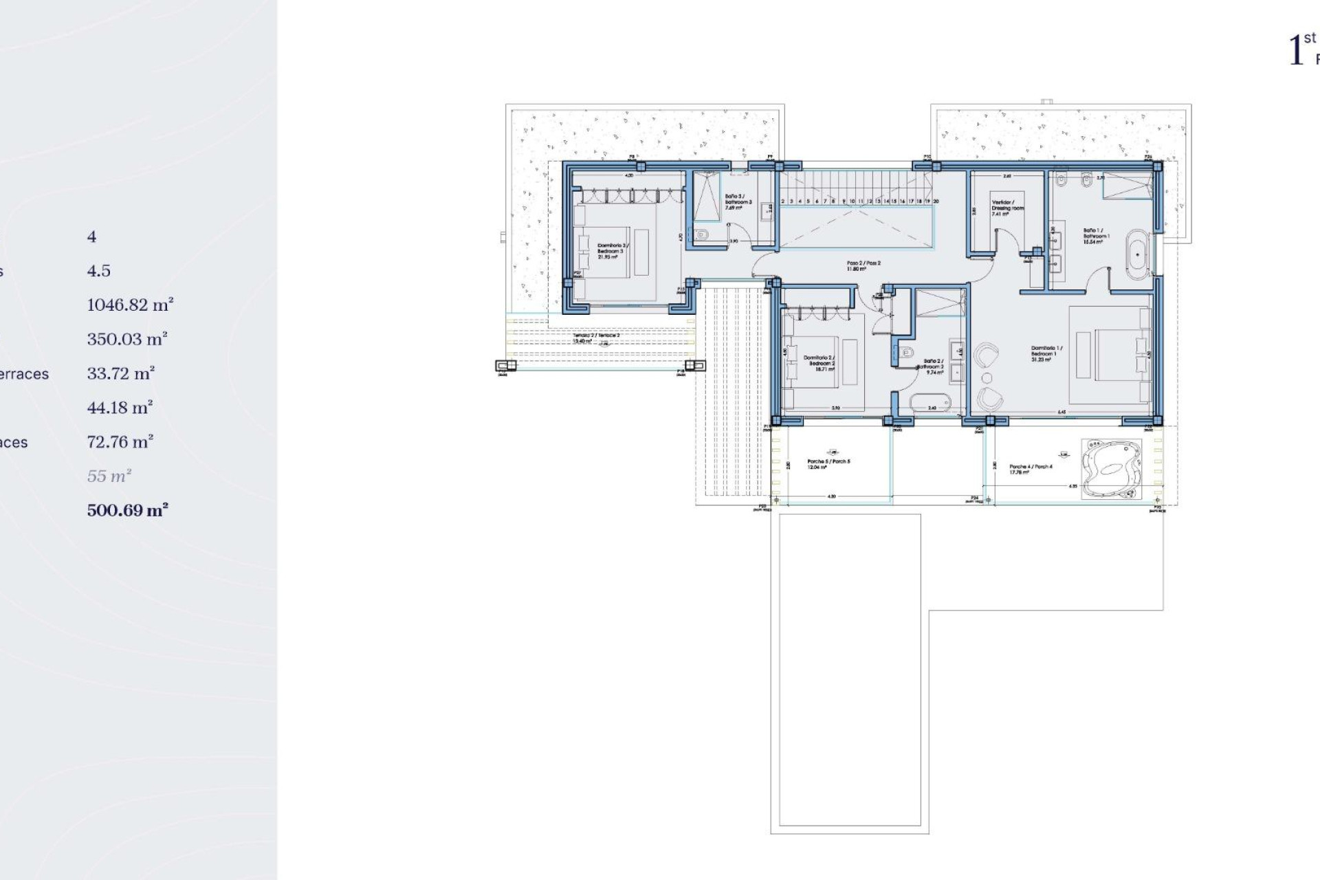
4
4
350m2
270m2
1.046m2
Tak
1000 Mts.
Luksusowe nowe wille w Bel-Air, Marbella: przeżyj niekończące się lato na Costa del Sol Nowoczesne życie w stylu śródziemnomorskim Poznaj prawdziwą esencję stylu życia na Costa del Sol dzięki tej ekskluzywnej kolekcji 11 nowych luksusowych willi w Bel-Air w Marbelli, gdzie słońce świeci przez ponad 325 dni w roku. Zaprojektowane z myślą o osobach ceniących elegancję, prywatność i bliskość morza, wille te oferują niezwykłe połączenie komfortu i współczesnej architektury. Każda rezydencja jest zbudowana na działkach o powierzchni ponad 1000 m² i rozmieszczona na dwóch poziomach, posiada 4 lub 5 sypialni, prywatne baseny i przestronne tarasy idealne do spędzania czasu na świeżym powietrzu. Niektóre wille oferują nawet zapierające dech w piersiach widoki na morze z górnego piętra. Zakończenie budowy planowane jest na początek 2026 roku, co daje Ci możliwość spełnienia swojego śródziemnomorskiego marzenia. Najwyższej jakości design i wysokiej klasy wyposażenie Każda willa została zaprojektowana tak, aby zapewnić najwyższy standard luksusu, łącząc wyrafinowaną estetykę z najnowocześniejszą technologią. Najważniejsze cechy to: Inteligentny system automatyki domowej W pełni umeblowane i wyposażone kuchnie z urządzeniami renomowanych marek Podłogi z wysokowytrzymałej gresu porcelanowego Klimatyzacja kanałowa firmy Daikin Prywatny podwójny parking Rozległe tarasy na parterze i pierwszym piętrze Prywatny basen Ulepszone zabezpieczenia okien i drzwi Domy te zostały zaprojektowane tak, aby zapewnić maksymalną prywatność, komfort i trwałość, oferując nowoczesne i zrównoważone podejście do życia na wybrzeżu. Doskonała lokalizacja na Nowej Złotej Mili Położona w prestiżowej dzielnicy Bel-Air, pomiędzy Marbellą a Esteponą, ta zamknięta społeczność cieszy się jedną z najbardziej pożądanych lokalizacji na Nowej Złotej Mili. Morze Śródziemne znajduje się zaledwie 1 km od hotelu, a klub golfowy Villa Padierna i inne renomowane pola golfowe są oddalone o zaledwie kilka minut od hotelu. Centrum Estepony znajduje się niecałe 15 minut drogi stąd, Puerto Banús jest oddalone o zaledwie 20 km, a do eleganckiej Marbelli można dojechać w około 20 minut. Międzynarodowe lotnisko w Maladze znajduje się w odległości około 70 km, a lotnisko w Gibraltarze zaledwie 60 km. Niezbędne udogodnienia, takie jak supermarkety, restauracje i centrum medyczne Cancelada, znajdują się w odległości 5 minut jazdy samochodem, co zapewnia wygodę w codziennym życiu. Nieporównywalny styl życia Bel-Air oferuje wyjątkową równowagę między spokojem, dostępnością i wyrafinowaniem. Otoczone plażami, polami golfowymi i naturalnym pięknem, jest to idealne miejsce dla osób poszukujących zarówno relaksu, jak i aktywnego stylu życia. Twoja wymarzona willa czeka Nie przegap okazji, aby stać się właścicielem jednej z tych wyjątkowych nowych luksusowych willi w Bel-Air w Marbelli. Skontaktuj się z nami już dziś, aby umówić się na wizytę lub poprosić o więcej informacji na temat swojego przyszłego domu na Costa del Sol. 631