REF. SP-70283
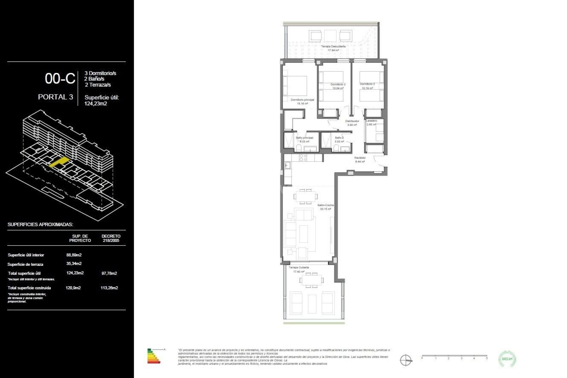
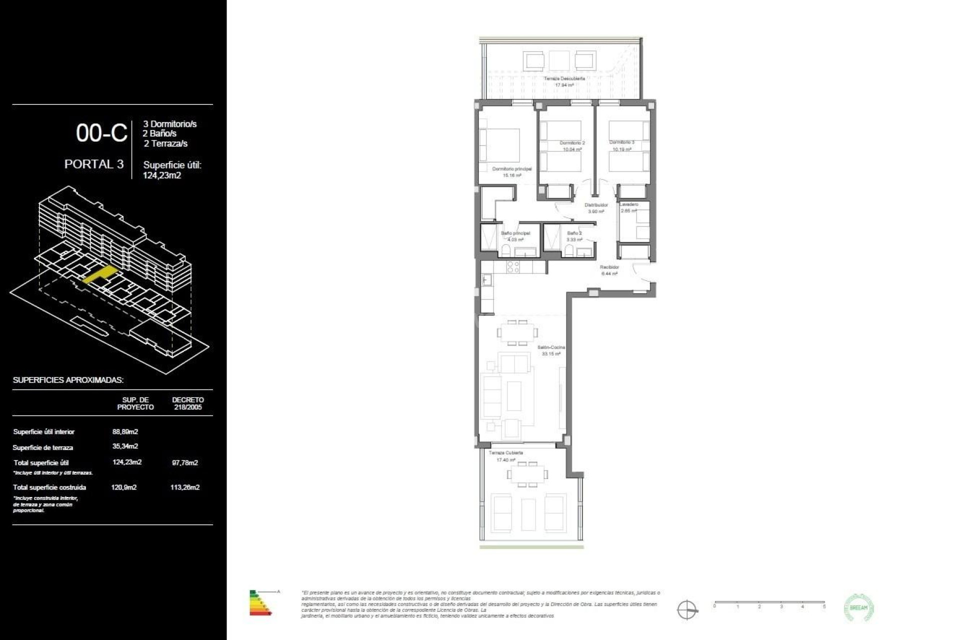
3
2
113m2
97m2
Tak
1500 Mts.
Nowe apartamenty z widokiem na morze na sprzedaż w Torremolinos, Costa del Sol Ekskluzywne, nowoczesne rezydencje w doskonałej lokalizacji Odkryj tę wyjątkową nową inwestycję w Torremolinos, położoną w jednym z najbardziej dynamicznych i poszukiwanych miast na Costa del Sol. Kompleks położony jest na wzniesieniu, z widokiem na piękny śródziemnomorski las sosnowy, a większość mieszkań oferuje wspaniałe widoki na morze. Zaledwie 1500 metrów od plaży i kilka minut spacerem od centrum miasta, ten projekt mieszkaniowy łączy w sobie spokój, wygodę i nadmorski styl życia. Nowoczesne domy z przestronnymi tarasami Inwestycja obejmuje nowoczesne apartamenty z 2 lub 3 sypialniami i 2 łazienkami, w tym jedną łazienką przy sypialni. Każdy dom został zaprojektowany tak, aby zapewnić maksymalny komfort, jasność i styl, z dużymi tarasami, które płynnie rozszerzają przestrzeń mieszkalną i pozwalają mieszkańcom cieszyć się łagodnym klimatem Andaluzji przez cały rok. Zbudowane z najwyższej jakości materiałów, te apartamenty i penthouse'y stanowią idealne połączenie elegancji i funkcjonalności. Są idealne, niezależnie od tego, czy szukasz głównego miejsca zamieszkania, domu wakacyjnego, czy bezpiecznej inwestycji w nieruchomości na Costa del Sol. Wyjątkowe udogodnienia wspólne Mieszkańcy będą mogli korzystać z najwyższej klasy udogodnień zaprojektowanych z myślą o relaksie, dobrym samopoczuciu i produktywności. Kryte spa z podgrzewanym basenem, sauną i strefą prysznicową W pełni wyposażona designerska siłownia Pomieszczenie coworkingowe z kuchnią w stylu biurowym i toaletami Prywatne miejsce parkingowe i schowek w cenie Udogodnienia te tworzą kompletne doświadczenie mieszkaniowe, które zwiększa komfort i sprzyja budowaniu społeczności. Mieszkaj w jednym z najbardziej tętniących życiem miast na Costa del Sol Torremolinos słynie z kosmopolitycznej atmosfery, pięknych plaż, doskonałych restauracji i bogatej oferty rekreacyjnej. Jego strategiczne położenie zapewnia doskonałe połączenia komunikacyjne z miastem Malaga i całym regionem, co czyni je jednym z najlepszych miejsc do życia lub inwestowania na Costa del Sol. Odległości do najważniejszych punktów Plaża Torremolinos: 1,5 km Lotnisko Malaga-Costa del Sol: 7 km Centrum Malagi: 14 km Pola golfowe: 5–8 km Puerto Marina w Benalmádena: 6 km Twoje nowe życie na Costa del Sol czeka Ciesz się komfortem, designem i śródziemnomorskim stylem życia w niezrównanej okolicy. Skontaktuj się z nami już dziś, aby umówić się na wizytę i zapewnić sobie nowy dom z widokiem na morze w Torremolinos. 631