REF. SP-16513
3
2
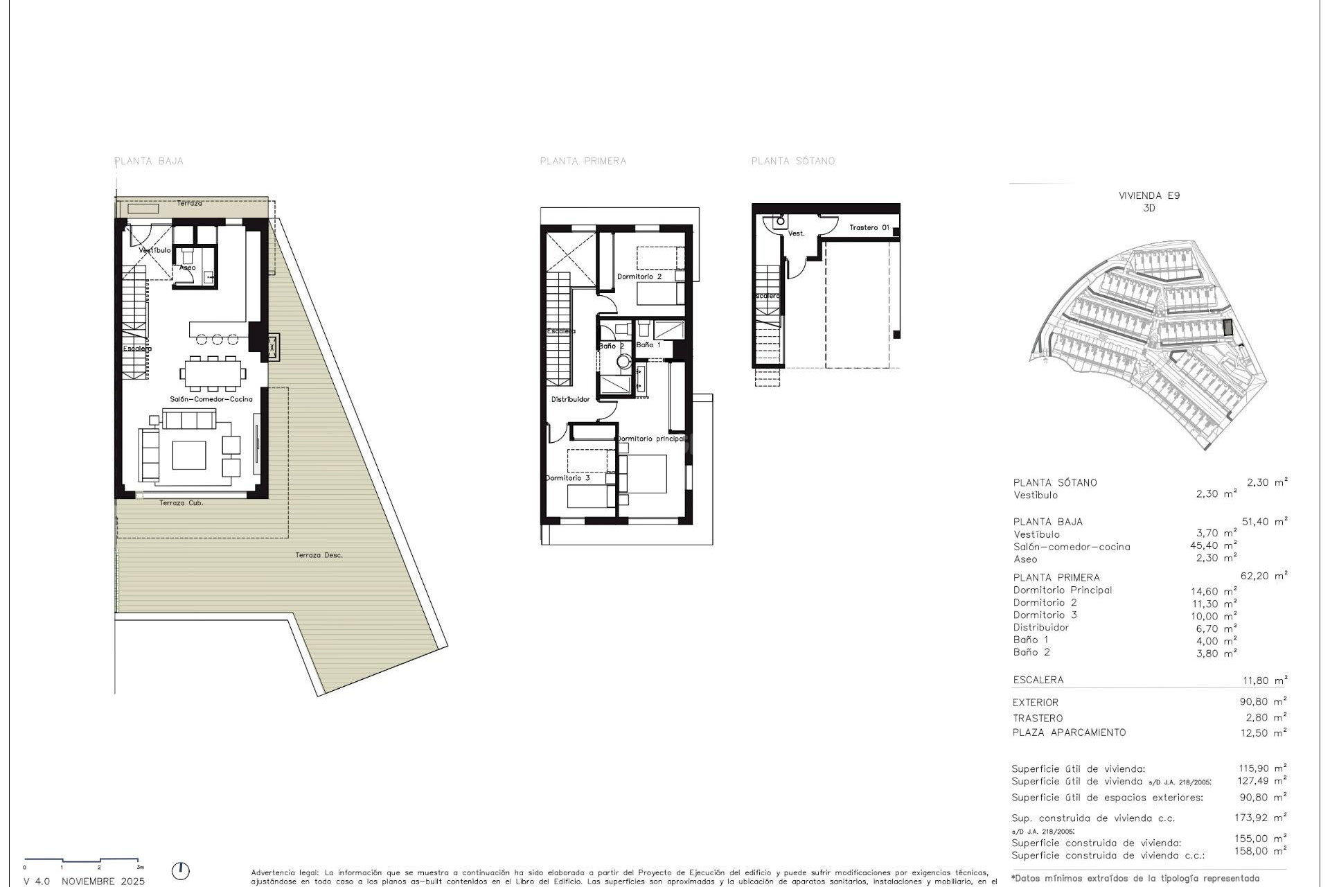
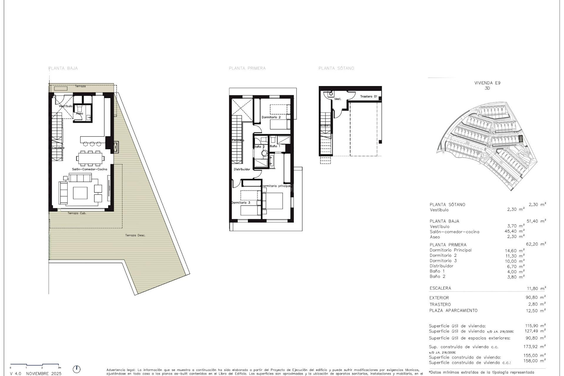
155m2
127m2
Tak
2000 Mts.
Nowe domy szeregowe i domy bliźniacze w La Cala de Mijas Ekskluzywny, ogrodzony kompleks mieszkaniowy na Costa del Sol Ten nowoczesny, ogrodzony kompleks mieszkaniowy jest idealnie położony w jednej z najbardziej poszukiwanych lokalizacji na Costa del Sol, z doskonałym połączeniem z autostradą A 7 Costa del Sol i szybkim dostępem do płatnej drogi AP 7. Osiedle zapewnia prywatność, bezpieczeństwo i wygodę, co czyni je idealnym wyborem zarówno do stałego zamieszkania, jak i na wakacje. Jego strategiczne położenie sprawia, że mieszkańcy mają blisko do Marbelli, Puerto Banus i Malagi, a jednocześnie mogą cieszyć się spokojną okolicą w pobliżu morza. Nowoczesne domy o przestronnym rozkładzie i widokiem na morze Projekt składa się z 68 wysokiej jakości domów szeregowych i narożnych domów bliźniaczych z 3 lub 4 sypialniami. Nieruchomości zostały starannie zaprojektowane, aby zapewnić zrównoważony rozkład pomieszczeń, otwarte przestrzenie mieszkalne i obszerne przestrzenie zewnętrzne, takie jak tarasy, prywatne ogrody lub solaria. Niektóre domy posiadają piwnicę z prywatnym parkingiem, pomieszczeniem gospodarczym lub częścią mieszkalną, podczas gdy inne oferują wygodny parking naziemny. Wszystkie domy są zorientowane na południe, a wiele z nich oferuje wspaniałe widoki na Morze Śródziemne. Wysokiej jakości wykończenie i nowoczesny komfort Każdy dom jest wyposażony w najwyższej klasy elementy, które zapewniają komfort i nowoczesny styl życia. Kuchnie są w pełni wyposażone w zintegrowane urządzenia i mają czysty, nowoczesny design. Łazienki wyposażone są w szafki pod umywalkę, lustra, kabiny prysznicowe i ogrzewanie podłogowe. Nieruchomości posiadają również wzmocnione drzwi wejściowe oraz kompletny system klimatyzacji kanałowej zainstalowany w całym budynku. Wybrane domy posiadają prywatny mini basen, który pozwala cieszyć się letnimi miesiącami w zaciszu własnego domu. Pomieszczenia wspólne w stylu kurortowym Mieszkańcy mogą korzystać z wyjątkowej gamy pomieszczeń wspólnych zaprojektowanych z myślą o relaksie i dobrym samopoczuciu. Osiedle obejmuje ogrody krajobrazowe, duży wspólny basen, siłownię, saunę, spa i strefę relaksu, tworząc atmosferę kurortu idealną do spotkań towarzyskich lub odpoczynku przez cały rok. Doskonała lokalizacja w pobliżu plaży, pola golfowego i usług Kompleks znajduje się niecałe 2 km od plaży i 7 minut spacerem od niezbędnych usług, takich jak supermarkety, restauracje, sklepy, centrum zdrowia, obiekty rekreacyjne i kilka renomowanych pól golfowych. Odległości do najważniejszych punktów Historyczne centrum Marbelli: 15 km Marina Puerto Banus: 20 km Międzynarodowe lotnisko w Maladze: 45 km Stacja kolejowa Maria Zambrano: 30 km Najbliższe pola golfowe: 2 km Twoje nowe mieszkanie na Costa del Sol czeka Odkryj idealne połączenie nowoczesnego designu, doskonałej lokalizacji i wysokiej jakości życia. Skontaktuj się z nami już dziś, aby umówić się na oglądanie i zapewnić sobie nowe mieszkanie w pobliżu Marbelli i wybrzeża Morza Śródziemnego. 631