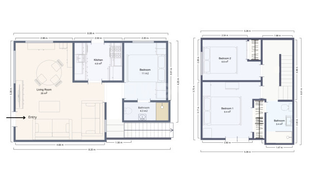
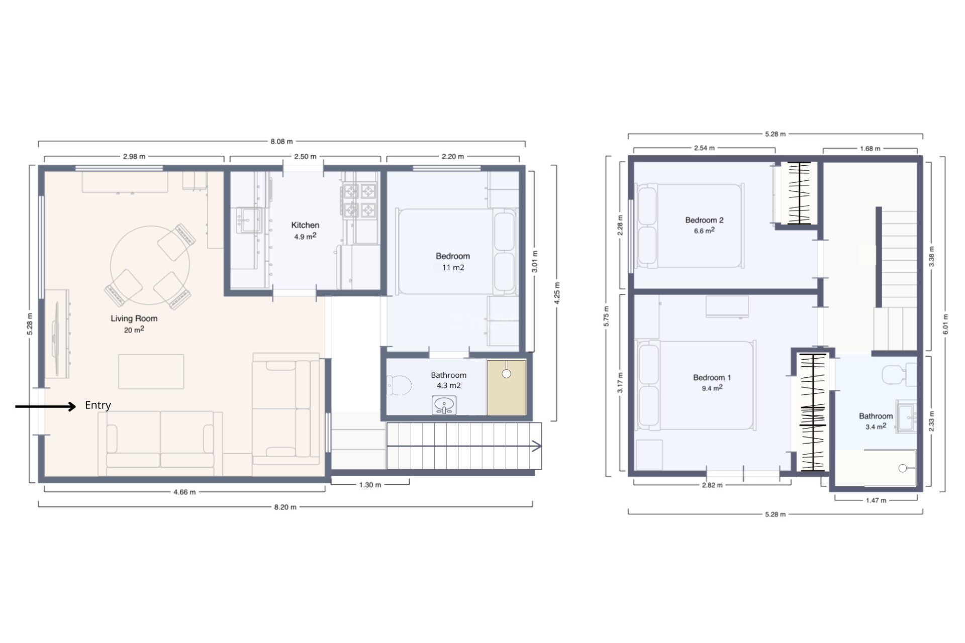
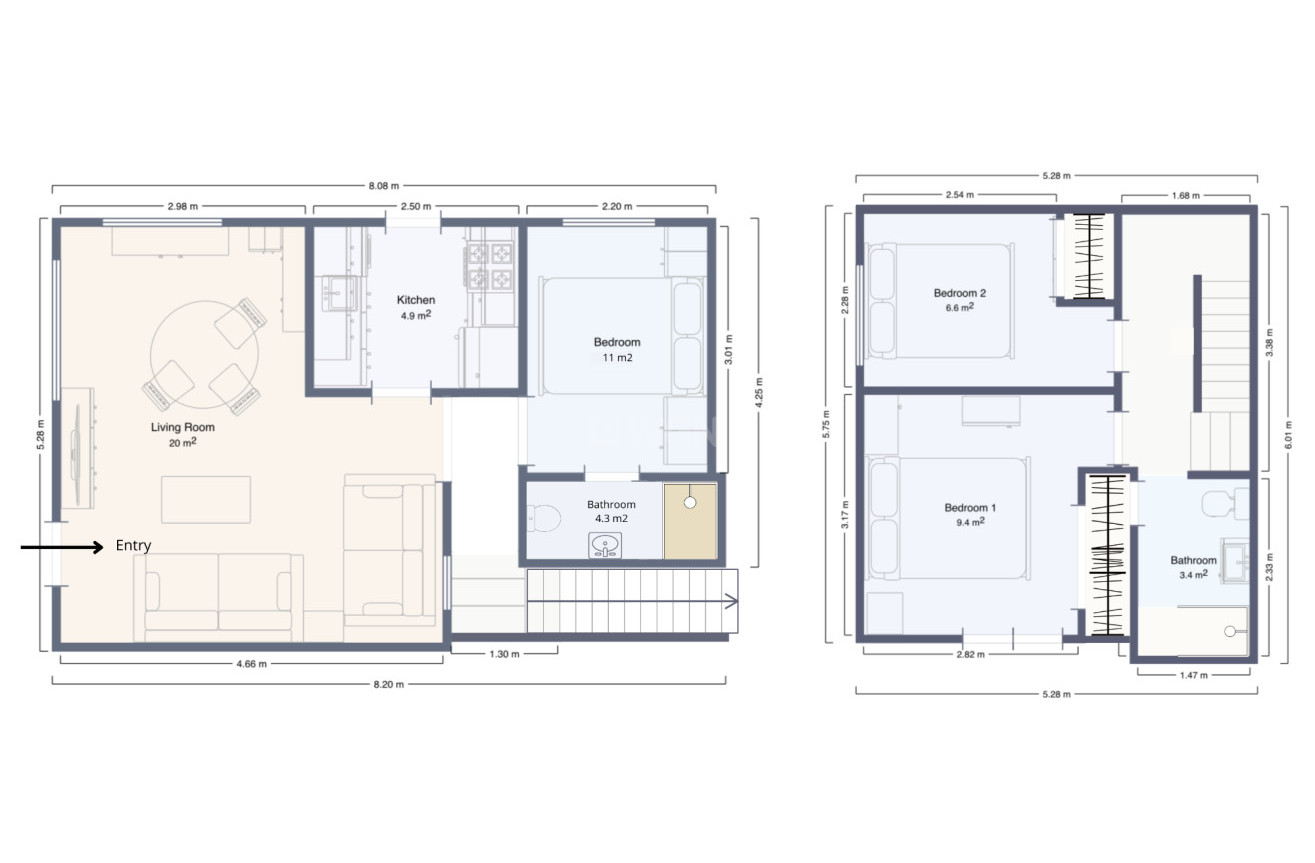
4.393 Nieruchomości

Wyszukaj nieruchomości
WhatsApp