REF. NB-18747
3
2
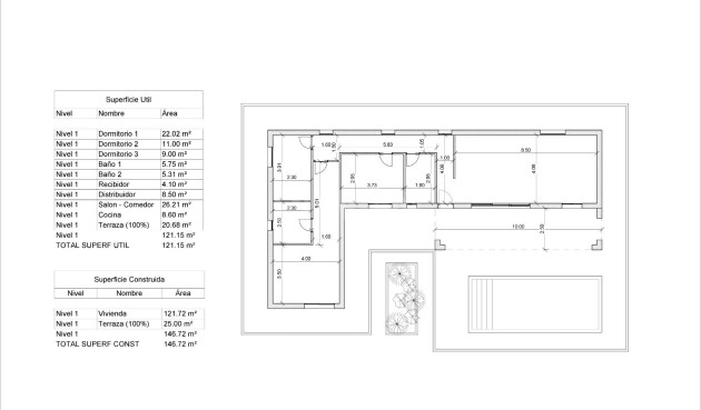
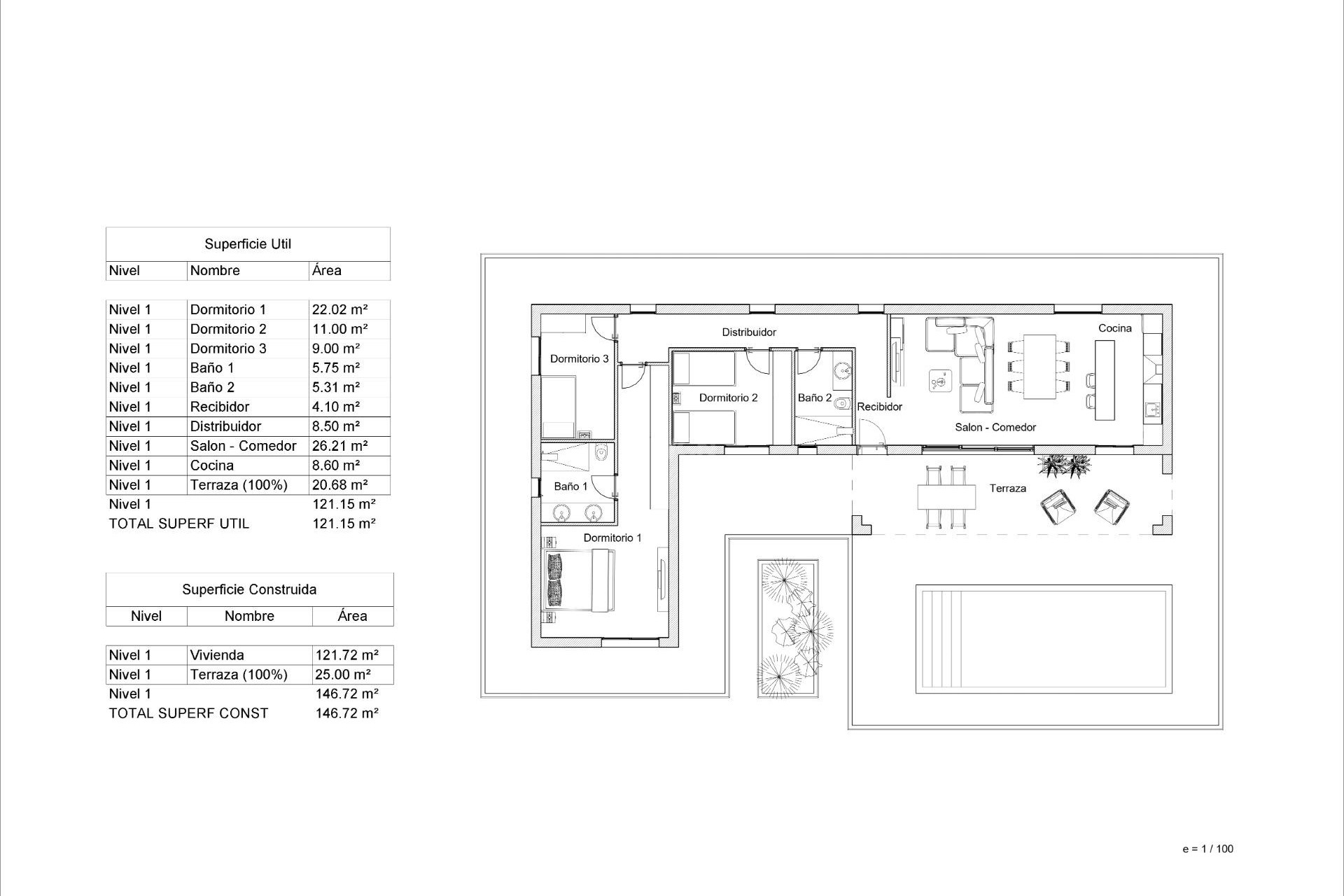
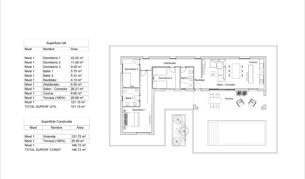
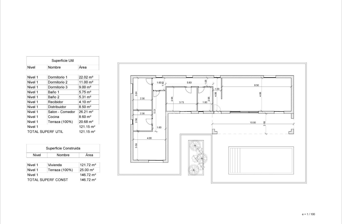
146m2
120m2
10.227m2
Tak
40000 Mts.
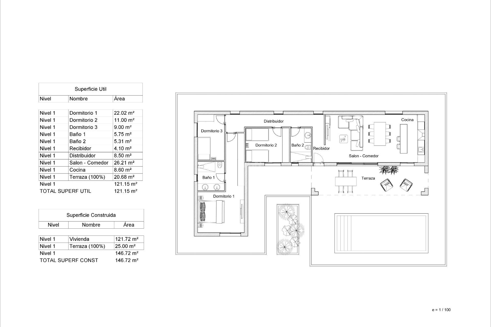
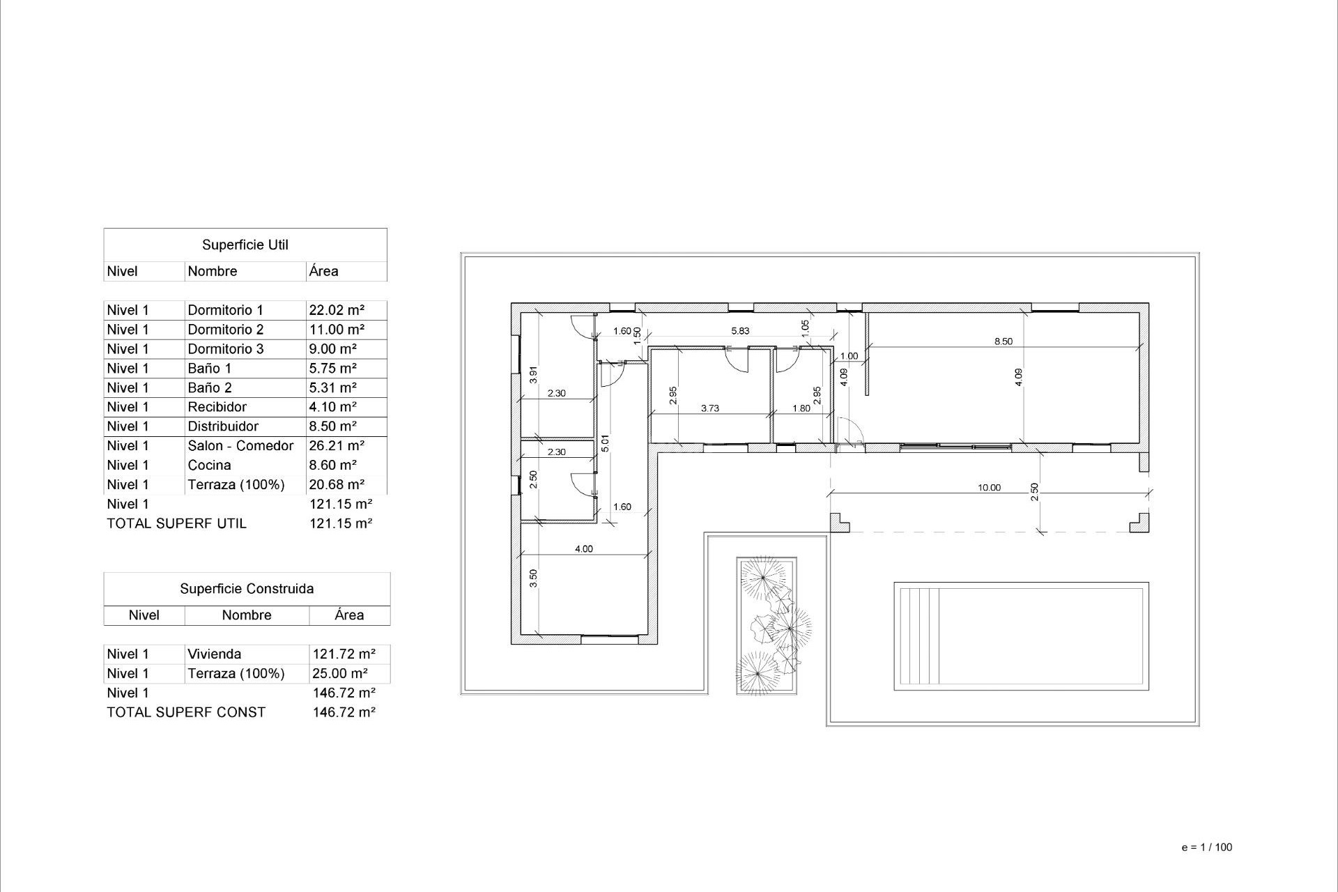
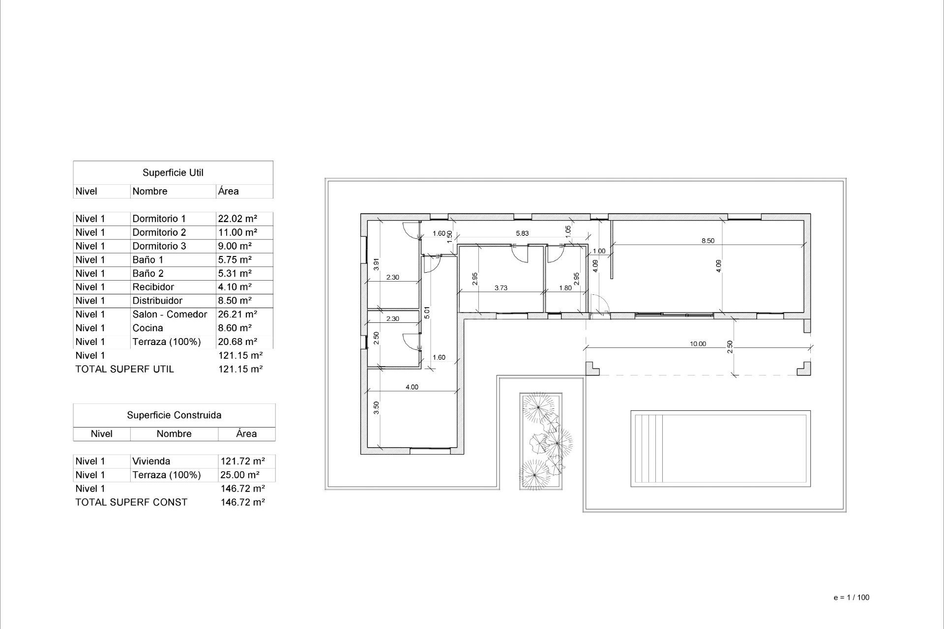
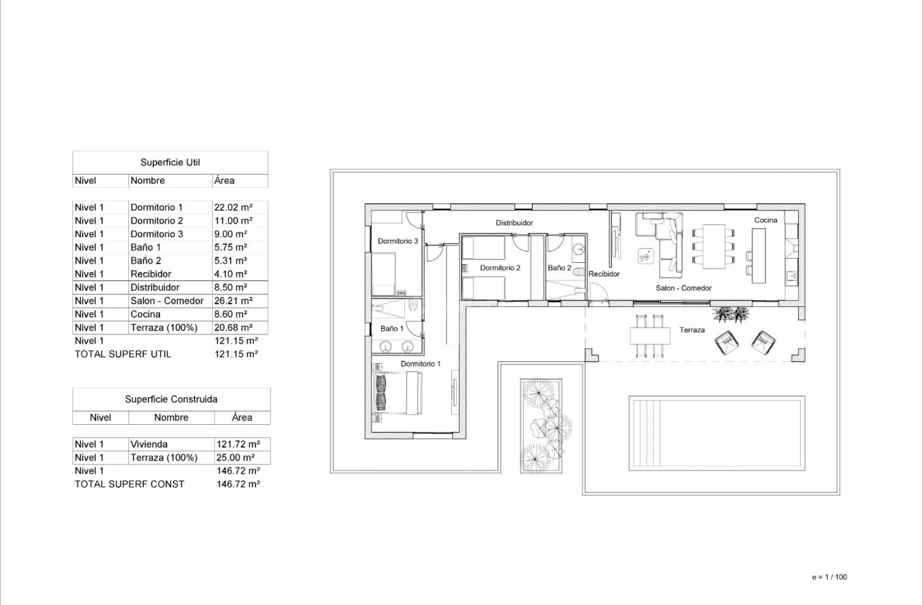
Nowe domy w La Romana. Nowe wille z kilkoma modelami do wyboru, z 2 lub 3 sypialniami, jedno- lub dwupiętrowe, zbudowane z płyt lub konstrukcji szkieletowej: w zależności od modelu i wybranej działki zostanie obliczona dokładna cena. Wszystkie wille są budowane na działkach rustykalnych o powierzchni ponad 10 000 m2, z czego 2500 m2 zostanie ogrodzone. Wille posiadają kuchnię amerykańską z salonem, szafy wnękowe, prywatny basen, werandę i miejsce parkingowe na zewnątrz. Do wyboru jest kilka działek, do obliczenia ceny przyjęto działkę o cenie 73 000 euro (w przypadku wyboru innej działki należy dopłacić różnicę w zależności od jej ceny). Realizacja na zasadzie autopromocji, oddanie do użytku w ciągu około 12 miesięcy od uzyskania pozwolenia na budowę. Jeśli szukasz spokojnej okolicy, w pobliżu typowych hiszpańskich miasteczek, z dala od turystycznego zgiełku, w otoczeniu gór, z bardzo dużą działką i około 30 minut od morza, to jest to dom dla Ciebie. La Romana to typowa hiszpańska miejscowość z wszystkimi udogodnieniami niezbędnymi do codziennego życia, otoczona górami i kilkoma miejscami o pięknej przyrodzie, gdzie można uprawiać turystykę pieszą lub rowerową. Położona 30 minut od lotniska w Alicante.