REF. NB-17476
3
2
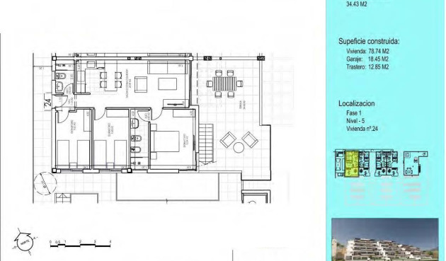
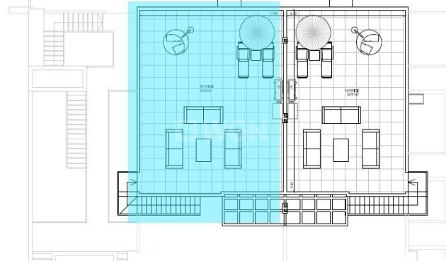
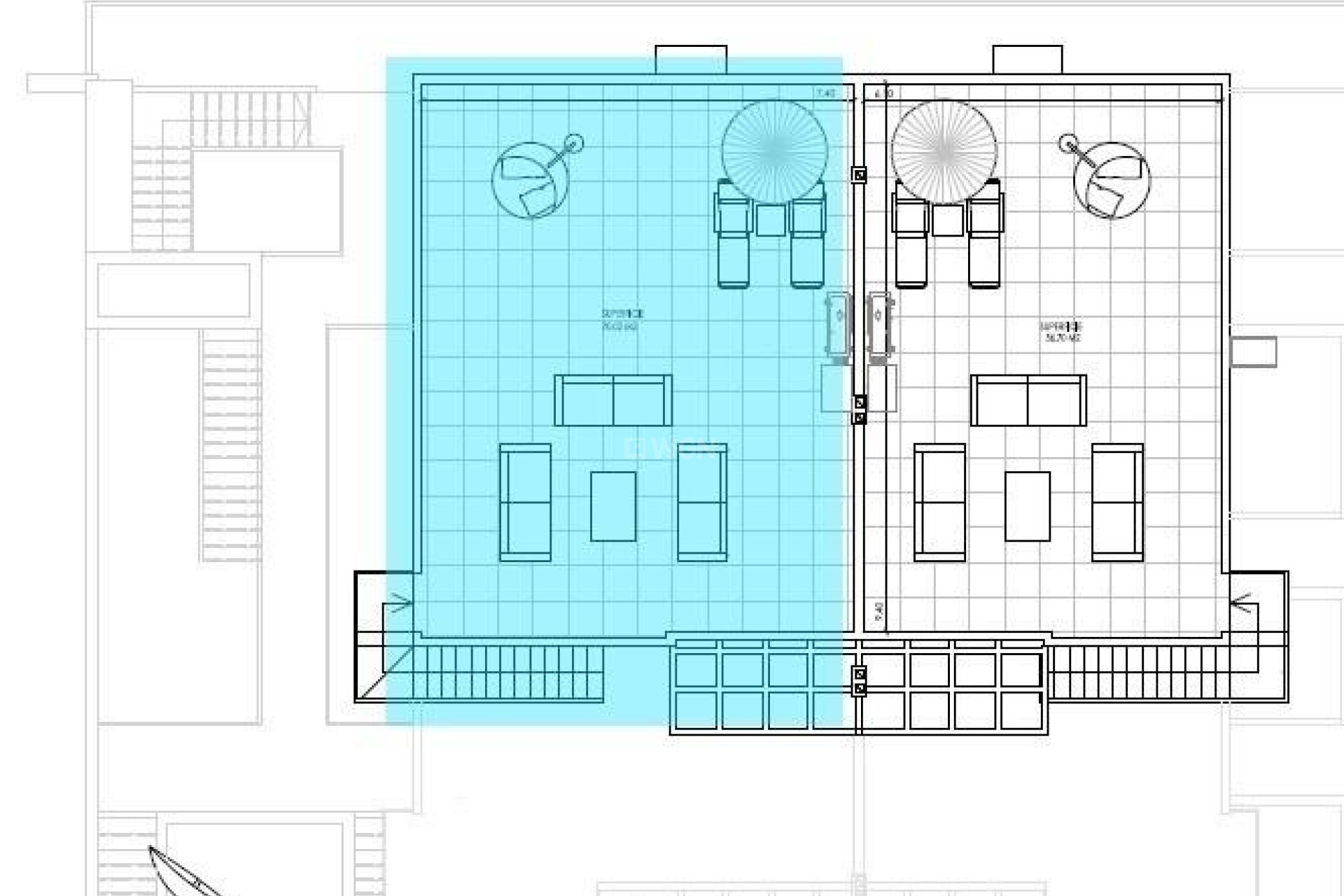
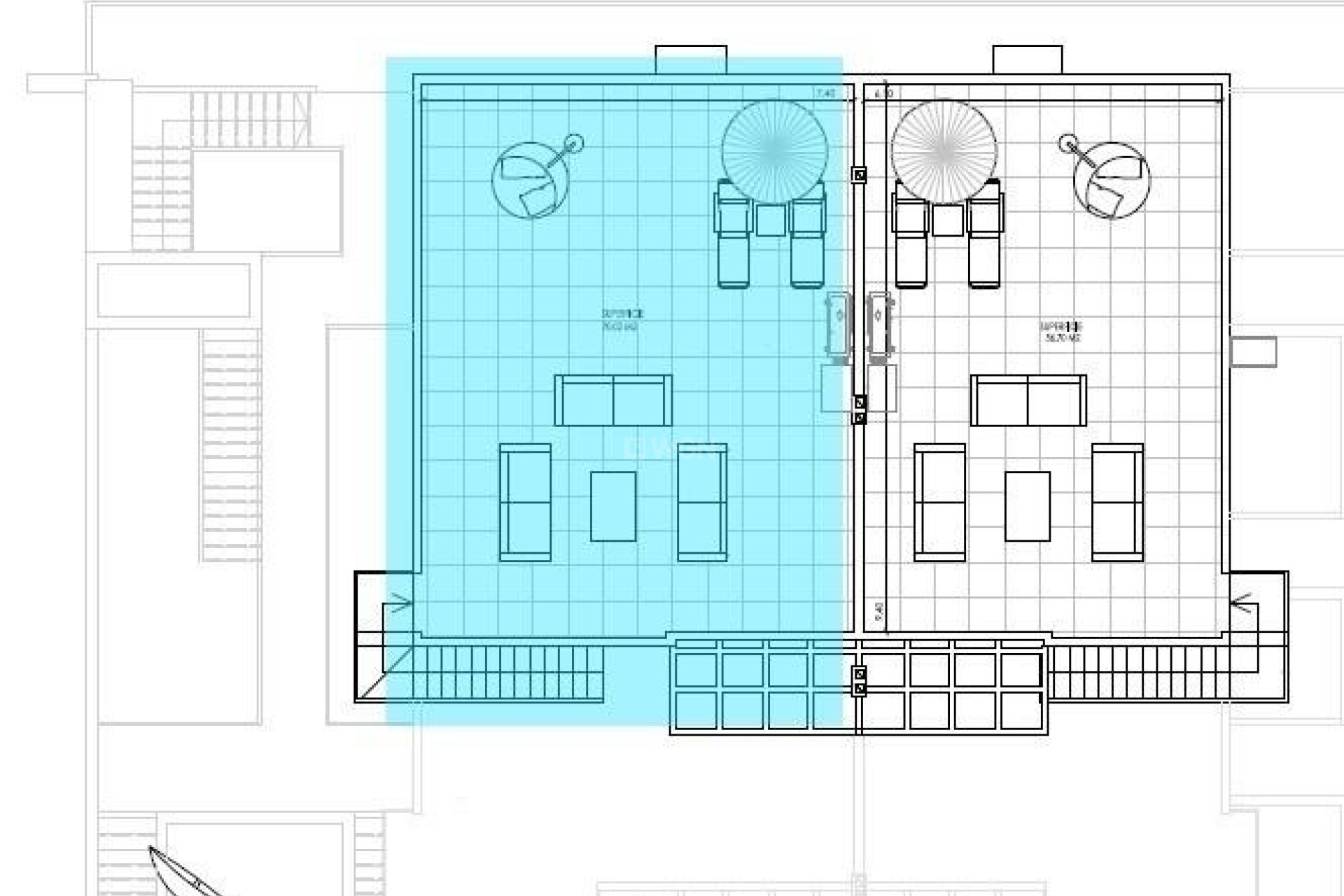
78m2
70m2
Tak
700 Mts.
Nowe apartamenty z widokiem na morze w Vera Playa, Almería Odkryj tę wyjątkową nową inwestycję mieszkaniową w Vera Playa, oferującą 27 nowoczesnych apartamentów w pierwszej fazie budowy. Projekt ten, łączący w sobie komfort, funkcjonalność i spektakularne widoki na Morze Śródziemne, jest idealnym rozwiązaniem dla osób poszukujących stylowego i wygodnego domu na wybrzeżu Costa de Almería. Nowoczesne domy z widokiem na morze Każdy apartament został starannie zaprojektowany, aby maksymalnie wykorzystać naturalne światło i przestrzeń zewnętrzną. Do wyboru są apartamenty z 1, 2 i 3 sypialniami, z prywatnymi ogrodami na parterze, przestronnymi tarasami na środkowych piętrach oraz penthouse'ami z prywatnymi solarium. Dzięki tarasowej konstrukcji wszystkie domy mają odkryte tarasy z przepięknym widokiem na morze. Wysokiej jakości wykończenie i w pełni wyposażone domy Każda nieruchomość jest w pełni umeblowana i wyposażona, gotowa do wprowadzenia się. Wyposażenie obejmuje: Umeblowana kuchnia z wyposażeniem Kompletne łazienki z nowoczesną armaturą Klimatyzacja kanałowa Prywatne miejsce parkingowe i schowek Ekskluzywne udogodnienia dla mieszkańców Najważniejszym atutem tego kompleksu mieszkaniowego jest wspólny basen otoczony ogrodami krajobrazowymi, tworzący idealne miejsce do relaksu, opalania się i spędzania czasu z rodziną. Doskonała lokalizacja w Vera Playa Vera Playa słynie z długich piaszczystych plaż, spokojnego stylu życia i doskonałych udogodnień. Osiedle położone jest w cichej, ale dobrze skomunikowanej okolicy, z łatwym dostępem do usług i środków transportu. Najważniejsze odległości: Plaża: 700 m Desert Springs Golf Resort: 8 km Centrum miasta Vera: 5 km Marina Garrucha i restauracje: 6 km Park handlowy Mojácar: 10 km Lotnisko Almería: 85 km (ok. 1 godzina) Stacja szybkiej kolei AVE (w budowie): 3 km Idealny dom lub okazja inwestycyjna Niezależnie od tego, czy szukasz stałego miejsca zamieszkania, domku letniskowego, czy bezpiecznej inwestycji, te nowo wybudowane apartamenty w Vera Playa oferują doskonałą wartość w jednej z najbardziej pożądanych nadmorskich miejscowości Almerii. Zrób Vera Playa swoim nowym domem i doświadcz idealnego połączenia nowoczesnego życia, widoków na morze i śródziemnomorskiego stylu życia. Skontaktuj się z nami już dziś, aby umówić się na wizytę i zabezpieczyć swoją wymarzoną nieruchomość na Costa de Almería.