REF. SP-96361
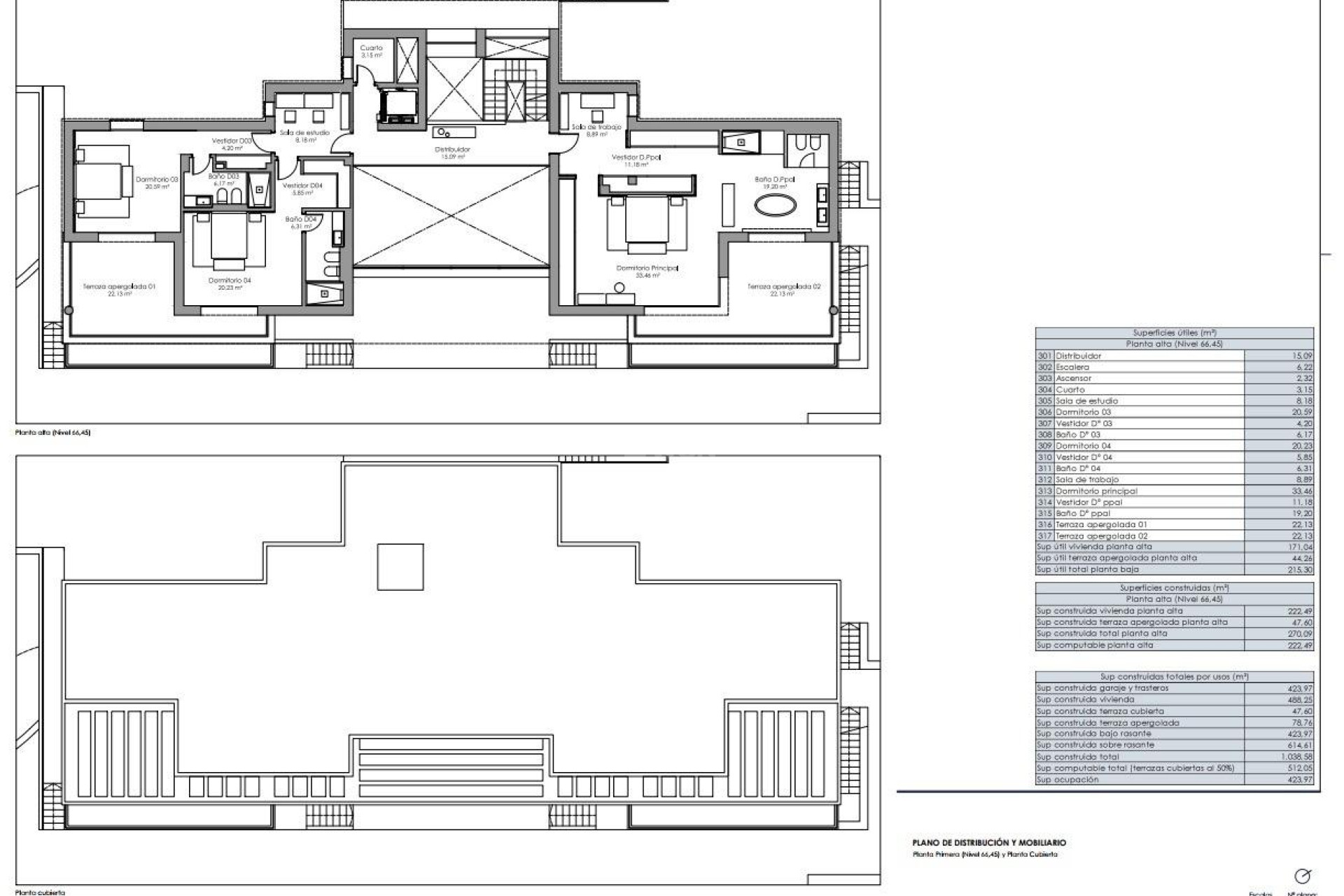
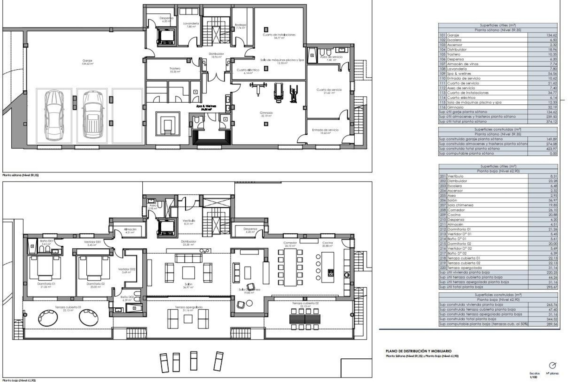
6
7
1.038m2
800m2
1.915m2
Tak
3000 Mts.
RYNEK PIERWOTNY LUKSUSOWA WILLA Z WIDOKIEM NA MORZE W EL PARAISO GOLF, NIEDALEKO ESTEPONY Zbudowane z materiałów najwyższej jakości, dbamy o każdy szczegół projektu od początku jego realizacji do momentu dostarczenia go klientowi. Przestrzenie wewnętrzne mają unikalny i ekskluzywny design dla każdego domu, łącząc nowoczesny i współczesny styl z najwyższą wydajnością. 6 sypialni 7 łazienek Powierzchnia zabudowy 1038 m2 Powierzchnia działki 1915 m2 Po zejściu na niższe piętro czeka na Ciebie świat wypoczynku i relaksu. Znajdziesz tu piwniczkę z winami, w pełni wyposażoną siłownię i relaksujące spa z sauną. Dostęp do windy pozwala bez wysiłku poruszać się między różnymi poziomami. Pokój gościnny, pralnia, spiżarnia i garderoba zostały zaprojektowane tak, aby zaspokoić każdą potrzebę. Prywatny garaż może pomieścić 3 pojazdy, gwarantując bezpieczeństwo oraz łatwy i wygodny dostęp. Luksusowe cechy: Konstrukcja ECO o bardzo niskim zużyciu energii. Nowoczesny i współczesny design, przestronny, jasny i otwarty. Najwyższej jakości podłogi PORCELANOWE, wymiary 120x120cm, imitacja marmuru. Sypialnie, główna łazienka i górne dystrybutory będą wykonane z najwyższej jakości DREWNA LAMINOWANEGO w kolorze białego dębu. Szkło z wewnętrzną komorą powietrzną dla lepszej izolacji termicznej i akustycznej. Kuchnia najwyższej jakości, zgodnie z projektem. Z WYSPĄ CENTRALNĄ, blatem SILESTONE, sprzętem AGD najlepszych marek. Ogrzewanie podłogowe w całym domu. Wspólny sprzęt aerotermalny z systemem CWU. System pompy ciepła marki DAIKIN lub podobnej, który umożliwia ogrzewanie, chłodzenie i ciepłą wodę użytkową. Jednostka zewnętrzna umieszczona na dachu lub w niewidocznych miejscach na zewnątrz. Szeroki prywatny parking na pierwszym piętrze dla 3 pojazdów. Duży schowek i pomieszczenie gospodarcze w piwnicy. Elektryczna brama przy wjeździe na posesję ze zdalnym otwieraniem dla pojazdów. Prywatny ogród krajobrazowy z prywatnym basenem. Automatyczny system nawadniania. System automatyki domowej: wstępna instalacja systemu CONTROL 4 i wbudowany wyświetlacz 10″. 631