REF. SP-65366
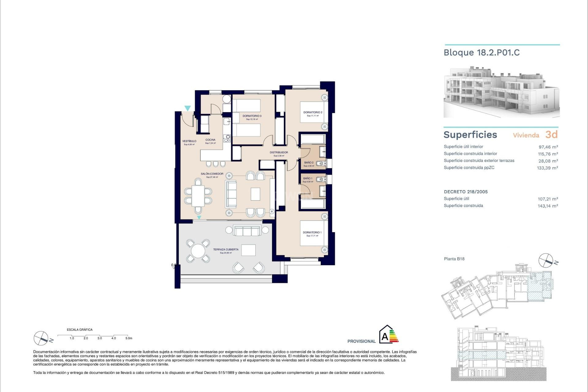
3
2
143m2
107m2
Tak
1000 Mts.
Ekskluzywny ośrodek wypoczynkowy ze spa i basenami w okolicy Selwo, Estepona Doskonała lokalizacja pomiędzy naturą a morzem na Costa del Sol Ten ekskluzywny, nowo wybudowany ośrodek położony jest w popularnej okolicy Selwo, pomiędzy Esteponą a San Pedro de Alcántara, w strategicznej lokalizacji w samym sercu Złotej Mili Costa del Sol. Zaledwie 1 km od plaży i tuż obok parku przyrodniczego Selwo Aventura, kompleks oferuje wyjątkowe otoczenie przyrody z widokiem na morze, dostęp do usług i szeroką ofertę rekreacji na świeżym powietrzu. Estepona, jedna z najbardziej znanych gmin na wybrzeżu Malagi, położona jest pomiędzy dwoma najbardziej prestiżowymi portami jachtowymi na Morzu Śródziemnym: Puerto Banús i Sotogrande. Okolica łączy w sobie przyrodę, plażę, golf, gastronomię i kulturę oraz doskonałe połączenia komunikacyjne. Nowoczesne mieszkania o doskonałej jakości i widokach Inwestycja obejmuje apartamenty z 1, 2, 3 i 4 sypialniami, dostosowane do każdego stylu życia: Parterowe z prywatnym ogrodem Mieszkania pośrednie z dużymi tarasami Apartamenty na najwyższym piętrze z widokiem na morze, a niektóre z prywatnym solarium Każda jednostka obejmuje co najmniej jedno miejsce parkingowe i schowek. Domy wyróżniają się nowoczesnym designem, dużymi oknami i wysokiej jakości wykończeniem. Umeblowane kuchnie z wyposażeniem AGD W pełni zainstalowana klimatyzacja kanałowa Elektryczne rolety w sypialniach Dostępne opcje personalizacji Najwyższej klasy udogodnienia zapewniające życie jak w kurorcie Ten kompleks mieszkaniowy oferuje ekskluzywny styl życia dzięki kompletnym strefom wspólnym: 4 baseny zewnętrzne Spa z krytym i podgrzewanym basenem Siłownia Prywatne kino Klub młodzieżowy Przestrzeń coworkingowa Łączność i pobliskie atrakcje Najbliższa plaża: 1 km Selwo Aventura: 500 m Puerto Banús (Marbella): 13 km Centrum Estepony: 9 km Sotogrande: 37 km Lotnisko Malaga-Costa del Sol: 71 km Lotnisko Gibraltar: 49 km Stacja AVE María Zambrano (Malaga): 75 km Pobliskie pola golfowe: La Resina Golf (2 km), Valle Romano Golf (10 km), Los Flamingos Golf (5 km) Ciesz się prawdziwym śródziemnomorskim stylem życia Mieszkaj w wyjątkowym otoczeniu natury, nie rezygnując z bliskości miasta, morza i najlepszych usług. Skontaktuj się z nami już dziś, aby uzyskać więcej informacji lub umówić się na wizytę w tym wyjątkowym kurorcie mieszkaniowym w Esteponie. 631