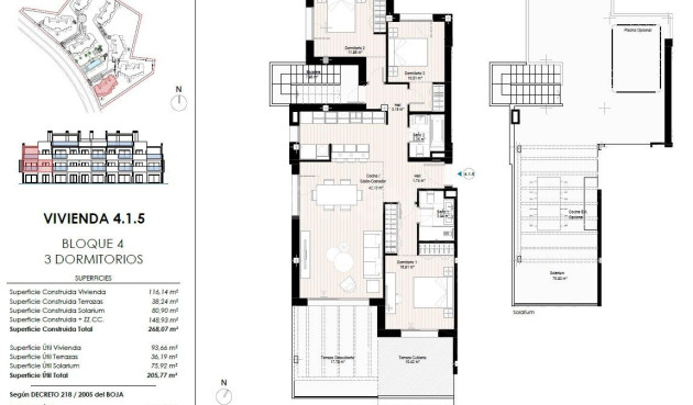
REF. SP-74063
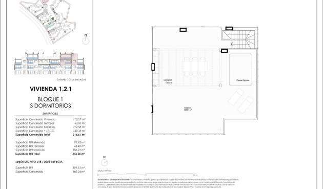
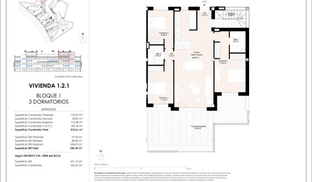
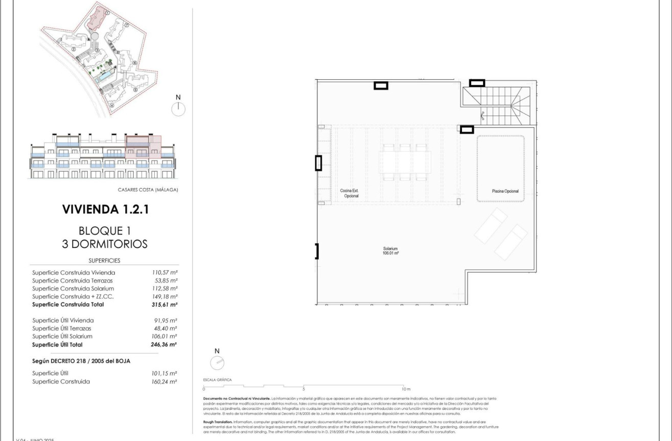
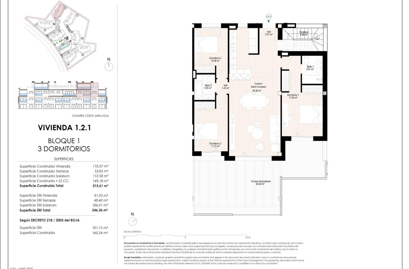
3
2
160m2
101m2
Tak
700 Mts.
Nowe apartamenty na sprzedaż w Doña Julia Golf, Casares Costa Ekskluzywna inwestycja mieszkaniowa w samym sercu Costa del Sol Odkryj tę wyjątkową nową inwestycję położoną w prestiżowej okolicy Doña Julia Golf w Casares. Dzięki doskonałej lokalizacji pomiędzy Esteponą, Sotogrande i Marbellą, rezydencja cieszy się doskonałym połączeniem komunikacyjnym z najważniejszymi miejscami w regionie. Otoczona renomowanymi polami golfowymi, znajduje się zaledwie 700 metrów od jednych z najbardziej dziewiczych plaż na Costa del Sol oraz kilka minut od ekskluzywnych marin i terenów rekreacyjnych. Nowoczesne domy z widokiem na morze Kompleks składa się z 99 wysokiej jakości apartamentów z 2 i 3 sypialniami, każdy zaprojektowany tak, aby maksymalnie wykorzystać naturalne światło i śródziemnomorski styl życia. Apartamenty na parterze posiadają prywatne ogrody, a penthouse'y słoneczne tarasy z przepięknym widokiem na morze. Każdy dom posiada przestronne tarasy, prywatne miejsce parkingowe i schowek, zapewniając komfort i praktyczność. Najwyższej klasy udogodnienia wspólne Ciesz się zdrowym i aktywnym stylem życia dzięki wyjątkowym udogodnieniom wspólnym. Ogrody krajobrazowe, dwa baseny zewnętrzne dla dorosłych i dzieci, w pełni wyposażona siłownia, tor do ćwiczeń kalistenicznych, strefa coworkingowa, a nawet symulator golfa w pomieszczeniu – wszystko to znajduje się w tym ekskluzywnym kompleksie. Mieszkańcy mogą zrelaksować się w saunie i łaźni tureckiej lub skorzystać z zewnętrznej strefy wypoczynkowej z grillem. Na terenie ogrodzonego obiektu znajduje się również parking dla rowerów. Nowoczesne wnętrza i wykończenia Każdy apartament posiada kuchnię w stylu włoskim wyposażoną w nowoczesny sprzęt AGD, łazienki z meblami wiszącymi i podwójnymi umywalkami w głównych sypialniach oraz przesuwane kabiny prysznicowe. Bezkonkurencyjna lokalizacja i doskonałe połączenia komunikacyjne Dzięki codziennym udogodnieniom, takim jak supermarkety, apteki i restauracje w pobliżu, inwestycja ta oferuje idealne połączenie spokoju i dostępności. Odległości do najważniejszych atrakcji: Plaża – 0,7 km (15 minut pieszo) Marina La Duquesa – 8 km (10 minut samochodem) Centrum miasta Estepona – 12 km (15 minut samochodem) Puerto Banús – 28 km (25 minut samochodem) Sotogrande – 26 km (25 minut samochodem) Pola golfowe (Doña Julia, Finca Cortesín, Estepona, Sotogrande) – 5 do 20 minut samochodem Lotnisko w Gibraltarze – 40 km (45 minut samochodem) Lotnisko w Maladze – 90 km (1 godzina 10 minut samochodem) Żyj stylem Costa del Sol w Casares Casares, urokliwa andaluzyjska biała wioska, oferuje idealne połączenie górskich krajobrazów i dziewiczych śródziemnomorskich plaż. Niezależnie od tego, czy szukasz stałego miejsca zamieszkania, wakacyjnej rezydencji, czy inwestycji, ta inwestycja zapewnia niezrównany komfort, nowoczesny design i wyjątkowe otoczenie. Skontaktuj się z nami już dziś, aby zapewnić sobie nowy dom w Casares Costa i zacząć cieszyć się śródziemnomorskim stylem życia. 631