REF. SP-22721
3
2
114m2
100m2
298m2
Tak
14000 Mts.
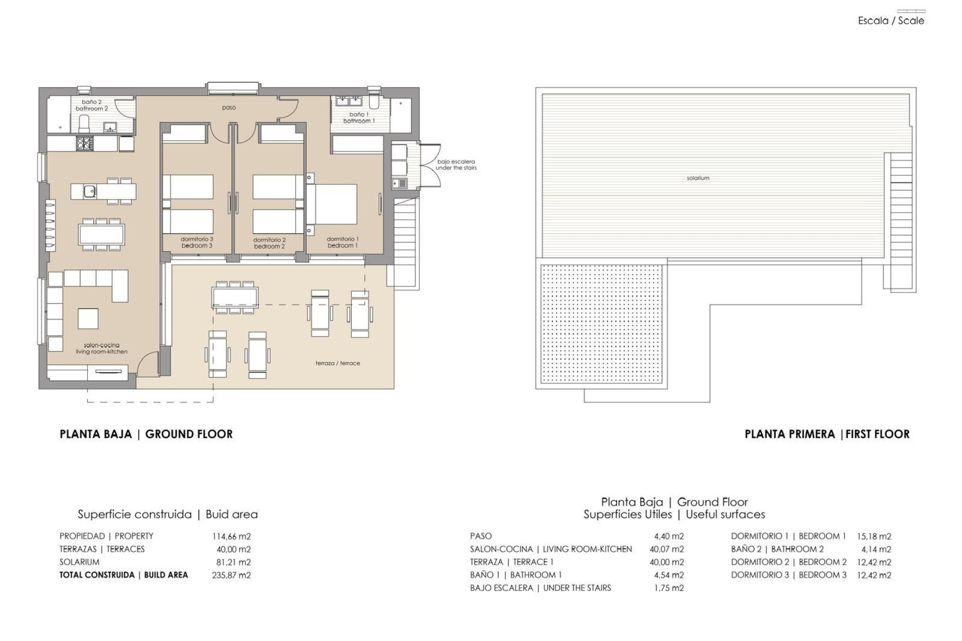
Nowe wille w ośrodku golfowym Vistabella – Orihuela Poczuj nowoczesny styl życia w stylu śródziemnomorskim w samym sercu Costa Blanca dzięki tym wspaniałym nowym willom w ośrodku golfowym Vistabella. Położona pomiędzy San Miguel de Salinas i Los Montesinos, w gminie Orihuela, ta ekskluzywna inwestycja oferuje luksus, komfort i niezrównaną lokalizację zarówno dla miłośników golfa, jak i osób poszukujących odpowiedniego stylu życia. Dwa różne modele willi Kupujący mogą wybierać spośród dwóch eleganckich projektów: Wille parterowe z 3 sypialniami, 2 łazienkami i solarium na dachu. Wille dwupoziomowe z 4 sypialniami, 3 łazienkami i tarasem solarium na pierwszym piętrze. Oba modele są położone na działkach o powierzchni około 300 m² i obejmują prywatny basen oraz parking na terenie obiektu. Najwyższa jakość i nowoczesny komfort Każda willa posiada luksusowe wykończenie, w tym w pełni zainstalowaną klimatyzację kanałową, wyposażoną kuchnię ze sprzętem AGD, oświetlenie zewnętrzne, elektryczne rolety oraz eleganckie kabiny prysznicowe w łazienkach. Połączenie stylu i funkcjonalności zapewnia dom, który jest zarówno piękny, jak i praktyczny. Ekskluzywny styl życia w ośrodku golfowym Vistabella Golf Resort to ogrodzona społeczność z 18-dołkowym polem golfowym, kortami do paddle tenisa, kręgielnią, supermarketem oraz szeroką gamą barów i restauracji. Przyszłe modernizacje podniosą standard ośrodka do poziomu prawdziwego 5-gwiazdkowego kurortu, a planowane dodatki obejmują bar szampański, bar sushi, hotel spa, sztuczną plażę, kort tenisowy, boisko do piłki nożnej i bar dla smakoszy. Doskonała lokalizacja na Costa Blanca Ośrodek oferuje doskonały dostęp do najlepszych plaż, pól golfowych i usług w regionie. Odległości do najważniejszych atrakcji: Plaża La Mata: 18 km Plaża Guardamar del Segura: 20 km Torrevieja: 15 km Lotnisko w Alicante: 55 km Lotnisko w Murcji: 68 km Villamartín Golf: 12 km Las Colinas Golf & Country Club: 14 km Twój wymarzony dom czeka Niezależnie od tego, czy szukasz stałego miejsca zamieszkania, domu wakacyjnego, czy inwestycji pod wynajem, te nowo wybudowane wille w Vistabella Golf Resort oferują wyjątkową wartość w jednym z najbardziej pożądanych nadmorskich regionów Hiszpanii. Skontaktuj się z nami już dziś, aby umówić się na oglądanie i zapewnić sobie miejsce w tej luksusowej społeczności golfowej. 631