REF. SP-50357
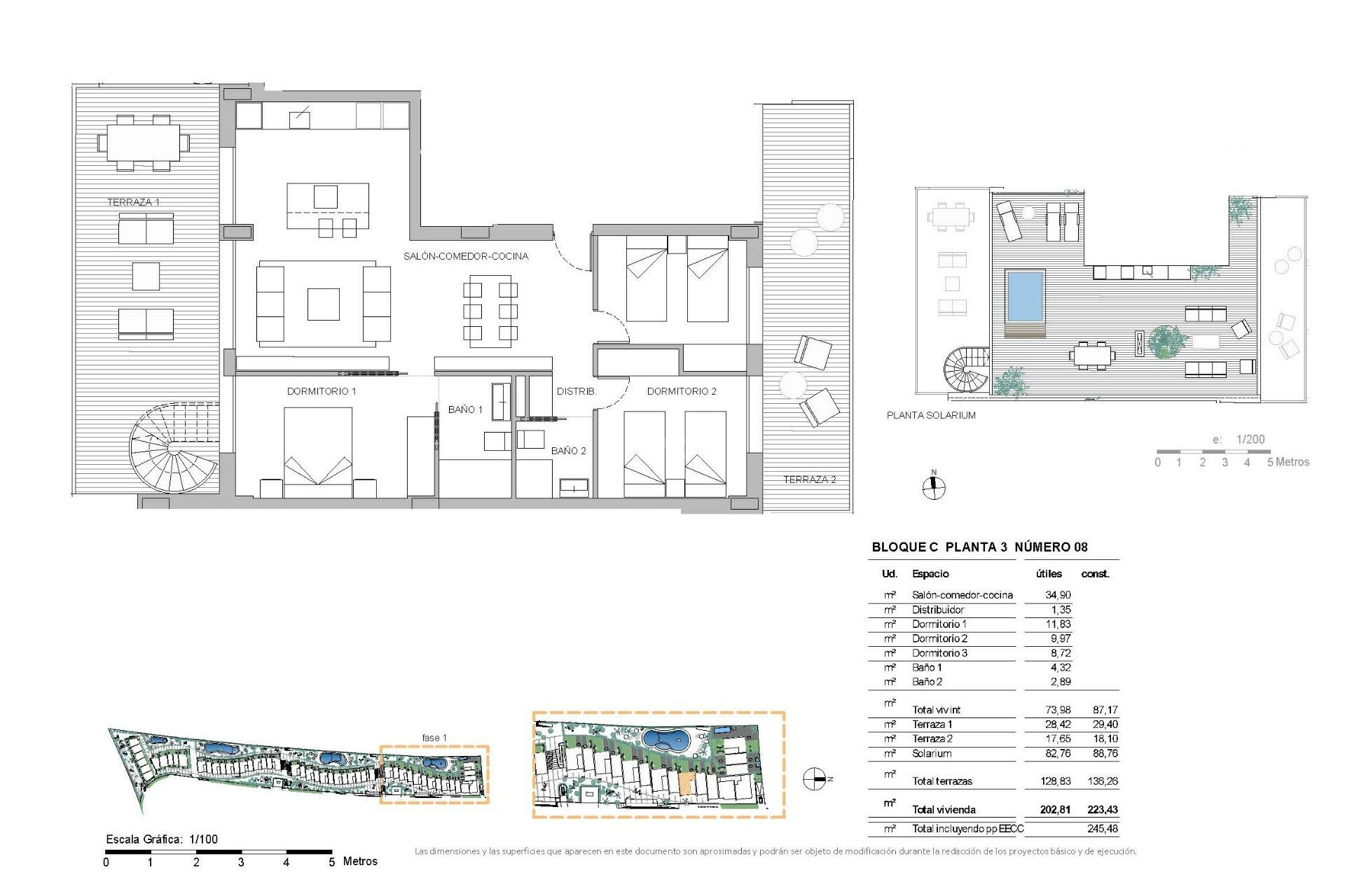
3
2
87m2
73m2
Sí
7000 Mts.
Apartamentos de nueva construcción en La Nucía: vida moderna en la Ciudad del Deporte, cerca de Benidorm Ubicación privilegiada en La Nucía, en la Costa Blanca Descubra esta excepcional promoción residencial de nueva construcción situada en La Nucía, una de las zonas más cotizadas de la Costa Blanca. Ubicada en el innovador barrio de la Ciudad del Deporte, esta ubicación ofrece una combinación única de infraestructuras modernas, entorno natural y comodidades para el día a día. A solo 7 km de las playas de Benidorm y Altea, La Nucía es conocida por su entorno tranquilo, sus excelentes instalaciones deportivas y su alta calidad de vida. La zona también cuenta con colegios internacionales, zonas comerciales y todos los servicios esenciales a poca distancia, lo que la hace ideal tanto para vivir de forma permanente como para estancias vacacionales. Apartamentos contemporáneos diseñados para la vida mediterránea Esta primera fase incluye 64 elegantes apartamentos con distribuciones de 2 y 3 dormitorios. Los compradores pueden elegir entre viviendas en planta baja con jardines privados, apartamentos en plantas intermedias con amplias terrazas o áticos con soláriums privados. La mayoría de las propiedades cuentan con dos amplias terrazas orientadas al este y al suroeste, lo que permite disfrutar de la luz del sol durante todo el día y aprovechar al máximo el clima mediterráneo. Los interiores están diseñados con distribuciones diáfanas, lo que maximiza la luz natural y crea una conexión fluida entre los espacios interiores y exteriores. Las cocinas, totalmente equipadas con electrodomésticos Bosch, se integran a la perfección con la zona de estar, mientras que los baños incluyen calefacción por suelo radiante, mobiliario moderno, espejos y mamparas de ducha. Acabados de alta calidad y eficiencia energética Cada vivienda está construida con materiales de primera calidad y tecnología moderna para garantizar el confort y la sostenibilidad. Entre las características destacan ventanas de doble acristalamiento con aislamiento térmico, persianas motorizadas, puertas de seguridad reforzadas y un sistema aerotérmico para el agua caliente y la climatización. Cada apartamento incluye además una plaza de aparcamiento privada y un trastero en el garaje subterráneo. Zonas comunes exclusivas para el estilo de vida y el bienestar La promoción ofrece unas instalaciones comunes excepcionales diseñadas para la relajación, el ocio y la productividad. Los residentes pueden disfrutar de una gran piscina rodeada de jardines paisajísticos, un gimnasio totalmente equipado y un spa de bienestar de más de 200 m² con jacuzzi, sauna y baño turco. Entre los servicios adicionales se incluyen un club social con espacios de coworking y una zona de juegos para niños, lo que crea un entorno comunitario dinámico y confortable. Excelente conectividad y puntos de interés cercanos Playas de Benidorm a 7 km Altea a 8 km Centro de La Nucía a 3 km Aeropuerto de Alicante a 60 km Villaitana Golf a 6 km Puerto de Altea a 10 km Oportunidad de inversión y estilo de vida mediterráneo Esta promoción no solo ofrece una vivienda moderna, sino también una excelente oportunidad de inversión, con servicios opcionales de gestión de alquiler diseñados para maximizar la rentabilidad cuando no se utiliza. Ponte en contacto con nosotros hoy mismo para recibir más información o concertar una visita y asegurarte tu nueva propiedad en La Nucía. 631