REF. SP-29850
4
5
454m2
400m2
858m2
Sí
4000 Mts.
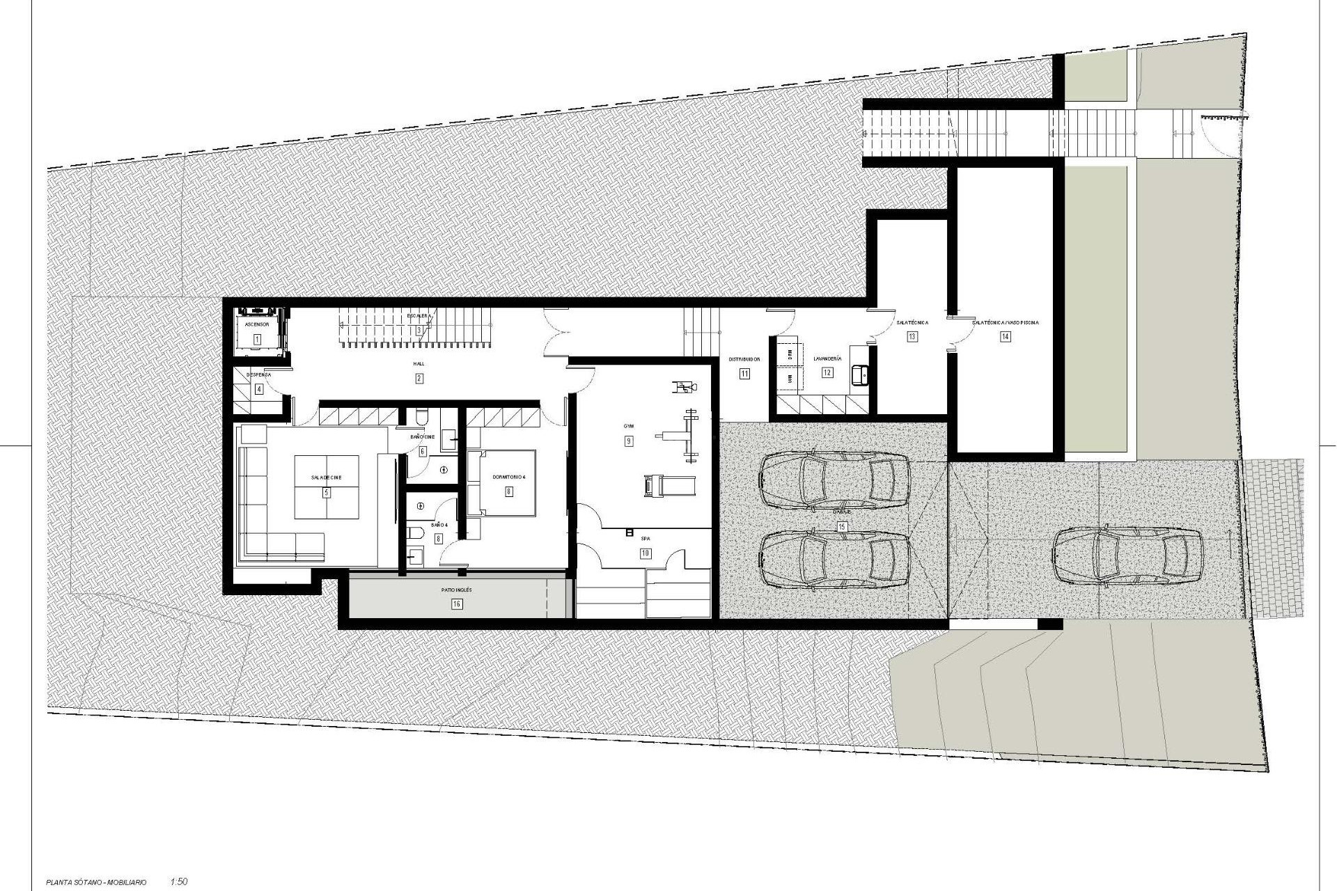
Villa de lujo de nueva construcción en La Cerquilla, Marbella Exclusiva Villa Contemporánea con Impresionantes Vistas al Mediterráneo Enclavada en el prestigioso barrio de La Cerquilla, esta lujosa villa de nueva construcción ofrece una combinación sin igual de elegancia moderna y belleza natural. Situada en el corazón del Valle del Golf de Marbella, esta obra maestra arquitectónica está diseñada con materiales de alta gama que se integran a la perfección con el paisaje circundante. Ubicada en una generosa parcela, la villa ofrece vistas panorámicas al mar Mediterráneo, un jardín meticulosamente ajardinado y amplios espacios exteriores diseñados para la relajación y el entretenimiento. Disfrute de una piscina privada, una cocina exterior y amplias terrazas, perfectas para comer al aire libre y relajarse con estilo. Exquisito diseño interior y características de alta gama Cada detalle de esta villa se ha elaborado para ofrecer una armoniosa mezcla de estética sofisticada y lujo funcional: Espacios diáfanos con puertas de cristal que van del suelo al techo, maximizando la luz natural y ofreciendo una vida interior y exterior sin interrupciones. Cocina de diseño con electrodomésticos de primera calidad y acabados de alta calidad. Amplia suite principal con vestidor y un elegante cuarto de baño privado. Dormitorios de invitados de lujo, diseñados para la privacidad y el confort. Instalaciones de nivel inferior, incluyendo un amplio garaje, sala de entretenimiento, oficina en casa, spa y gimnasio, que atienden a todos los aspectos de la vida moderna. Ubicación privilegiada en el Valle del Golf de Marbella Situada en la codiciada urbanización de La Cerquilla, esta villa ofrece un entorno privado y seguro a la vez que se encuentra cerca de las principales atracciones y servicios esenciales de Marbella. Disfrute de la tranquilidad de una zona residencial exclusiva con fácil acceso a destinos de estilo de vida vibrante. Distancias clave: Playa y costa mediterránea - 4 km. Puerto deportivo de Puerto Banús - 5 km. Casco antiguo de Marbella - 9 km. Campos de golf Los Naranjos y Las Brisas - A 2 km. Aeropuerto Internacional de Málaga - 60 km (40 minutos en coche). Colegios internacionales de renombre - 5-10 km. Una oportunidad única en una de las zonas más codiciadas de Marbella Esta excepcional villa moderna representa el pináculo de la vida mediterránea contemporánea. Tanto si busca una casa de ensueño, un refugio vacacional o una valiosa inversión, esta propiedad ofrece la combinación perfecta de exclusividad, elegancia y comodidad. Póngase en contacto con nosotros hoy mismo para programar una visita privada y descubrir el estilo de vida de lujo definitivo en Marbella. 631