REF. SP-25897
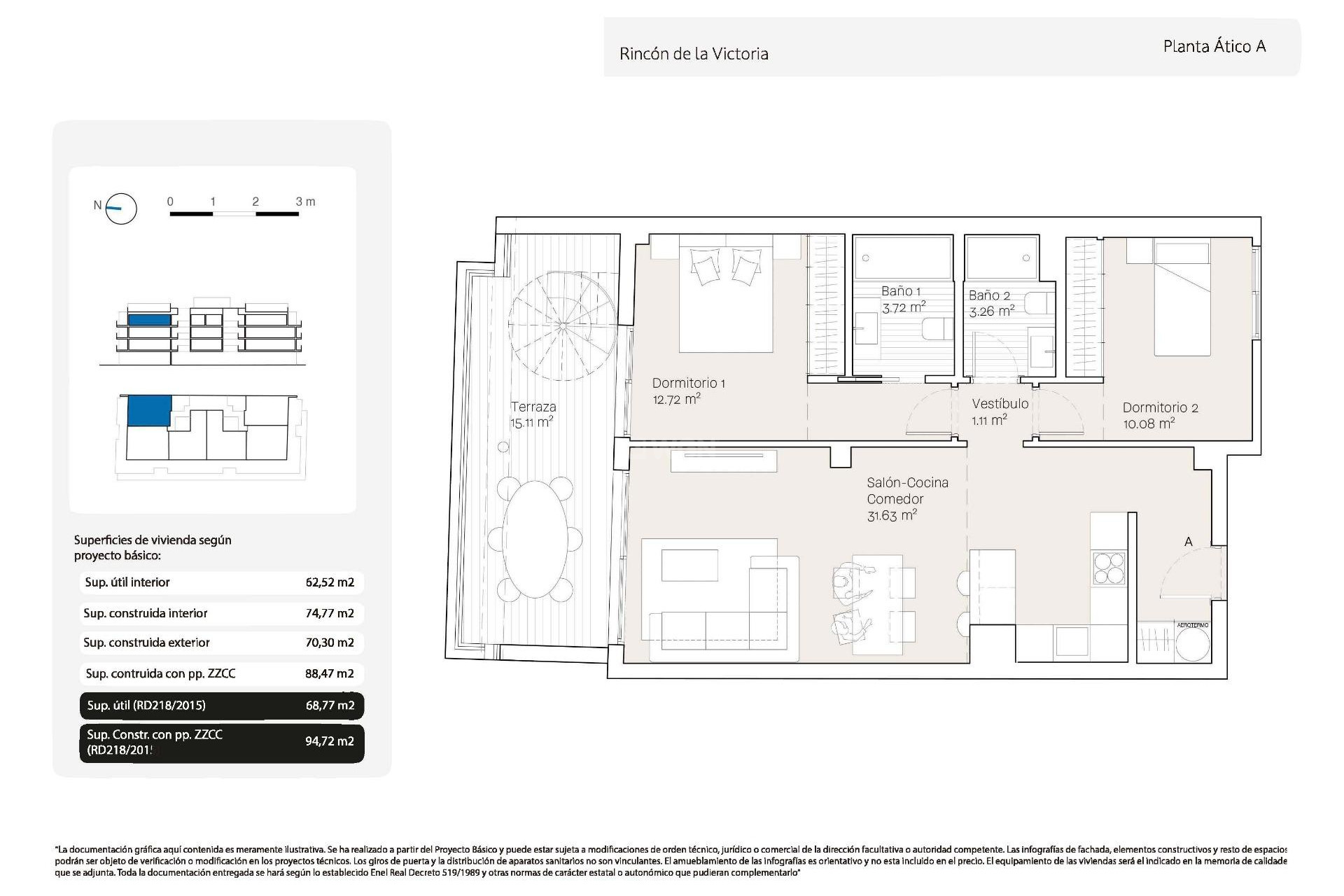
2
2
94m2
68m2
Sí
100 Mts.
Apartamentos de nueva construcción a 100 m del mar en Rincón de la Victoria, Torre de Benagalbon Moderno complejo residencial en la Costa del Sol Descubra este exclusivo complejo residencial de nueva construcción en Torre de Benagalbon, una zona costera dentro de Rincón de la Victoria. Situado a solo 100 metros del mar, el complejo ofrece 28 apartamentos y áticos contemporáneos de 1, 2 y 3 dormitorios, diseñados para disfrutar de la vida mediterránea en un entorno privilegiado. Rincón de la Victoria es una tradicional localidad costera situada en la Costa del Sol oriental, conocida por su ambiente relajado, sus largas playas, su paseo marítimo y su excelente gastronomía local. Con todos los servicios diarios, colegios, instalaciones deportivas y zonas comerciales en las inmediaciones, es un lugar ideal tanto para residencia permanente como para segunda residencia. La ciudad de Málaga se encuentra a solo 20 minutos y ofrece atracciones culturales, zonas comerciales y un animado puerto deportivo. Apartamentos luminosos con amplias terrazas El diseño arquitectónico sigue una estética limpia y moderna que potencia la luz natural y los espacios abiertos. La mayoría de las viviendas cuentan con amplias terrazas exteriores, creando una conexión perfecta entre las zonas interiores y exteriores. Las distribuciones interiores están cuidadosamente diseñadas para ofrecer espacios cómodos y funcionales. Los áticos incluyen un solárium privado, perfecto para tomar el sol o disfrutar de las vistas al mar con total privacidad. Cada propiedad incluye una plaza de aparcamiento privada y un trastero, lo que añade comodidad y valor añadido. Características de calidad y sistemas de eficiencia energética La promoción está equipada con instalaciones modernas para garantizar el confort y la eficiencia, incluyendo persianas eléctricas, sistema de videoportero y tecnología aerotérmica para el agua caliente y la climatización. Las cocinas se entregan sin amueblar, con la opción de seleccionar diferentes acabados con un coste adicional, lo que permite a los compradores personalizar su vivienda. Los residentes pueden disfrutar de una piscina comunitaria en la azotea con zona de solárium y hermosas vistas al mar, un espacio ideal para relajarse bajo el sol de la Costa del Sol. Excelente ubicación y distancias Playa 0,1 km Puerto de Málaga 20 km Centro de Málaga 20 km Aeropuerto de Málaga 30 km Anoreta Golf 5 km Asegure su hogar junto al mar Esta nueva promoción en Rincón de la Victoria ofrece un diseño moderno, proximidad al mar y excelentes conexiones con Málaga y el resto de la Costa del Sol. Póngase en contacto con nosotros hoy mismo para recibir más información o concertar una visita a estos exclusivos apartamentos a pocos pasos de la playa. 631