Villa · Obra nueva Benissa. Alicante

Villa · Obra nueva Benissa. Alicante

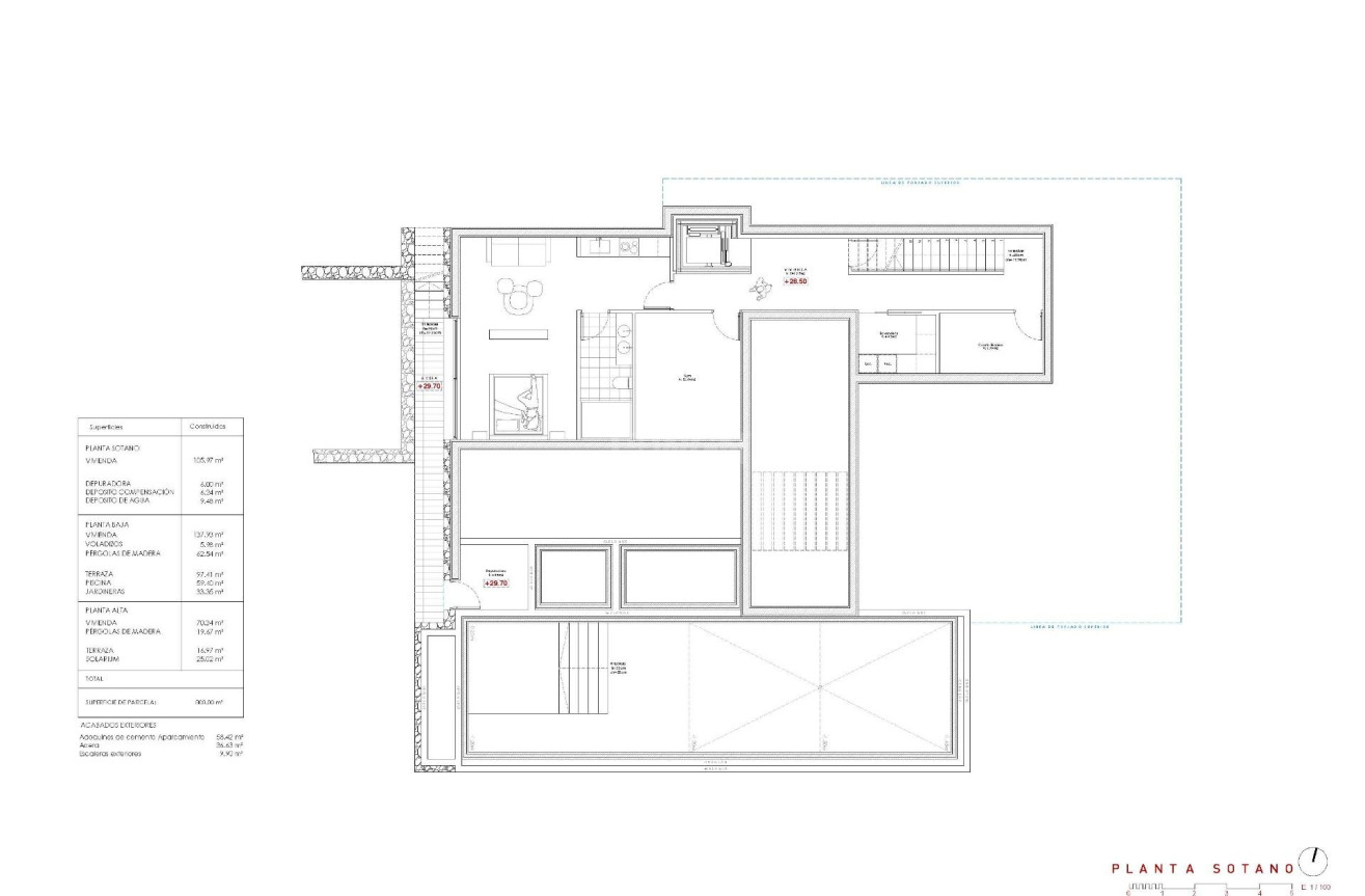
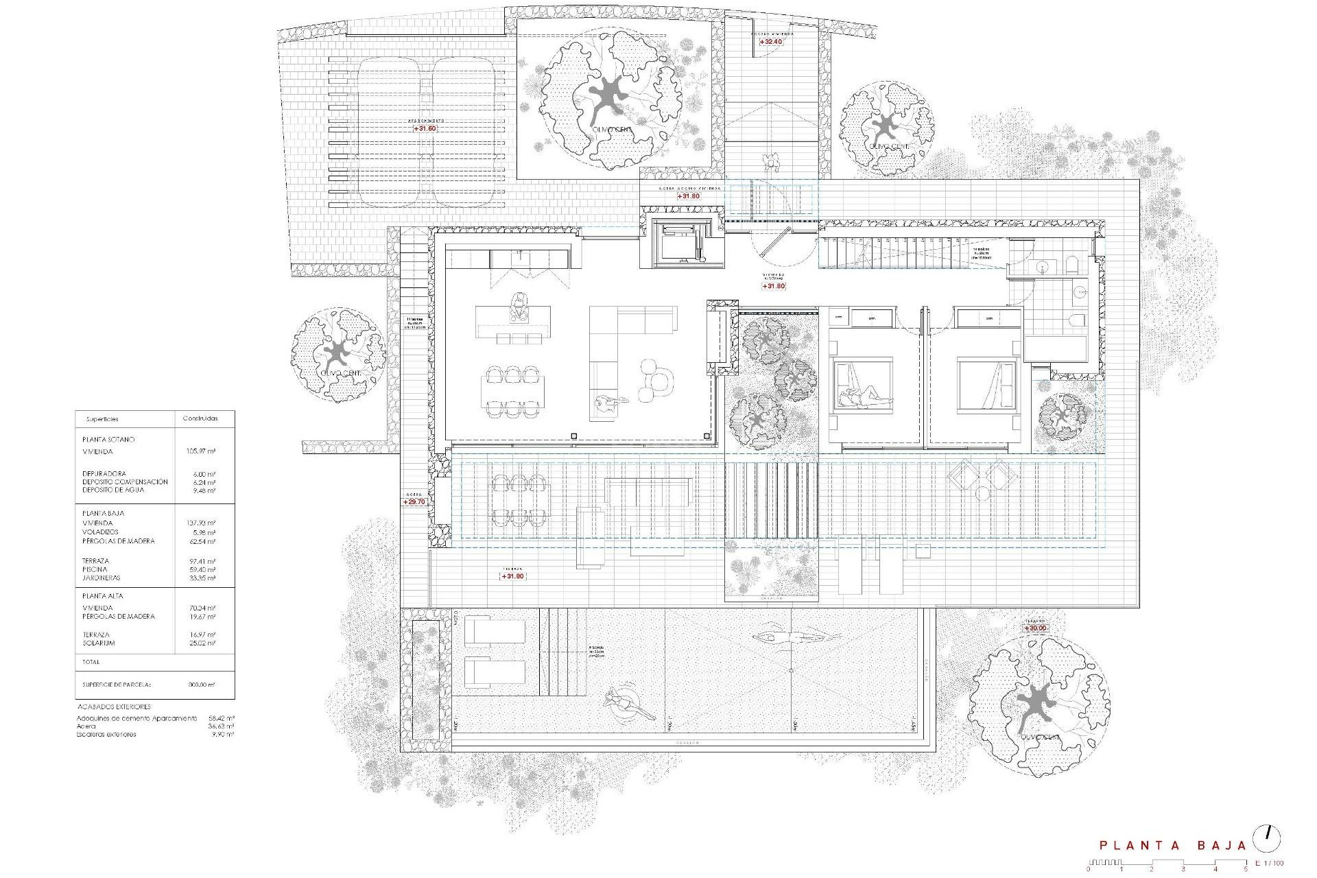
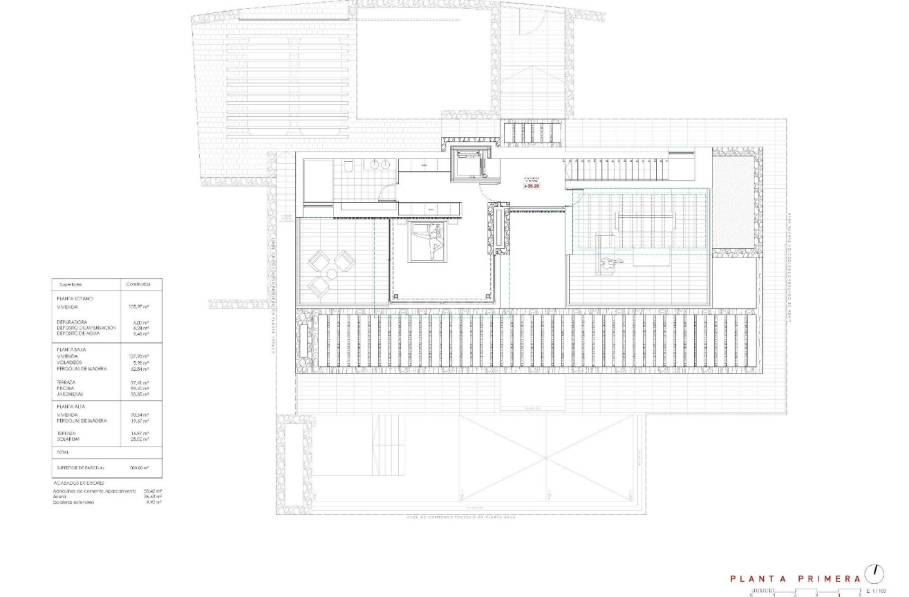
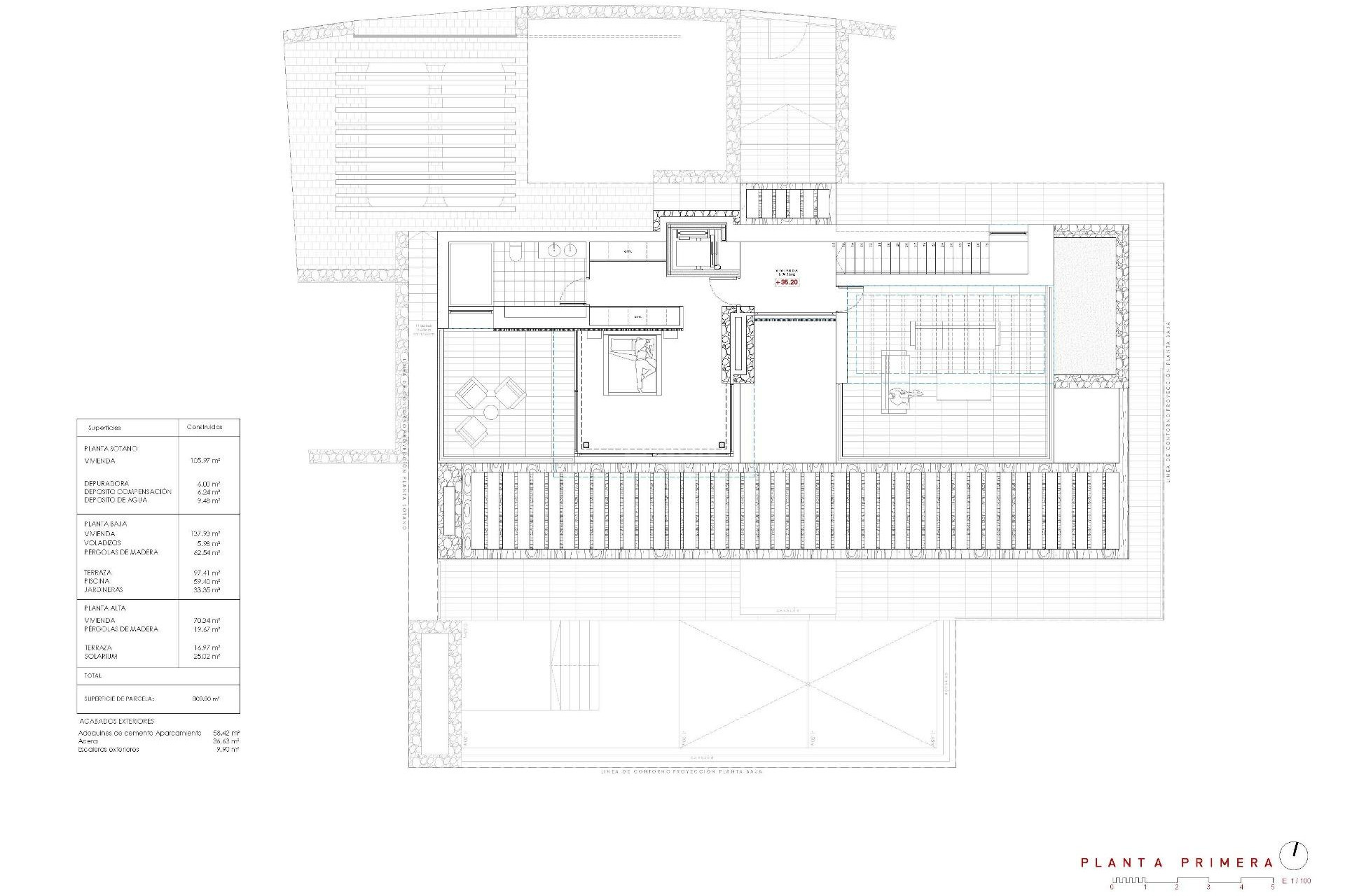
  • 342m2
  • 3
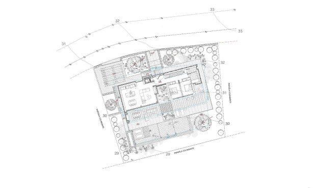
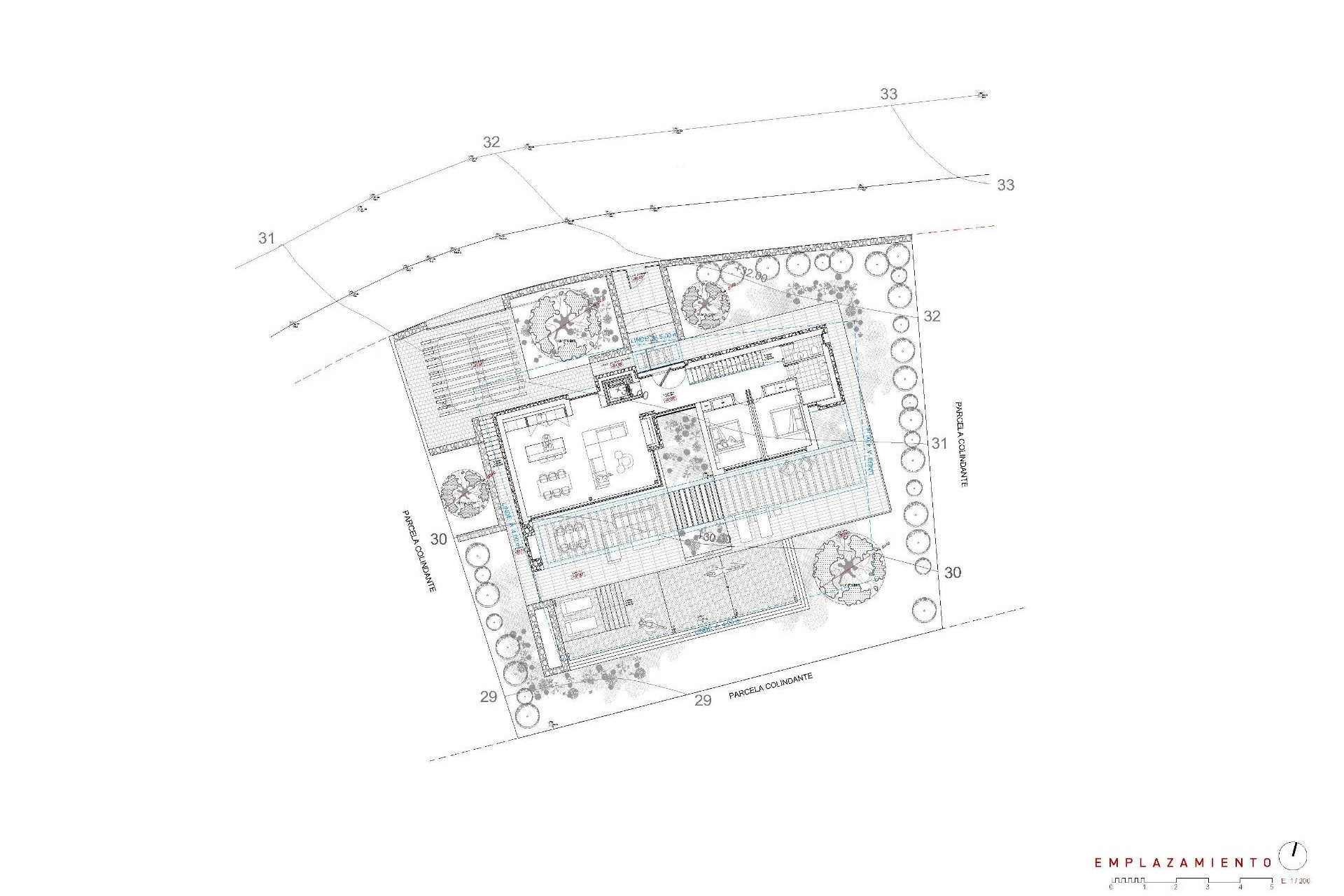
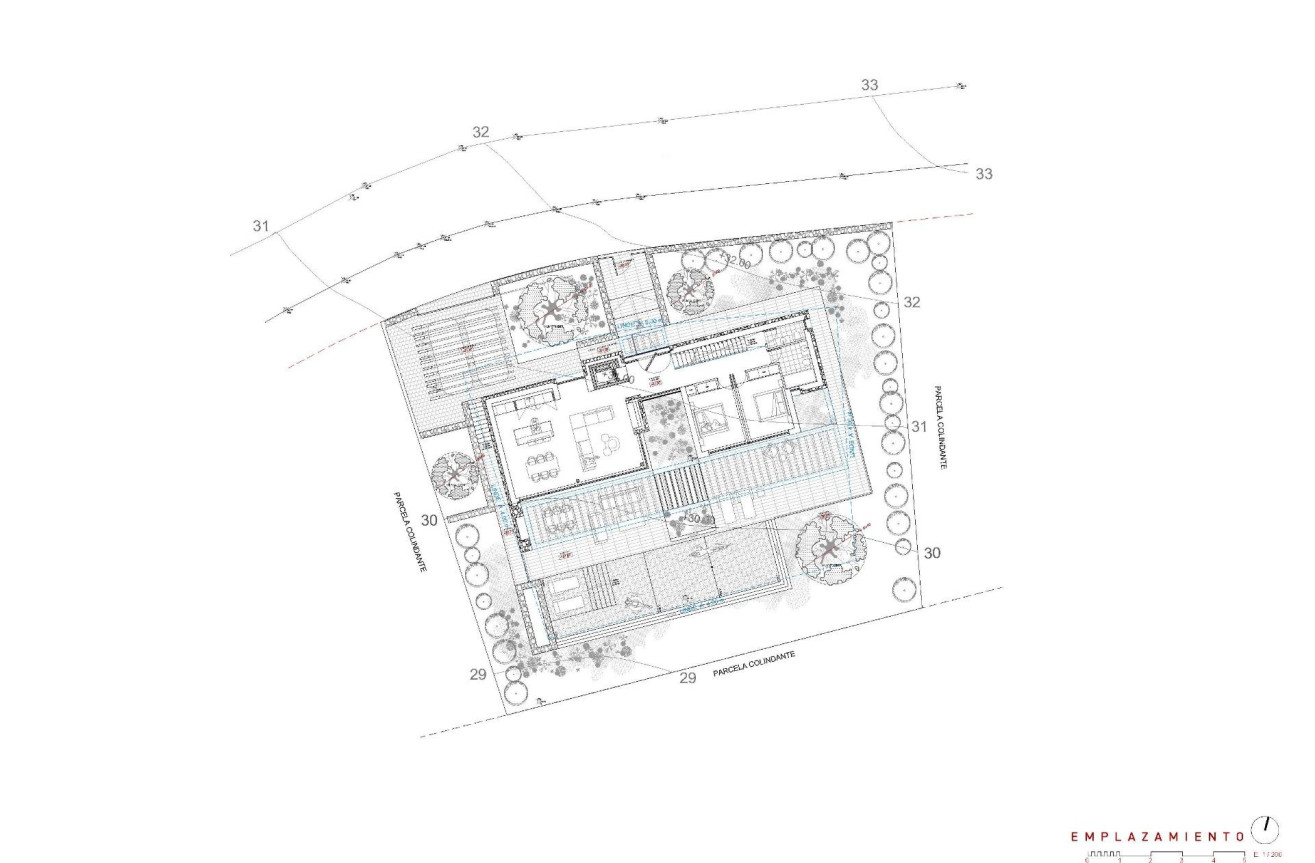
  • 800m2
  • 4

Características

Habitaciones Habitaciones:

4

Baños Baños:

3

Construidos Construidos:

342m2

Útiles Útiles:

290m2

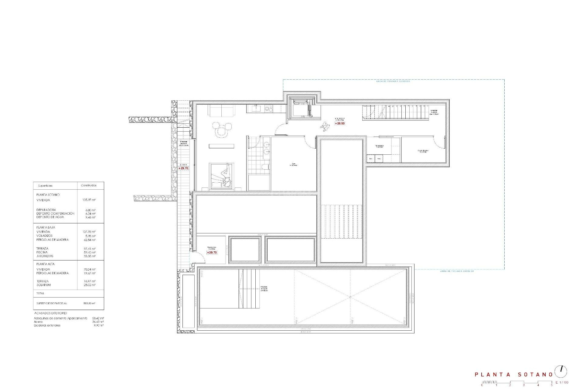
Parcela Parcela:

800m2

Piscina Piscina:

Distancia a la playa Distancia a la playa:

150 Mts.

Parking - Space
Useable Build Space: 290 Msq.
Storage / Trastero
Terrace: 157 Msq.
Toilet: 1
Private pool
Garden
Gated
Location: Coastal, Urbanisation
Near Trees
Near Schools
Near Commercial Center
Number of Parking Spaces: 2
Near Bus Route
Gym
Double Bedrooms: 4
Views: Sea
Solarium: Yes
Under-Build / Basement
Playa: 150 Metros

Descripción



Localización

Formulario de contacto

Responsable del tratamiento: Invest Tropical Mar Menor, SL, Finalidad del tratamiento: Gestión y control de los servicios ofrecidos a través de la página Web de Servicios inmobiliarios, Envío de información a traves de newsletter y otros, Legitimación: Por consentimiento, Destinatarios: No se cederan los datos, salvo para elaborar contabilidad, Derechos de las personas interesadas: Acceder, rectificar y suprimir los datos, solicitar la portabilidad de los mismos, oponerse altratamiento y solicitar la limitación de éste, Procedencia de los datos: El Propio interesado, Información Adicional: Puede consultarse la información adicional y detallada sobre protección de datos Aquí.
WhatsApp