4
4
238m2
180m2
420m2
Sí
1200 Mts.
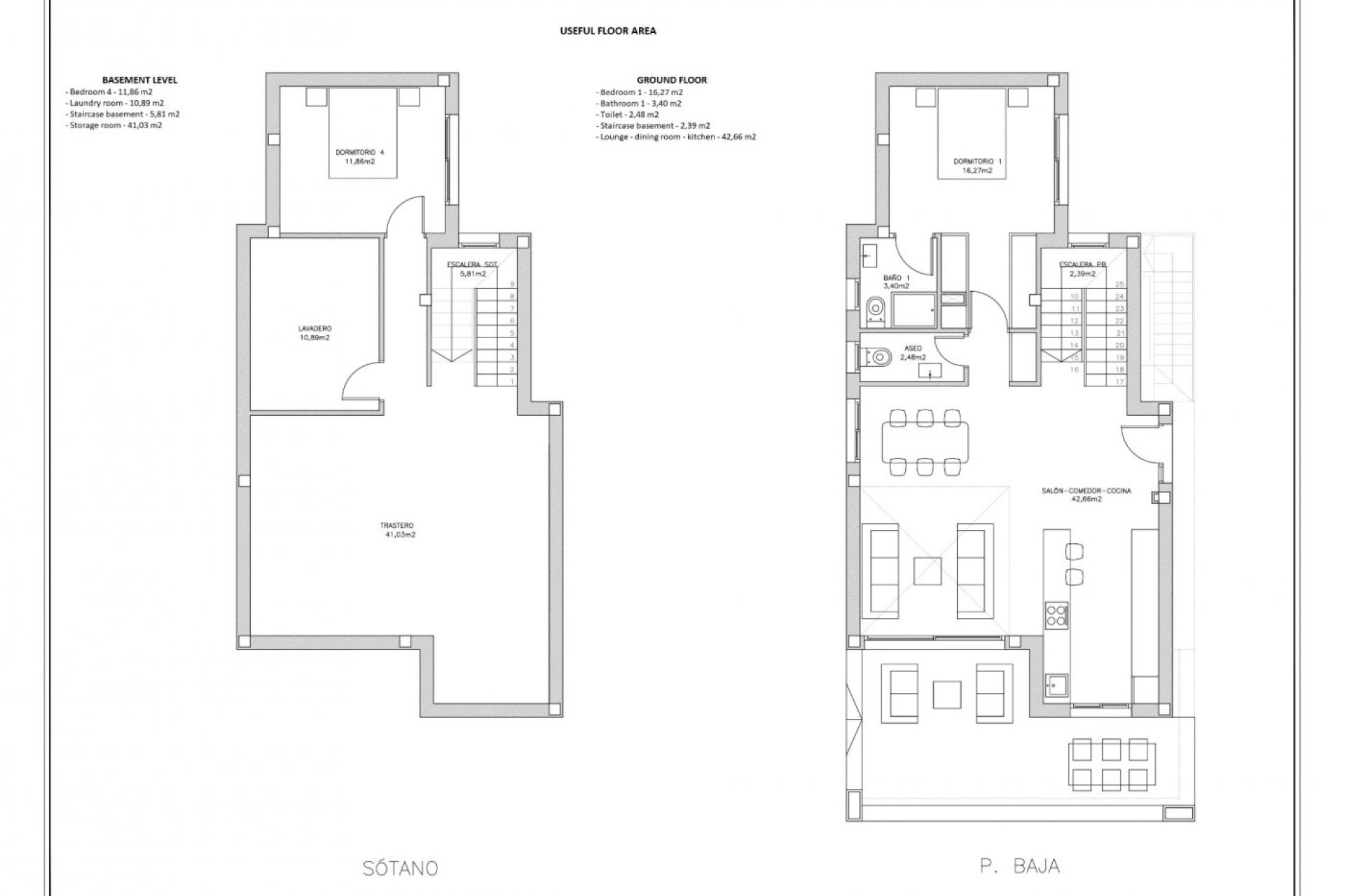
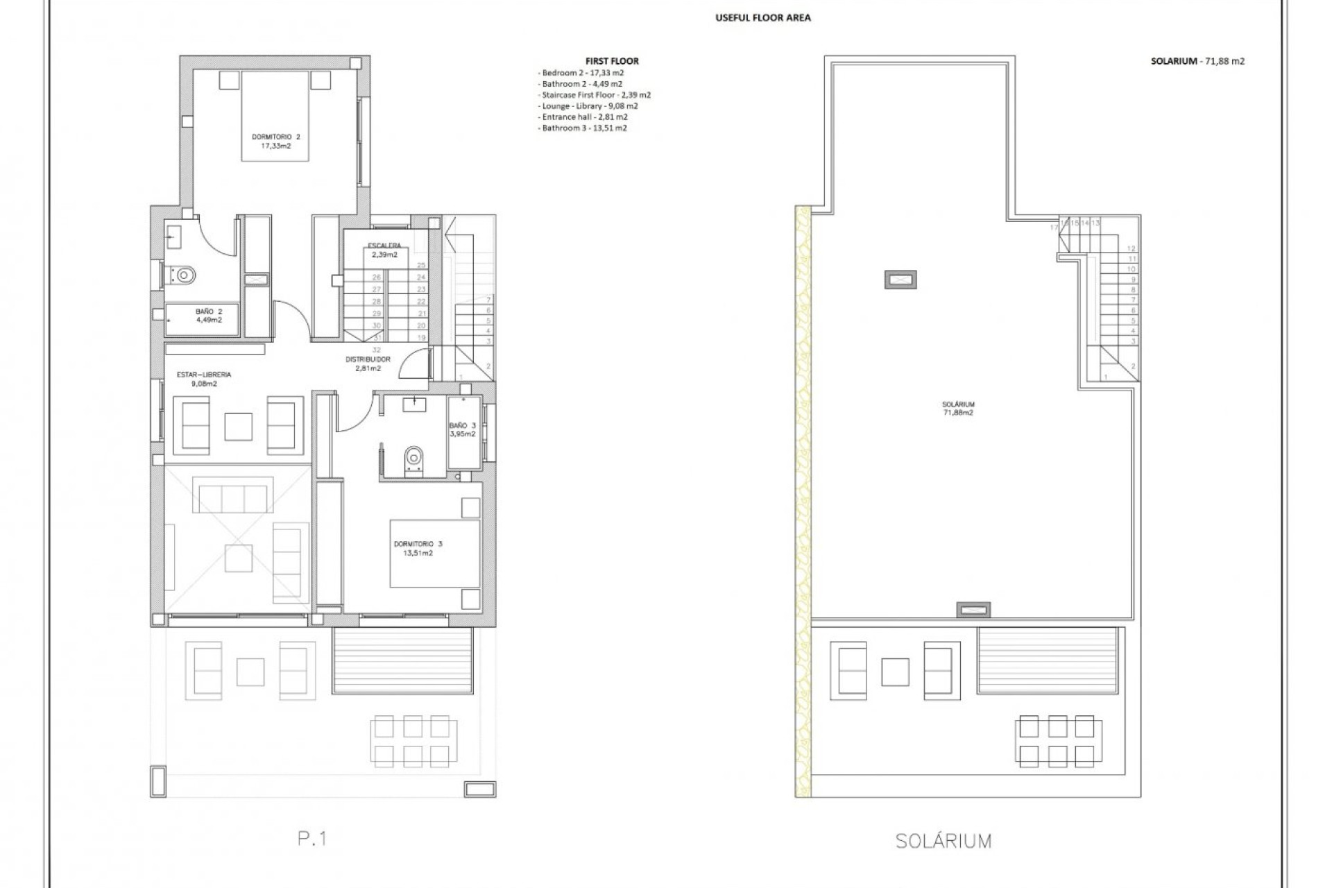
2 VILLAS DE OBRA NUEVA EN TORREVIEJA 2 nuevas villas hermosas en Torrevieja. Las villas tienen 4 dormitorios, 4 baños, cocina abierta con el salón, armarios empotrados, jardín privado con la piscina y plaza de aparcamiento fuera de la carretera, solarium privado y sótano. Villas situado a 15 minutos a pie de la famosa Playa de La Mata (5 minutos en coche). Torrevieja es una ciudad española en la provincia de Alicante, en la Costa Blanca. Es conocida por su clima y su costa típicamente mediterráneos. Cuenta con paseos marítimos con complejos turísticos a lo largo de sus playas de arena. El pequeño Museo del Mar y la Sal alberga exposiciones sobre la historia pesquera y salinera de la ciudad. En el interior, el Parque Natural de las Lagunas de La Mata-Torrevieja cuenta con senderos y dos lagunas saladas, una rosa y otra verde. El aeropuerto de Alicante se encuentra a 40 minutos y el de Murcia a una hora.
Esta información que se proporciona aquí está sujeta a errores y no forma parte de ningún contrato. La oferta se puede cambiar o retirar sin previo aviso. Los precios no incluyen los costes de compra
Teléfono. (+34) 642 331 654
Email. info@wgn-spain.com
Dirección. Virgen De La Romeria, 68. San Pedro Del Pinatar 30740 (Murcia)
WGN Spain © 2026 · Nota legal · Privacidad · Cookies · Mapa Web · Diseño & CRM: Mediaelx
En primer lugar, gracias por contactarnos.
Hemos recibido su solicitud con respecto a la referencia de propiedad:NB-85240. Uno de nuestros agentes se pondrá en contacto con usted lo antes posible.
En primer lugar, gracias por contactarnos.
Hemos recibido una solicitud de informe si baja el precio de la propiedad con la referencia: NB-85240
Mientras tanto, eche un vistazo a esta selección de propiedades similares que podrían ser de su interés: