REF. NB-77080
3
2
78m2
70m2
25m2
Sí
25000 Mts.
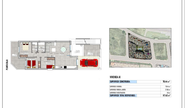
Nuevos bungalows y adosados en Cox, Alicante Exclusiva promoción residencial de 26 viviendas Descubra esta nueva comunidad residencial en Cox, una encantadora localidad de la Vega Baja alicantina. El proyecto ofrece 26 viviendas modernas, entre bungalows y adosados de 2 o 3 dormitorios, diseñadas para ofrecer comodidad, privacidad y lo mejor del estilo de vida mediterráneo. Cox es conocida por su entorno tranquilo, su gastronomía tradicional y su hermoso entorno natural, lo que la convierte en un lugar ideal para familias, turistas e inversores. Opciones inmobiliarias adaptadas a su estilo de vida Elija entre una variedad de tipos de viviendas adaptadas a diferentes necesidades: Bungalows en planta baja con jardín privado Bungalows en planta alta con terraza y solárium privado Adosados con jardín, varias terrazas y solárium privado Todos los bungalows en planta baja y los adosados incluyen aparcamiento privado dentro de la parcela, lo que garantiza comodidad y seguridad. Cada vivienda está diseñada con distribuciones funcionales, abundante luz natural y una estética tradicional con interiores modernos. Características de calidad y comodidades modernas Las viviendas están equipadas con características esenciales de alta calidad que mejoran la vida diaria. Entre ellas se incluyen iluminación LED interior y exterior, persianas eléctricas, armarios empotrados, puerta de entrada de seguridad y preinstalación para paneles solares. Las cocinas están completamente equipadas con electrodomésticos, mientras que los baños incluyen muebles, espejos y mamparas de ducha. Los soláriums también cuentan con cocinas de verano al aire libre, ideales para entretenerse y disfrutar del clima mediterráneo. Servicios comunitarios para todos los residentes El complejo residencial ofrece atractivas zonas comunes, como una piscina rodeada de zonas para tomar el sol y zonas ajardinadas, perfectas para relajarse y socializar. Ubicación privilegiada con excelentes conexiones Situada en una zona bien comunicada, esta promoción ofrece un rápido acceso a las principales ciudades y servicios esenciales: Aeropuerto Internacional de Alicante: 40 km Orihuela: 8 km Elche: 20 km Murcia: 25 km Ciudad de Alicante: 48 km La Finca Golf: 12 km Vistabella Golf: 14 km Cox ofrece un fácil acceso a las autopistas AP 7 y A 7, lo que permite desplazarse con facilidad por toda la Costa Blanca. Entre las atracciones cercanas se incluyen zonas comerciales, instalaciones deportivas, centros de salud y hermosas playas de arena como Guardamar del Segura y Torrevieja. Su nuevo hogar en el corazón de la Costa Blanca Tanto si busca una residencia permanente, una casa de vacaciones o una propiedad de inversión, estas viviendas en Cox ofrecen un valor y un estilo de vida excepcionales. Póngase en contacto con nosotros hoy mismo para concertar una visita y asegurarse su vivienda ideal en esta excepcional promoción.