REF. SP-44183
3
2
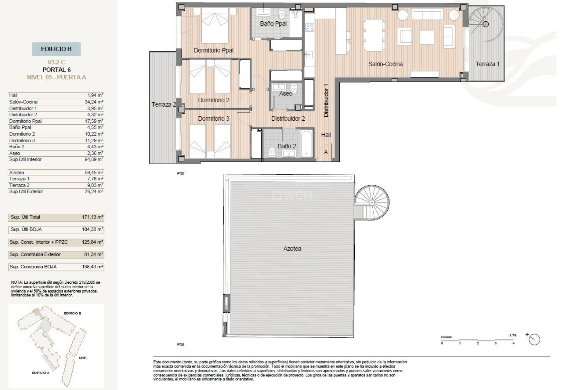
138m2
104m2
Sí
1500 Mts.
Modernas viviendas de nueva construcción en una zona residencial privilegiada de Estepona Vida contemporánea en el corazón de Estepona Bienvenido a un exclusivo proyecto residencial de 87 viviendas de nueva construcción con 2, 3 y 4 dormitorios, que ofrece una amplia selección de distribuciones, incluyendo amplios apartamentos, áticos con soláriums privados y elegantes adosados. Situada en una tranquila y próspera zona residencial de Estepona, esta promoción ofrece el equilibrio ideal entre comodidad, estilo de vida moderno y excelentes conexiones. A solo 1600 m del mar Mediterráneo, esta comunidad residencial se encuentra en una de las zonas de expansión urbana más prometedoras de la ciudad. Con un entorno tranquilo, pleno acceso a los servicios esenciales y cómodas conexiones de transporte, es un lugar perfecto tanto para vivir todo el año como para pasar las vacaciones. Un barrio animado con todo a un paso El complejo goza de una ubicación privilegiada a pocos pasos del Estadio de Atletismo de Estepona y del Teatro Auditorio Felipe VI. La zona está rodeada de un centro comercial en expansión con supermercados, tiendas, comercios, colegios, líneas de transporte público y rápido acceso a las principales conexiones por carretera. Los residentes también se beneficiarán de la proximidad al puerto deportivo de Estepona, donde una amplia selección de restaurantes, cafeterías y bares ofrece una excepcional cocina mediterránea e internacional. Con la playa y el animado paseo marítimo a poca distancia, cada día brinda la oportunidad de disfrutar del estilo de vida al aire libre que hace tan especial a Estepona. Arquitectura moderna y servicios de primera calidad Inspirada en el suave paisaje mediterráneo, la arquitectura presenta líneas fluidas y orientación sur para aprovechar al máximo la luz solar y la brisa marina. La urbanización está totalmente cerrada para garantizar la privacidad, la comodidad y la seguridad. Diseñadas para el bienestar, las zonas comunes incluyen una piscina de agua salada, gimnasio, jardines, plazas de aparcamiento y trasteros privados. Los interiores destacan por su diseño moderno, sus generosas distribuciones y su inteligente distribución que potencia la luz natural. Las amplias terrazas crean el escenario perfecto para cenar al aire libre, relajarse o descansar mientras se disfruta de las vistas panorámicas. Ubicación estratégica en la Costa del Sol Distancias a los principales puntos de interés Playa 1,6 km Puerto deportivo de Estepona 2 km Puerto Banús 25 km Marbella 30 km Aeropuerto Internacional de Málaga 80 km Campos de golf de renombre 5 a 15 km Viva el auténtico estilo de vida mediterráneo Estepona es uno de los destinos más deseados de la Costa del Sol, con más de 20 km de costa, un moderno puerto deportivo, atracciones culturales y un ambiente animado durante todo el año. Tanto si busca una residencia permanente, una casa de vacaciones o una oportunidad de inversión segura, esta promoción ofrece un valor y un estilo de vida excepcionales. Póngase en contacto con nosotros hoy mismo para concertar una visita y asegurarse su nueva vivienda en Estepona. 631