REF. SP-67098
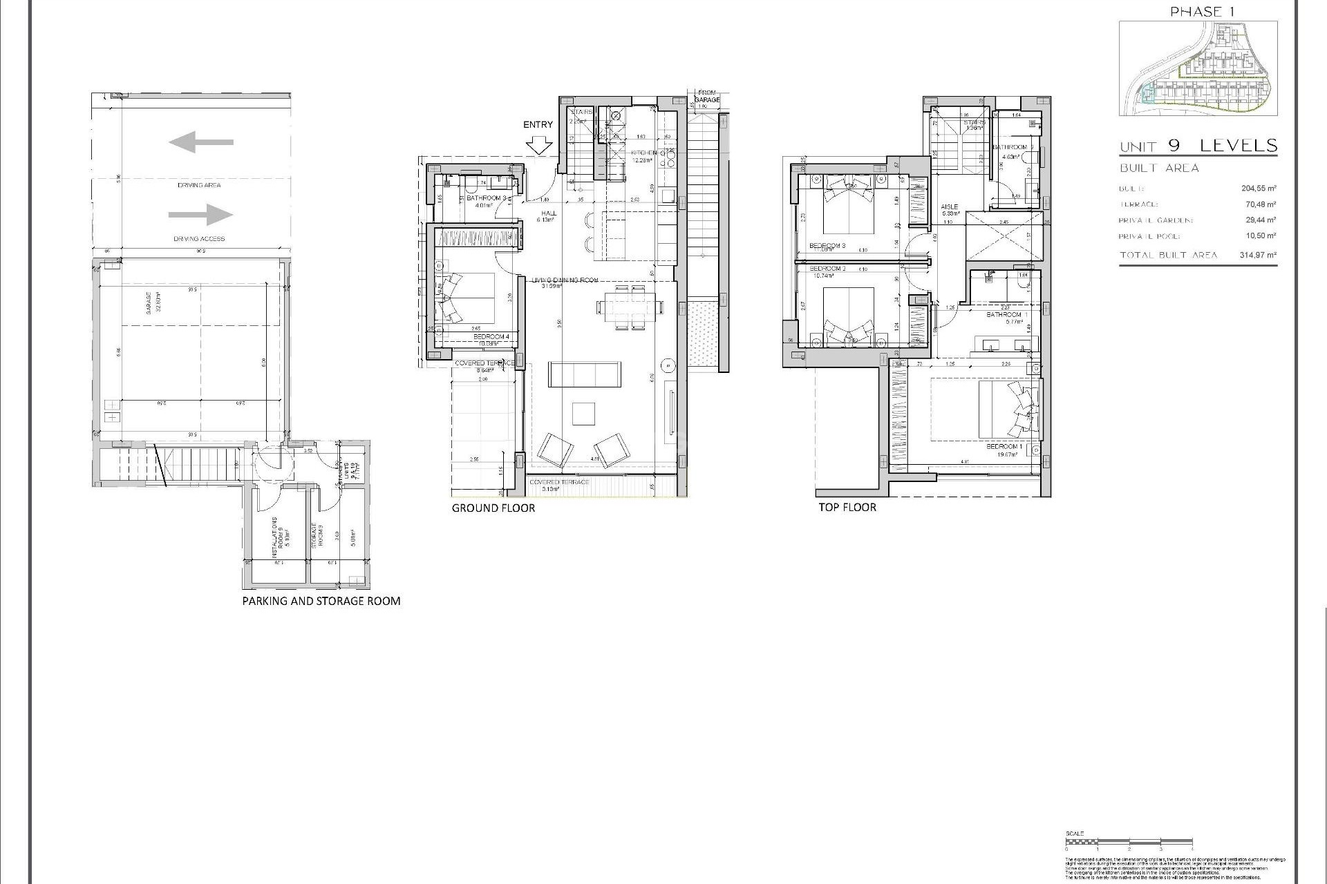
3
2
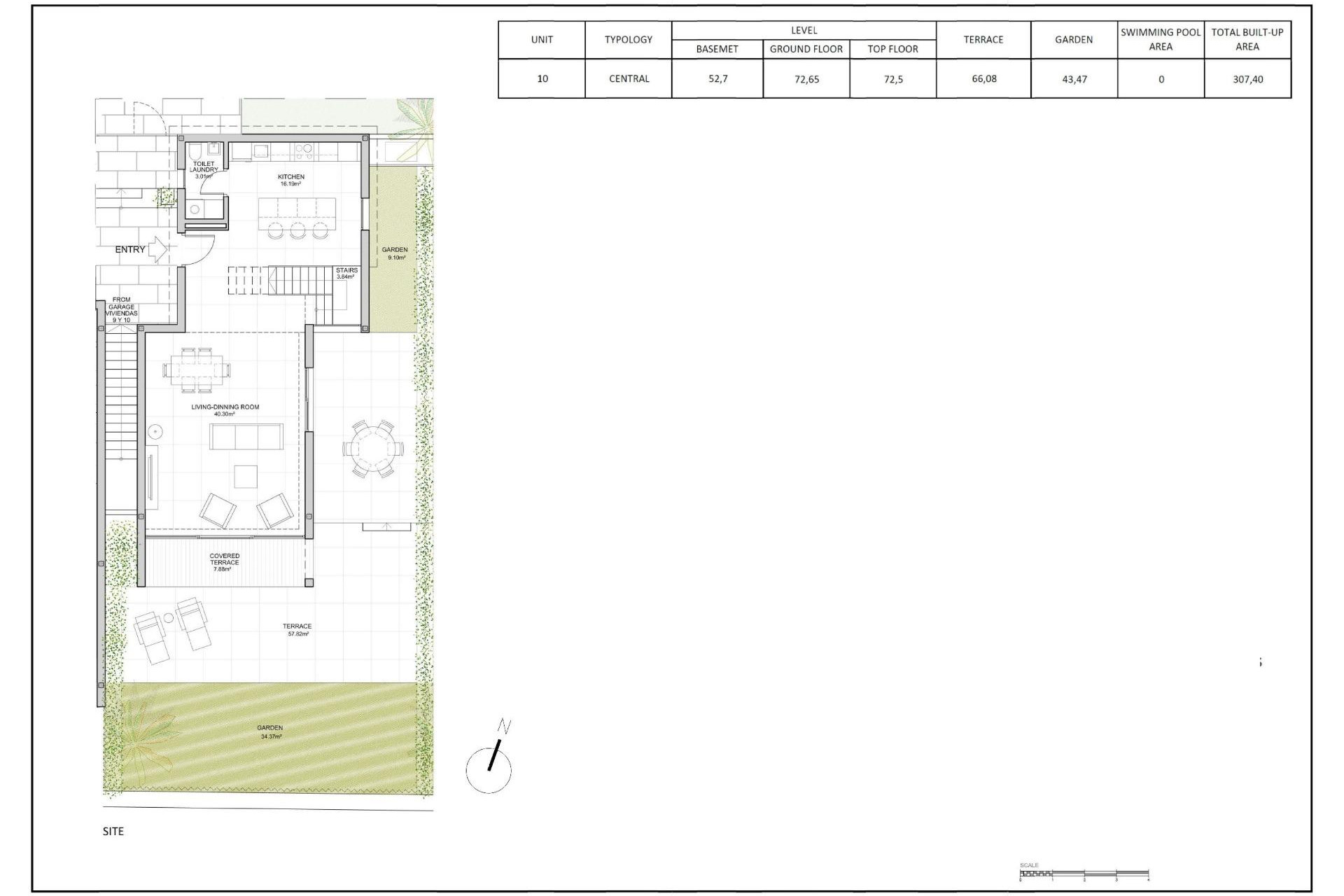
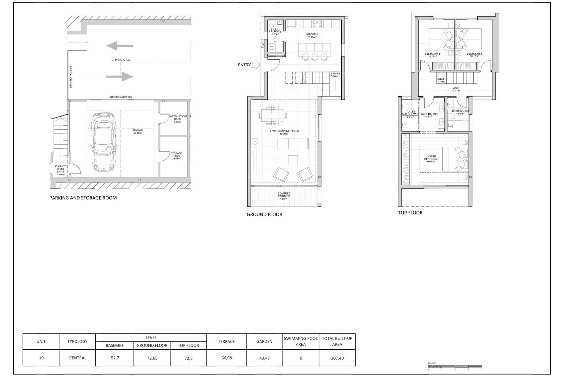
204m2
140m2
29m2
Sí
1000 Mts.
VILLAS DE OBRA NUEVA CON VISTAS AL MAR EN LA CALA DE MIJAS Partiendo de la silueta tradicional de una casa, el pentágono primordial, el equipo de diseño ha evolucionado estas líneas geométricas para crear una simbiosis con la vegetación existente, estableciendo un diálogo continuo con la naturaleza, su energía y su movimiento. Así es como el eje central que configura el tradicional tejado inclinado de la casa rompe y desplaza una de sus aristas, bailando al ritmo de la brisa del viento. Esto genera una distinción entre cada villa, creando un skyline único en la Costa del Sol. Bajo la filosofía de "Menos es más", el diseño transmite la búsqueda de líneas puras, elegantes y suaves. Materiales como la madera natural se han utilizado en zonas seleccionadas del revestimiento de la villa, permitiendo un diálogo constante con el paisaje natural que la rodea, y otorgando indiscutiblemente al proyecto la singularidad, elegancia y pureza que define a las villas de Obra Nueva. La escalera, diseñada y construida como una pieza escultórica, eleva la zona de estar hasta convertirla en una exclusiva galería de arte. Las villas de 3 y 4 dormitorios se han diseñado para optimizar los espacios y las relaciones entre las distintas zonas. A pocos minutos en coche tiene el encantador pueblo de Mijas y su cuidadosamente conservado casco antiguo con pintorescas calles estrechas, puede ir de compras a Marbella o Fuengirola, o disfrutar de la vida nocturna en La Cala de Mijas o Puerto Banús. Villas situada en una zona tranquila a pocos minutos en coche de las fabulosas playas de la Costa del Sol, Chaparral Golf y a sólo 20 minutos de Marbella y 30 minutos del aeropuerto de Málaga. Chaparral Golf Club es un campo de 18 hoyos "Parkland Forest", rodeado de bosque mediterráneo. La zona protegida realza la belleza típica de la región, donde las montañas se encuentran con el mar. Chaparral Golf Club está situado en un lugar privilegiado, en el corazón de Andalucía, en el Valle del Golf de Mijas. 631