REF. SP-98230
3
3
131m2
110m2
91m2
Sí
800 Mts.
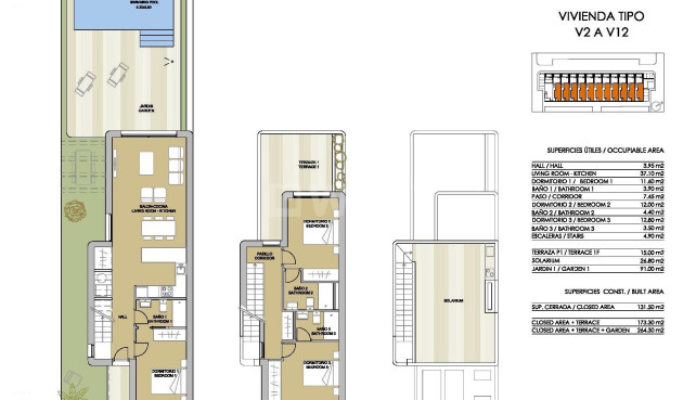
VILLAS DE OBRA NUEVA EN MIL PALMERAS Residencial de obra nueva de villas en Mil Palmeras diseñadas para disfrutar del clima mediterráneo. Cada villa cuenta con magníficas terrazas, solarium y un precioso jardín con piscina de diseño. Con una orientación inmejorable, cerca de la playa y dentro de una urbanización consolidada con instalaciones deportivas y zonas de ocio. Dispone de amplias estancias distribuidas en 2 plantas. En la planta baja, comunicada con el jardín, encontramos un luminoso salón-comedor más cocina así como un dormitorio doble y un baño. En la primera planta hay otros 2 dormitorios dobles cada uno con su baño. Un fantástico solarium completa el conjunto en la planta cubierta. Mil Palmeras está situado en una zona privilegiada de Torre de la Horadada. Su tranquilidad así como su cercanía a la playa y a todo tipo de servicios lo convierten en un enclave inmejorable. Villasl situado cerca de la playa de arena con un paseo marítimo entre Campoamor y Torre de la Horadada , todas las comodidades que necesita, tales como escuelas, restaurantes, instalaciones deportivas, etc que están abiertos todo el año. El pueblo tiene una pequeña plaza y un gran 'callejón de restaurantes' que está lleno de restaurantes internacionales y el Parque Natural de Lo Monte, que es una reserva especial para las aves. El parque natural de Río Seco también está aquí para los amantes de la naturaleza y el senderismo. Los aeropuertos de Murcia y Alicante se encuentran a 45 minutos. 631