REF. SP-82785
4
4
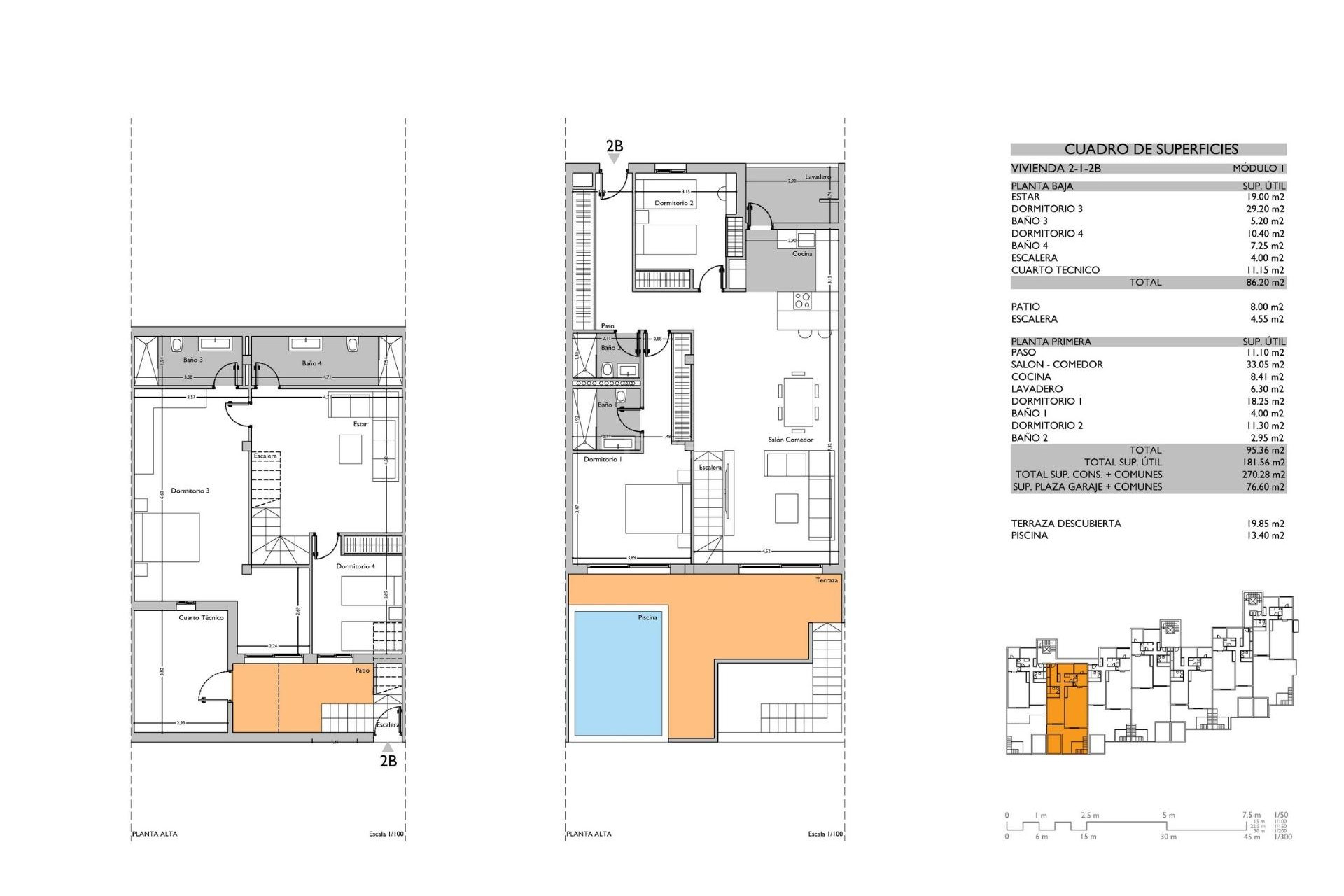
270m2
181m2
Yes
1500 Mts.
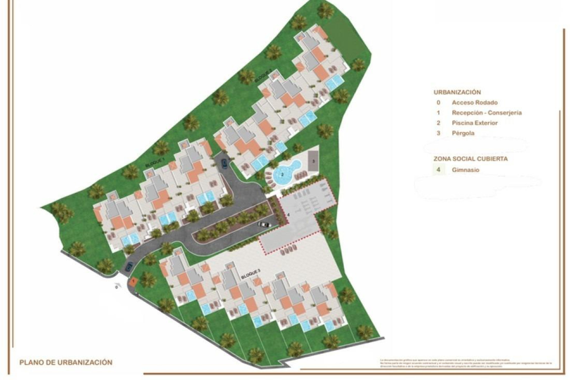
Luxury Duplex Homes in El Paraiso Estepona-Marbella Area Exclusive New Build Residences in a Prime Costa del Sol Location Discover this exceptional new development of 40 luxury homes located in El Paraiso, one of the most sought after residential areas between Marbella and Estepona. Surrounded by golf courses and just 1500 meters from the beach, this privileged location offers the perfect combination of tranquility, exclusivity and easy access to vibrant coastal life. El Paraiso is known for its peaceful atmosphere, green surroundings and proximity to top destinations such as Puerto Banus, Marbella and Estepona. Residents enjoy a high quality lifestyle with nearby restaurants, shops, sports facilities and international services. Spacious Duplex Homes with Private Outdoor Spaces The development offers a selection of 3, 4 and 5 bedroom homes designed for maximum comfort and modern living. Buyers can choose between ground floor duplex properties with private gardens and swimming pools or penthouse duplexes featuring large terraces, rooftop solariums and private jacuzzis with stunning sea views. Modern Interiors with High End Finishes Each home features a bright open plan living and dining area connected to a fully fitted kitchen equipped with oven and microwave. The design focuses on creating spacious and functional interiors ideal for both daily living and entertaining. Ground floor homes include a dedicated barbecue area, perfect for outdoor dining and enjoying the Mediterranean climate. Advanced Technology and Premium Features These properties are built with top quality materials and equipped with modern technology to ensure comfort and efficiency. Features include ducted air conditioning with airzone system, electric shutters and reinforced entrance doors with smart locking systems. A full home automation system allows control of lighting, climate and security, offering convenience and peace of mind. Each property includes at least one parking space and a storage room. Exceptional Communal Areas and Lifestyle Amenities Residents can enjoy beautifully designed communal areas that include a heated swimming pool, fully equipped gym and landscaped gardens. The development also features a children play area, elevators with basement access and secure entry systems with video surveillance. Excellent Location Near Golf, Beach and Key Destinations The development is ideally located close to several prestigious golf courses such as El Paraiso Golf Club and El Campanario Golf, both within 1 km. The beach is just 1.5 km away, Puerto Banus is approximately 8 km and Marbella center around 15 km. Malaga International Airport is approximately 65 km away, providing excellent connectivity for international travel. Ideal Investment and Luxury Lifestyle Opportunity These exclusive homes offer a perfect combination of location, design and lifestyle, making them ideal as a permanent residence, holiday home or investment on the Costa del Sol. Contact us today for more information or to arrange a viewing and secure your new luxury home in El Paraiso. 631