Villa · New Build Fuente Álamo. Murcia

Villa · New Build Fuente Álamo. Murcia

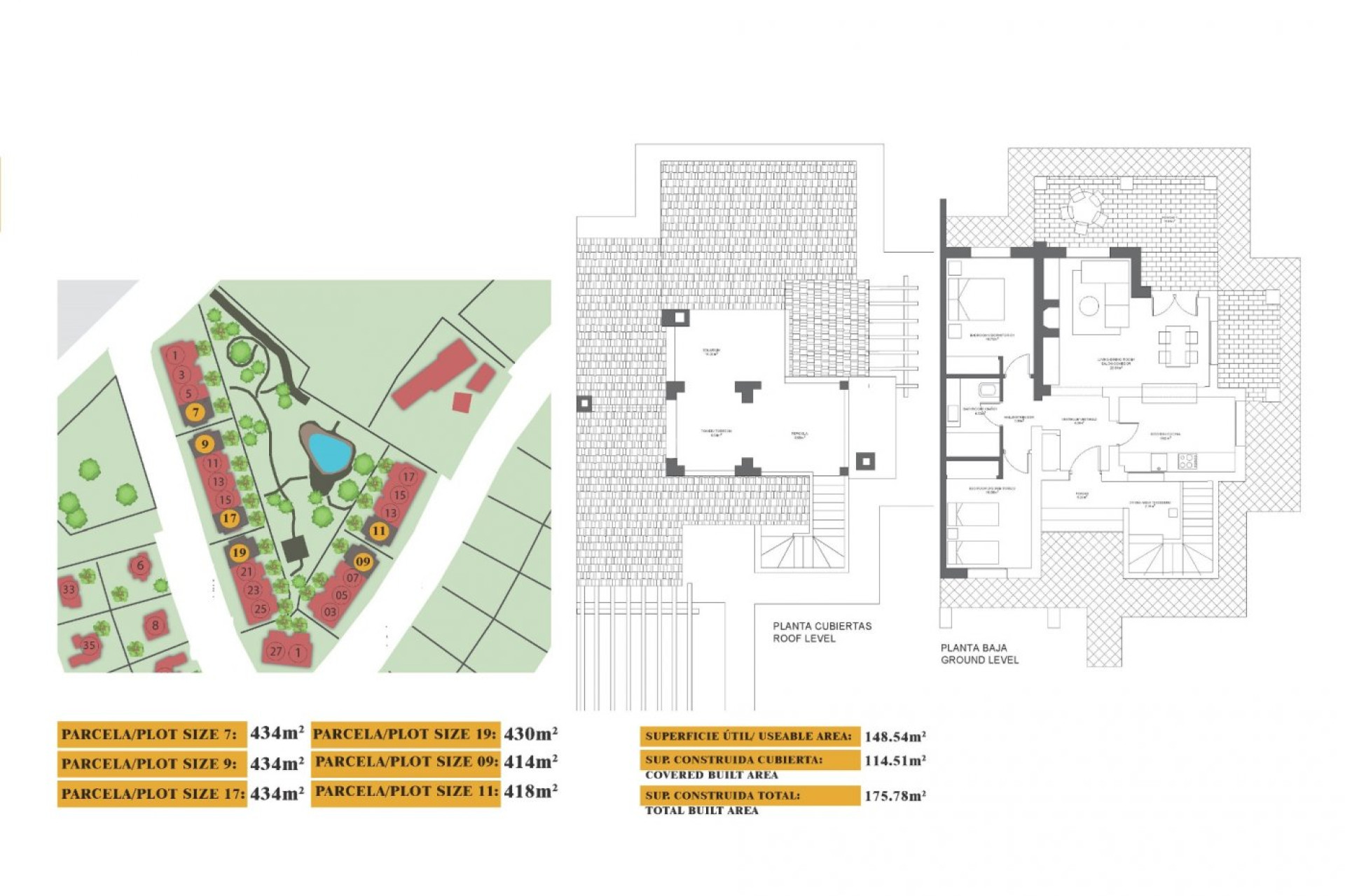
  • 175m2
  • 1
  • 430m2
  • 2

Features

Bedrooms Bedrooms:

2

Bathrooms Bathrooms:

1

Built Built:

175m2

Usable Usable:

148m2

Plot Plot:

430m2

Distance to beach Distance to beach:

7500 Mts.

Useable Build Space: 148 Msq.
Beach: 7500 Meters
Storage / Trastero
Garden
Gated
Number of Parking Spaces: 1
Air Conditioning: Pre-Installed
Double Bedrooms: 2
Key Ready
Terrace: 45 Msq.
Location: Rural, Urbanisation
Parking - Space

Description



Location

Contact Form

Responsable del tratamiento: Invest Tropical Mar Menor, SL, Finalidad del tratamiento: Gestión y control de los servicios ofrecidos a través de la página Web de Servicios inmobiliarios, Envío de información a traves de newsletter y otros, Legitimación: Por consentimiento, Destinatarios: No se cederan los datos, salvo para elaborar contabilidad, Derechos de las personas interesadas: Acceder, rectificar y suprimir los datos, solicitar la portabilidad de los mismos, oponerse altratamiento y solicitar la limitación de éste, Procedencia de los datos: El Propio interesado, Información Adicional: Puede consultarse la información adicional y detallada sobre protección de datos Aquí.
WhatsApp