REF. SP-43461
5
4
370m2
280m2
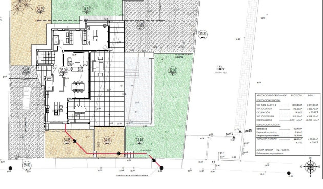
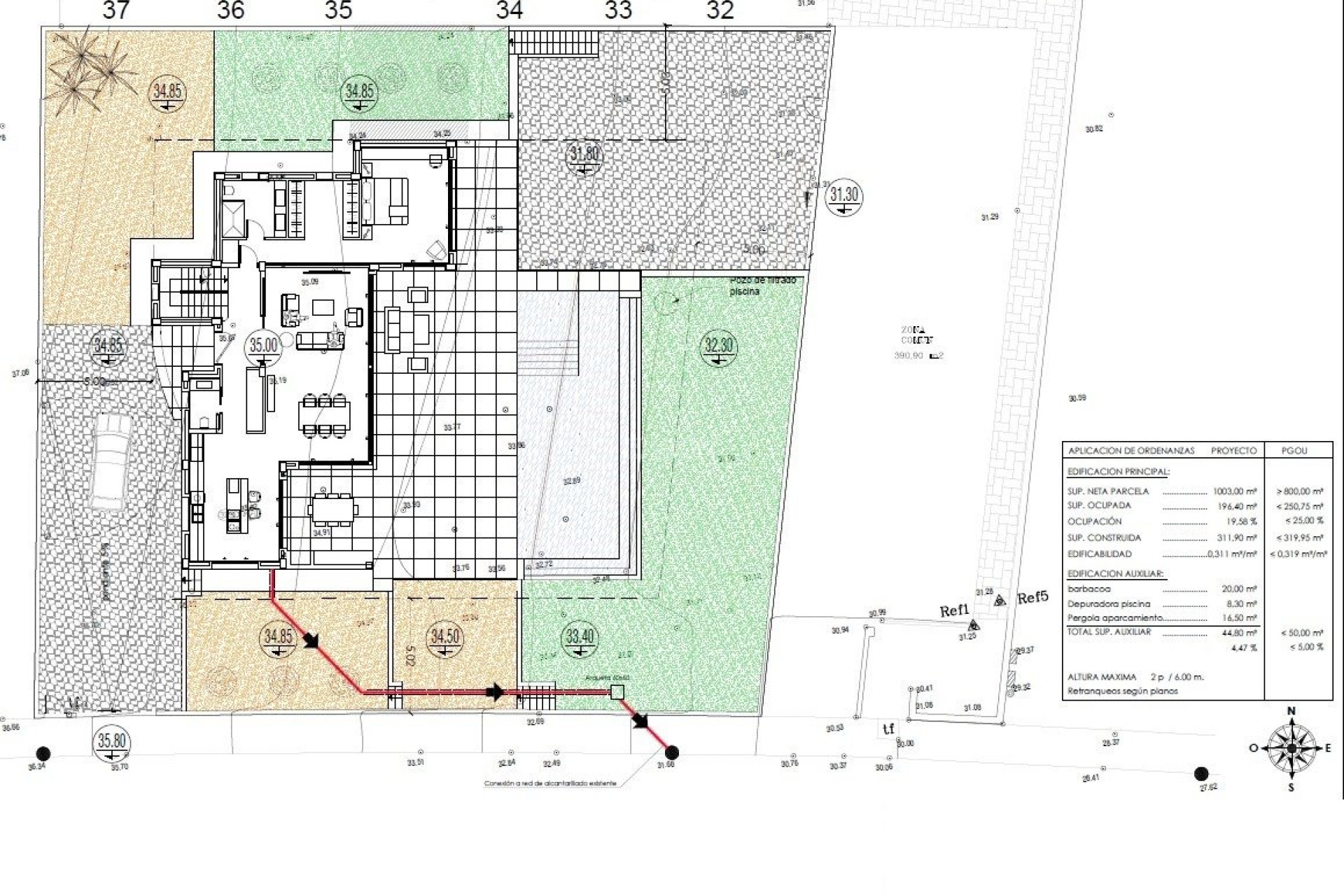
1.003m2
Yes
1200 Mts.
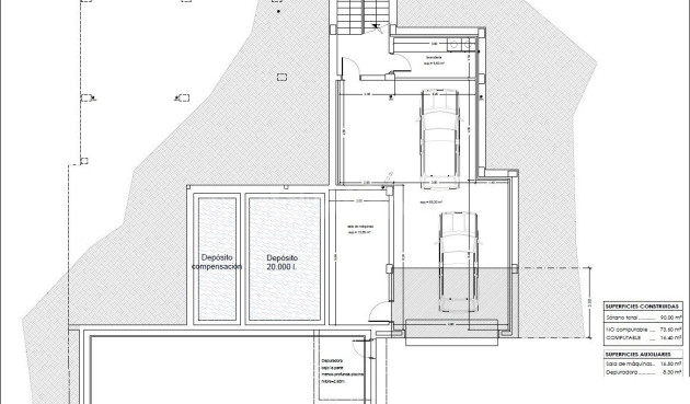
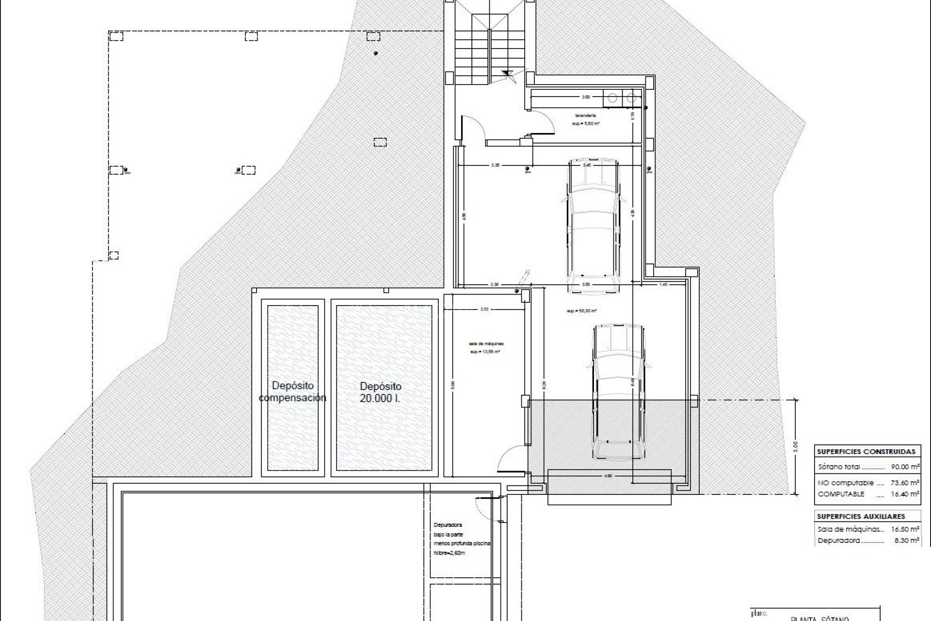
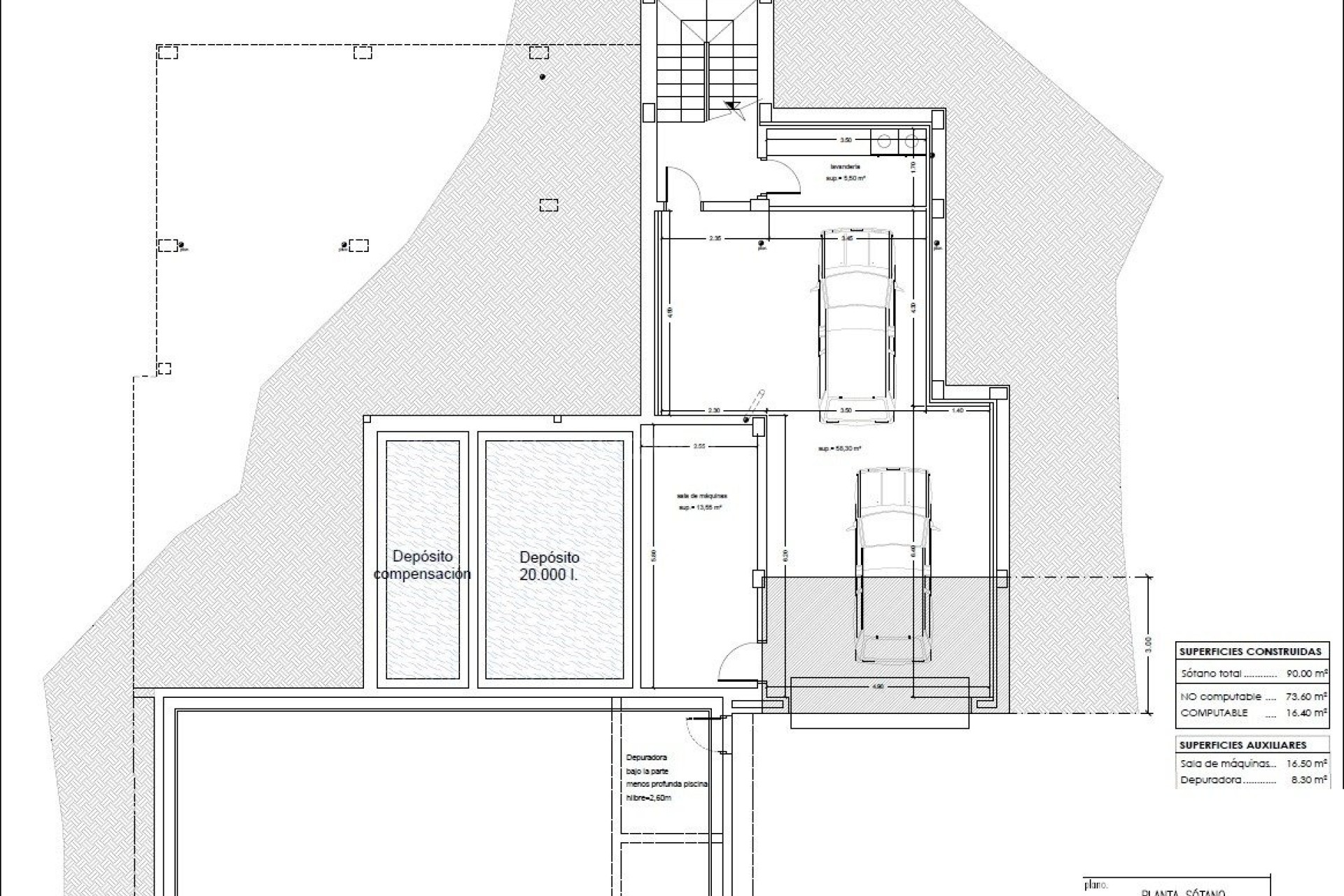
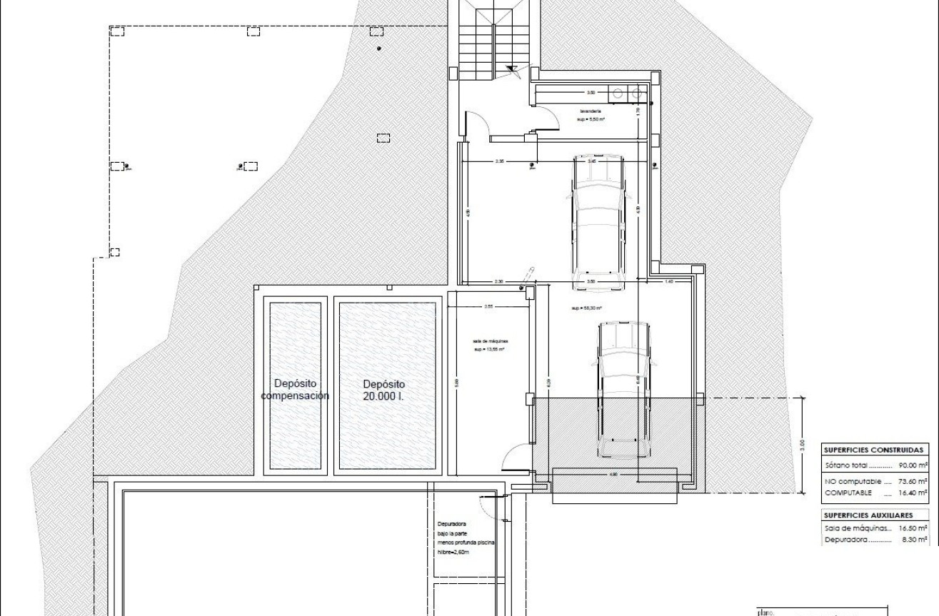
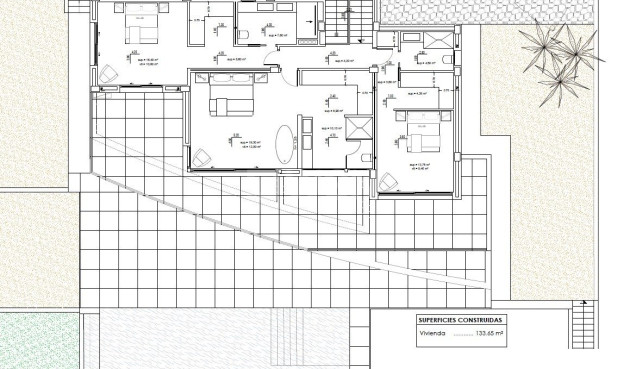
LUXURY NEW BUILD VILLA IN MORAIRA New Build Luxury villa with the best qualities, and within walking distance of the beautiful beaches and the center of Moraira. This luxury villa is distributed over 3 floors: on the ground floor (147.30m2) there is a large bright living room next to the open kitchen with a cooking island, a guest toilet and a bedroom with an en-suite bathroom. On the outside of this floor we find the swimming pool and the barbecue area. Then we go up to the upper floor (133.65m2) where we find 3 spacious rooms with their bathroom en suite. Finally the basement floor, where it leads to a double garage and laundry. EXTRAS: Technal carpentry with safety glass, full kitchen with Siemens appliances, full Roca brand bathrooms and taps, LED lighting, aerothermal system for hot water and underfloor heating, ducted air conditioning (hot and cold) throughout the house, solar panels, fitted wardrobes, electric shutters, interior alarm, pre-installation of exterior alarm and security cameras. Rectangular pool with overflow system of 12x4.5 meters, barbecue area of 22m2, laundry room, finished garden. Automatic access doors. Energy classification A. South orientation. Moraira is a small town with good restaurants, bars and plenty of supermarkets around. There is a very pleasant beach right next to town that is great for families. The seafront offers tremendous views of Penon Ifach across the bay in Calpe. The coast road getting there is well worth doing with some spectacular views. Moraira situated about 1 hour 15 minutes North up the A7 from Alicante airport its fairly easy to get to. It's about the same distance or a little less South from Valencia airport. 631