REF. SP-89403
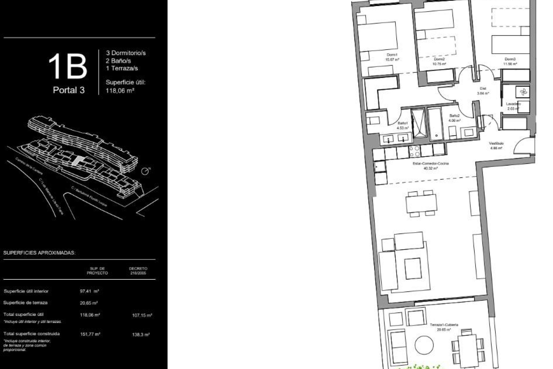
3
2
138m2
93m2
Yes
1600 Mts.
Luxury Residential Complex in Torremolinos: A Mediterranean Masterpiece Unmatched Location in Torremolinos This exceptional residential complex is located in one of the most desirable areas of Torremolinos, offering an ideal balance of tranquility and convenience. Situated just minutes from the Mediterranean coastline, this community enjoys easy access to major transportation routes and is within a short drive of top amenities. The Sunny View School is located right across the street, while the Pinar del Moro Nature Reserve offers a peaceful, green environment. Residents also benefit from proximity to public schools, supermarkets, and sports facilities at the Municipal Sports Center. - Torremolinos Beach: 5 minutes by car - Málaga Airport: 10 minutes by car - Málaga City Center: 15 minutes by car - Train Station: 15 minutes walking distance Contemporary Design with a Mediterranean Touch This cutting-edge residential complex is designed to make the most of the region’s enviable climate and natural surroundings. Large windows throughout the homes invite abundant sunlight and fresh Mediterranean breezes, while expansive terraces offer breathtaking panoramic views of the Costa del Sol. Every element of the design focuses on maximizing comfort and lifestyle, blending contemporary architectural lines with the natural beauty of the Mediterranean. Premium Amenities for Comfort and Relaxation The residential complex offers a range of premium amenities to enhance the lifestyle of its residents. Carefully landscaped gardens surround the property, providing two large outdoor swimming pools, ideal for relaxing or entertaining guests. The fully equipped gym ensures that fitness remains a part of your everyday routine, while the strategically designed layout of the complex ensures both privacy and easy access to all communal areas. Spacious and Versatile Residences The homes in this exclusive development offer a choice of 1, 2, 3, or 4 bedrooms, each designed with a focus on functionality, privacy, and style. The open-plan living areas integrate the kitchen and lounge spaces, while the large terraces connect the indoor and outdoor living spaces seamlessly. Whether you choose a penthouse with a private terrace or a ground-floor home with garden access, each residence features high-quality finishes, making every moment spent at home special. Sustainable Living and Energy Efficiency Sustainability is at the heart of this development. Each home is designed with energy efficiency in mind, utilizing natural light to minimize the need for artificial lighting and enhancing overall comfort. The use of an aerothermal system ensures that both domestic hot water and air conditioning are provided in an environmentally friendly manner, helping to reduce energy consumption and promote a greener lifestyle. Unbeatable Views and Outdoor Living For those who want to experience the beauty of the Mediterranean sky, the penthouses are an absolute highlight. With panoramic terraces that offer stunning views of the Torremolinos coastline, these homes allow you to enjoy the sun from dawn until dusk. Whether it's watching the sunrise over the horizon or gazing at the reflection of the moon on the sea, these homes offer a rare and unforgettable living experience. This residential complex in Torremolinos represents the pinnacle of modern design, combining aesthetics, functionality, sustainability, and luxury. Every home is meticulously crafted to meet the highest standards of comfort and style, ensuring that it is not just a place to live, but a space to thrive. With its perfect location, exceptional design, and commitment to sustainability, this is the ideal place for those seeking a luxurious lifestyle on the beautiful Costa del Sol. 631