Villa · New Build Estepona. Málaga

Features

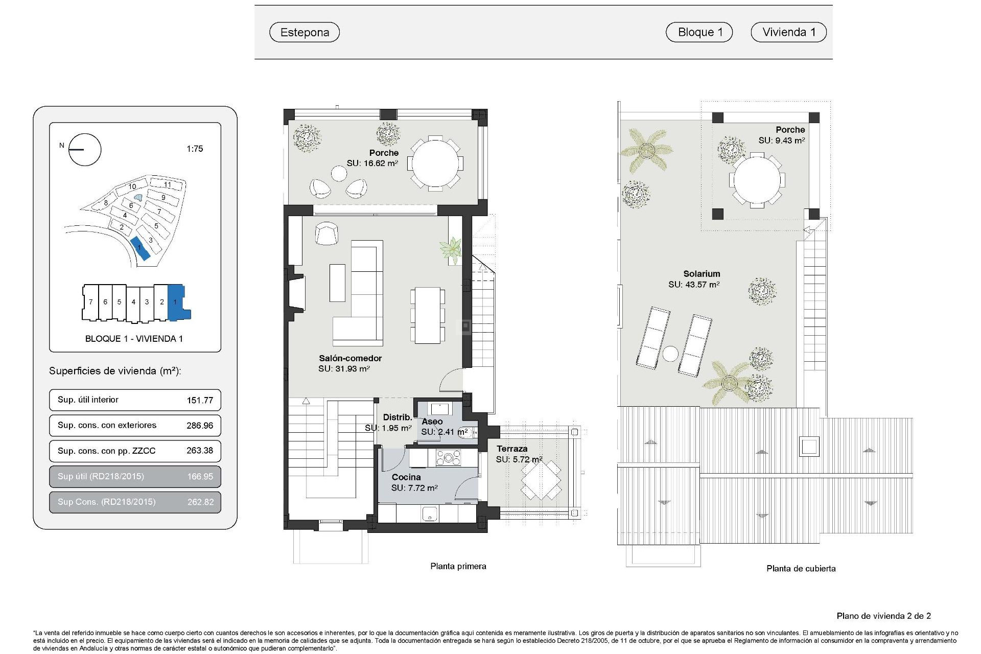
Bedrooms Bedrooms:

3

Bathrooms Bathrooms:

2

Built Built:

262m2

Pool Pool:

Yes

Parking - Space
Storage / Trastero
Gated
Number of Parking Spaces: 1
Near Golf / Golf Resort Property
Location: Coastal, Urbanisation
Air Conditioning: Pre-Installed
Double Bedrooms: 3
Near Schools
Near Commercial Center
Communal Pool
Beach: 2000 Meters
Near Bus Route
Gym
Views: Sea
Solarium: Yes
Under-Build / Basement
WC: 1
Key Ready
Terrace: 80 Msq.
Useable Build Space: 166 Msq.

Description



Location

Contact Form

Responsable del tratamiento: Invest Tropical Mar Menor, SL, Finalidad del tratamiento: Gestión y control de los servicios ofrecidos a través de la página Web de Servicios inmobiliarios, Envío de información a traves de newsletter y otros, Legitimación: Por consentimiento, Destinatarios: No se cederan los datos, salvo para elaborar contabilidad, Derechos de las personas interesadas: Acceder, rectificar y suprimir los datos, solicitar la portabilidad de los mismos, oponerse altratamiento y solicitar la limitación de éste, Procedencia de los datos: El Propio interesado, Información Adicional: Puede consultarse la información adicional y detallada sobre protección de datos Aquí.
WhatsApp