REF. NB-95776
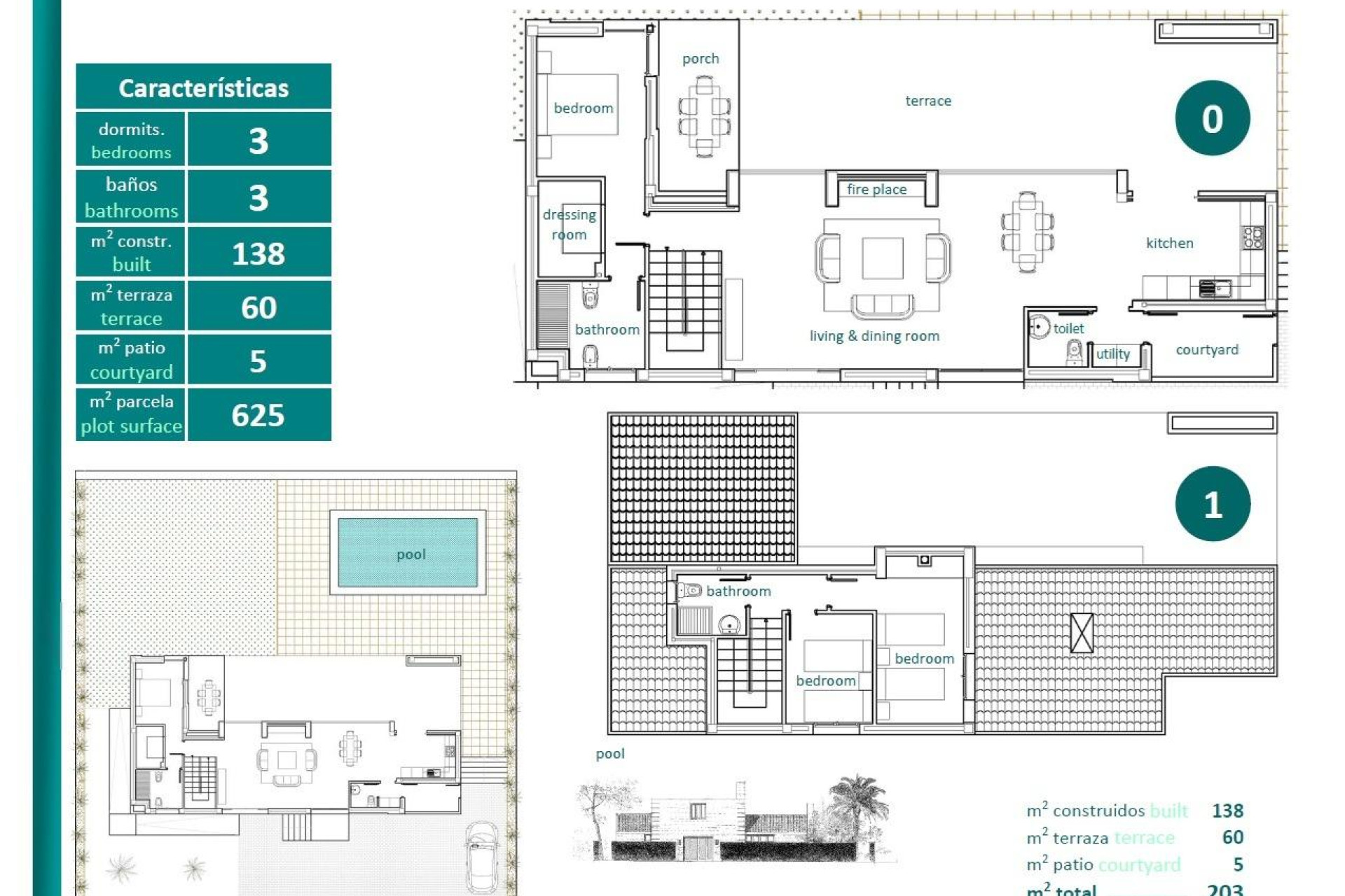
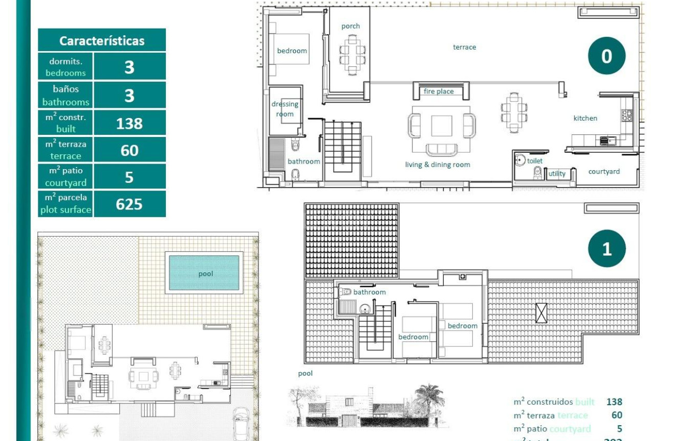
3
3
136m2
110m2
625m2
Yes
18000 Mts.
Elegant detached villas with private pool at Peraleja Golf Resort - Costa Cálida Mediterranean-style detached houses in a gated golf community 20 detached villas with 6 models to choose from with 2, 3 or 4 bedrooms and 1, 2 or 3 floors on plots ranging from 375 to 800 m2. Some units have a rooftop solarium. Located in the prestigious Peraleja Golf Resort, in the Murcia region of southern Spain. These modern Mediterranean homes are set on spacious plots, each with a private pool, garden and parking. Designed with sloping roofs and natural materials such as wood and stone, these homes blend seamlessly into the surrounding landscape, while offering elegant and timeless interiors. Comfortable living with top-quality finishes Each house features: Fully fitted open-plan kitchen with appliances Bright living/dining room with a cosy wood-burning fireplace Central air conditioning and gas-fired radiator heating Secure entrance door and motorised access gate for vehicles Private swimming pool (3.5x5.5 m) with outdoor shower Outdoor water points and lighting Fully landscaped garden ready to enjoy These properties have been carefully designed by a renowned architect, combining elegant lines with natural textures, creating a unique and harmonious environment within a secure gated community. Life at Peraleja Golf Resort - Nature and security The houses are located within Peraleja Golf Resort, which has a 24-hour security gate, piano bar and clubhouse with gourmet restaurant. The complex is surrounded by protected natural areas where hiking, jogging and cycling trails are being developed for residents. The 18-hole golf course, originally designed by the legendary Severiano Ballesteros, is currently being renovated and is scheduled to reopen in late 2025. Some homes and the social club enjoy distant sea views. Convenient location close to beaches and towns This peaceful complex offers excellent access to key locations: Towns of Sucina and Avileses - 3-5 km Mar Menor beaches - 20 km (20 min by car) City of Murcia - 25 km (20 min by car) Murcia Airport (RMU) - 25 km (15 min by car) Alicante Airport (ALC) - 80 km (45 min by car) La Zenia Boulevard Shopping Centre - 35 km Enjoy the charm of the Costa Cálida Located near the traditional Spanish town of Sucina, residents can enjoy local shops, restaurants and authentic charm, while still being close to the coast and vibrant city life. This area has become increasingly popular with international buyers for its quality of life, good infrastructure, wonderful year-round climate and access to natural landscapes and the sea. Contact us today to secure your dream villa in Peraleja Golf and start enjoying life on the Costa Cálida.