REF. SP-86131
2
2
76m2
67m2
35m2
Yes
14000 Mts.
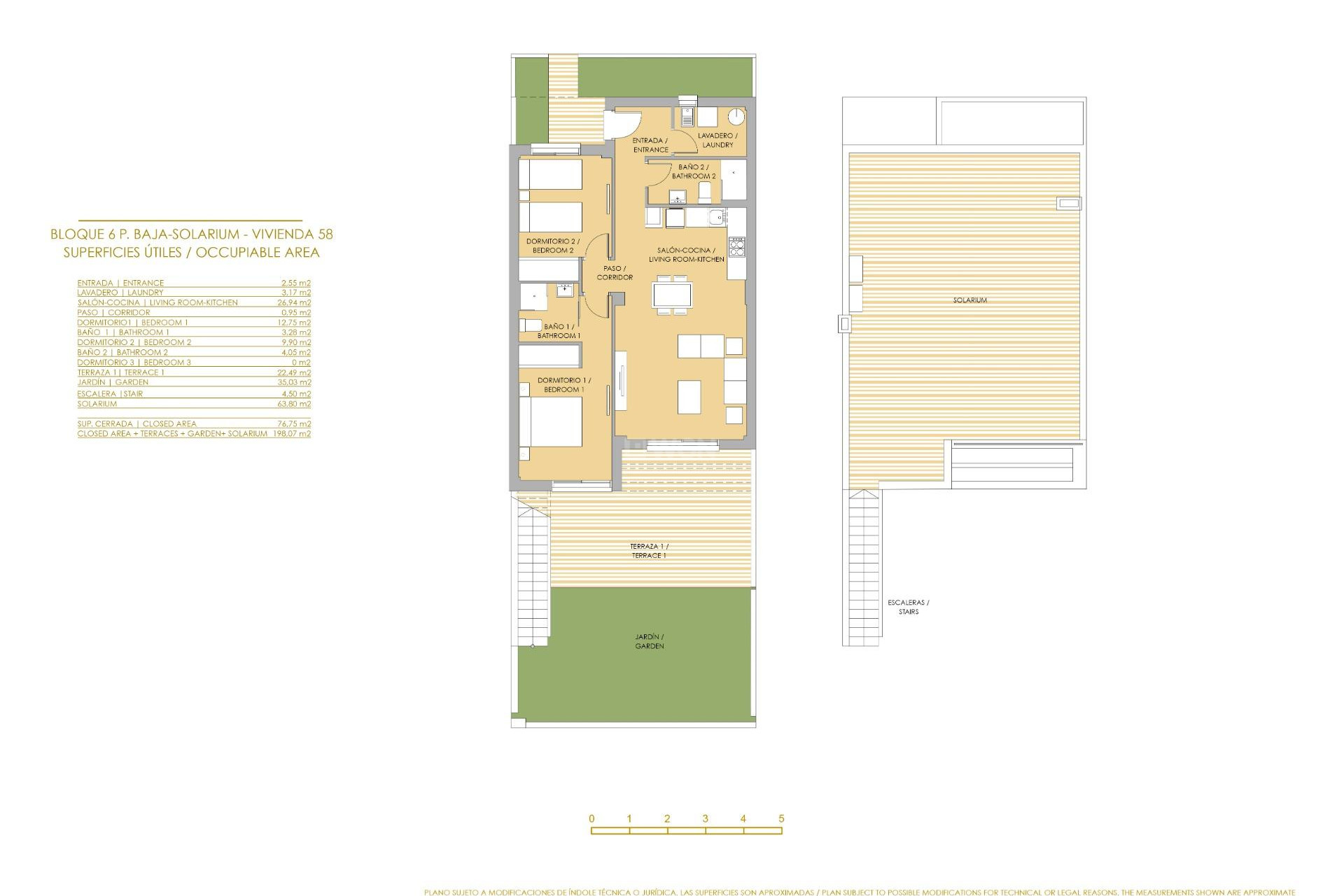
NEW BUILD RESIDENTIAL OF BUNGALOW APARTMENTS IN VISTABELLA New Build residential of modern design bungalow apartments in Vistabella. Modern bungalows with 2 and 3 bedrooms, open plan kitchen and the lounge area, fitted wardrobe, off road parking space. Townhouses and semi-detached houses with private garden and solarium. Residential has beautifully designed communal gardens with lovely communal swimming pool. These lovely spacious apartments are being built with top quality products & materials. At Vistabella Golf there is space for everyone. The course is designed so that each player can enjoy it from start to finish. Its undulating streets, strategic bunkers or lakes are some of the features that make it one of the most attractive designs in the area, where every stroke is a challenge and a pleasure for the senses. The 18 Holes of Vistabella Golf, par 72 and more than 6,000 meters in length have been designed following the guidelines of the modern fields with 4 tees of great amplitude in each hole, wide fairways and raised bunkers. The Vistabella Golf club house & restaurant & local bars & shops are within 5 minutes walk. The busy town of San Miguel de Salinas & Los Montesinos are 5 minutes drive away & the lovely Blue flag beaches at Guardamar are just 15 minutes drive away. Alicante airport is 35 minutes away & the new Corvera Murcia airport is 45 minutes away. 631