REF. SP-64944
3
2
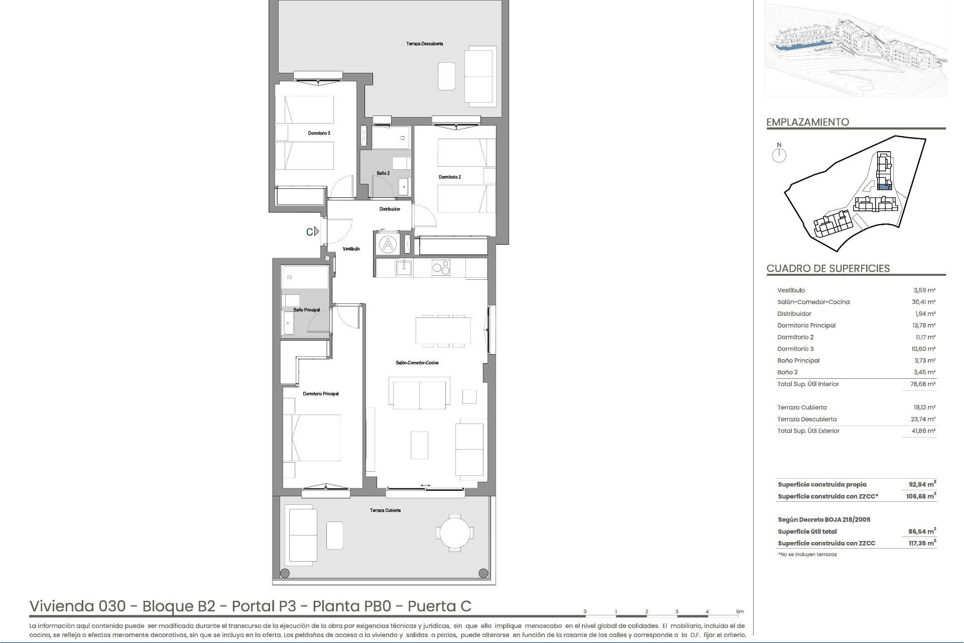
117m2
86m2
Yes
1800 Mts.
Luxurious Slow Living Homes in Mijas: A Perfect Blend of Nature, Comfort, and Convenience Discover a modern residential development in Mijas that redefines serene living. Nestled amidst nature, this community offers 75 two- and three-bedroom homes designed for a balanced and tranquil lifestyle. With stunning sea and mountain views, extensive communal areas, and proximity to urban amenities, this project is ideal for families and individuals seeking both peace and connectivity. Prime Location in Mijas Costa Located in Mijas, on the picturesque Costa del Sol, this development is surrounded by 12 kilometers of sandy beaches, scenic mountains, and a rich culinary heritage. The area is home to renowned golf courses, cultural landmarks, and modern amenities. Key points of interest include: - Málaga International Airport: 25 km (approx. 25 minutes by car). - Marbella: 35 km, offering luxury shopping, dining, and beaches. - Fuengirola: 10 km, with vibrant nightlife and a range of family-friendly activities. - Calanova Golf Club: 8 km, perfect for golf enthusiasts. - La Cañada Shopping Center: 30 km, featuring top international brands and entertainment. Exceptional Communal Amenities The development boasts 13,000 m² of landscaped gardens that create a sanctuary of relaxation and recreation. Key features include: - Central Swimming Pool: A tranquil centerpiece surrounded by chill-out zones and sun loungers. - Gym and Fitness Area: Fully equipped for your wellness journey. - Social Club and Barbecue Area: Ideal for gatherings with friends and family. - Children’s Play Area: Safe and fun for younger residents. Thoughtful Home Design Each home has been meticulously designed to maximize natural light and ventilation. Spacious terraces offer panoramic views of the Mediterranean, providing the perfect setting to unwind. Key interior features include: - Modern Kitchens: Fully fitted with top-quality appliances such as induction hob, fridge, dishwasher, and more. - Premium Bathrooms: Stylish finishes with top-quality fittings, scratch-resistant tiles, and resin shower trays. - Energy Efficiency: Climate control with hot-cold air-conditioning and solar panel integration for hot water. Sustainability Meets Luxury The development emphasizes sustainability through energy-efficient installations, eco-friendly materials, and landscaped green spaces. The gated community also ensures safety with an armoured entry system, burglar-resistant windows, and 24/7 surveillance. Embrace the Mediterranean Lifestyle Immerse yourself in the best of Mijas, a cosmopolitan town that combines traditional charm with modern living. Whether you prefer beach walks, mountain hikes, or leisurely evenings at a golf course, this development places you at the heart of it all. Experience a new way of living—welcome home to Slow Living Homes in Mijas. 631