Stadthaus · Wiederverkauf Serrato. Málaga

Stadthaus · Wiederverkauf Serrato. Málaga

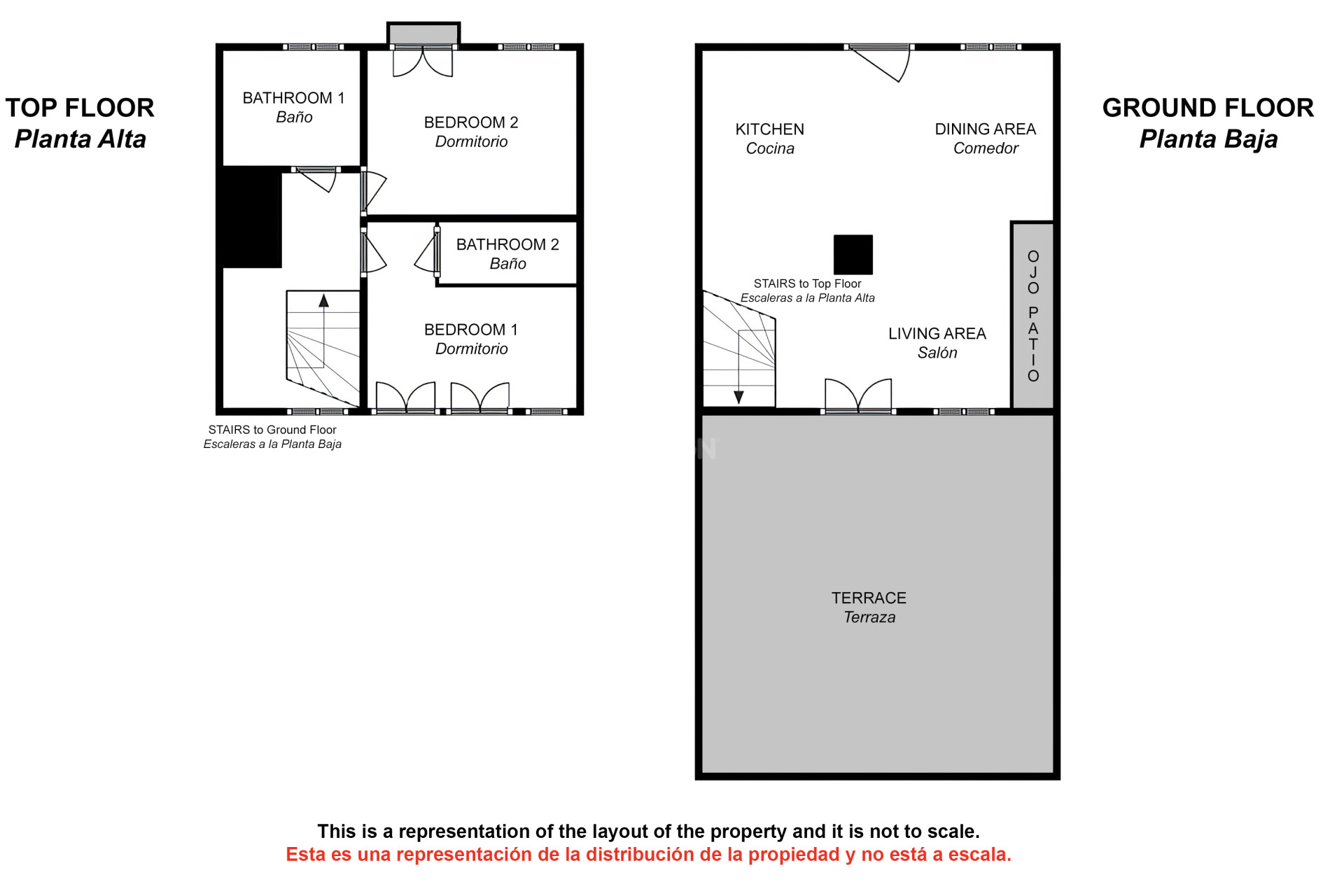
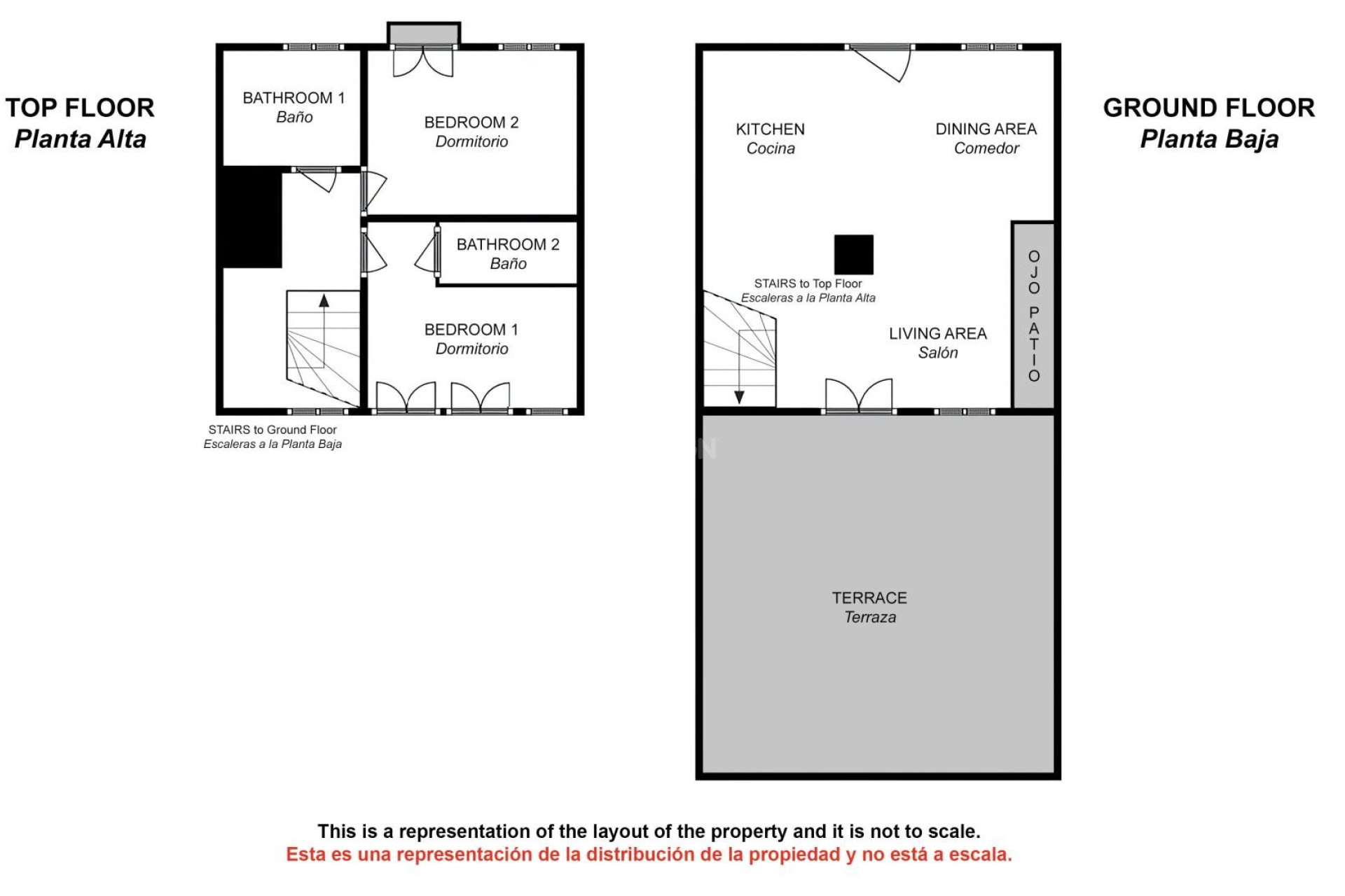
  • 150m2
  • 2
  • 2

Charakteristik

Schlafzimmer Schlafzimmer:

2

Das Badezimmer Das Badezimmer:

2

Gebaut Gebaut:

150m2

Fireplace
Mountain views
Countryside Views
Storage Space
Town Location


Ort

Kontaktformular

Responsable del tratamiento: Invest Tropical Mar Menor, SL, Finalidad del tratamiento: Gestión y control de los servicios ofrecidos a través de la página Web de Servicios inmobiliarios, Envío de información a traves de newsletter y otros, Legitimación: Por consentimiento, Destinatarios: No se cederan los datos, salvo para elaborar contabilidad, Derechos de las personas interesadas: Acceder, rectificar y suprimir los datos, solicitar la portabilidad de los mismos, oponerse altratamiento y solicitar la limitación de éste, Procedencia de los datos: El Propio interesado, Información Adicional: Puede consultarse la información adicional y detallada sobre protección de datos Aquí.
WhatsApp