REF. 56350
2
1
80m2
150m2
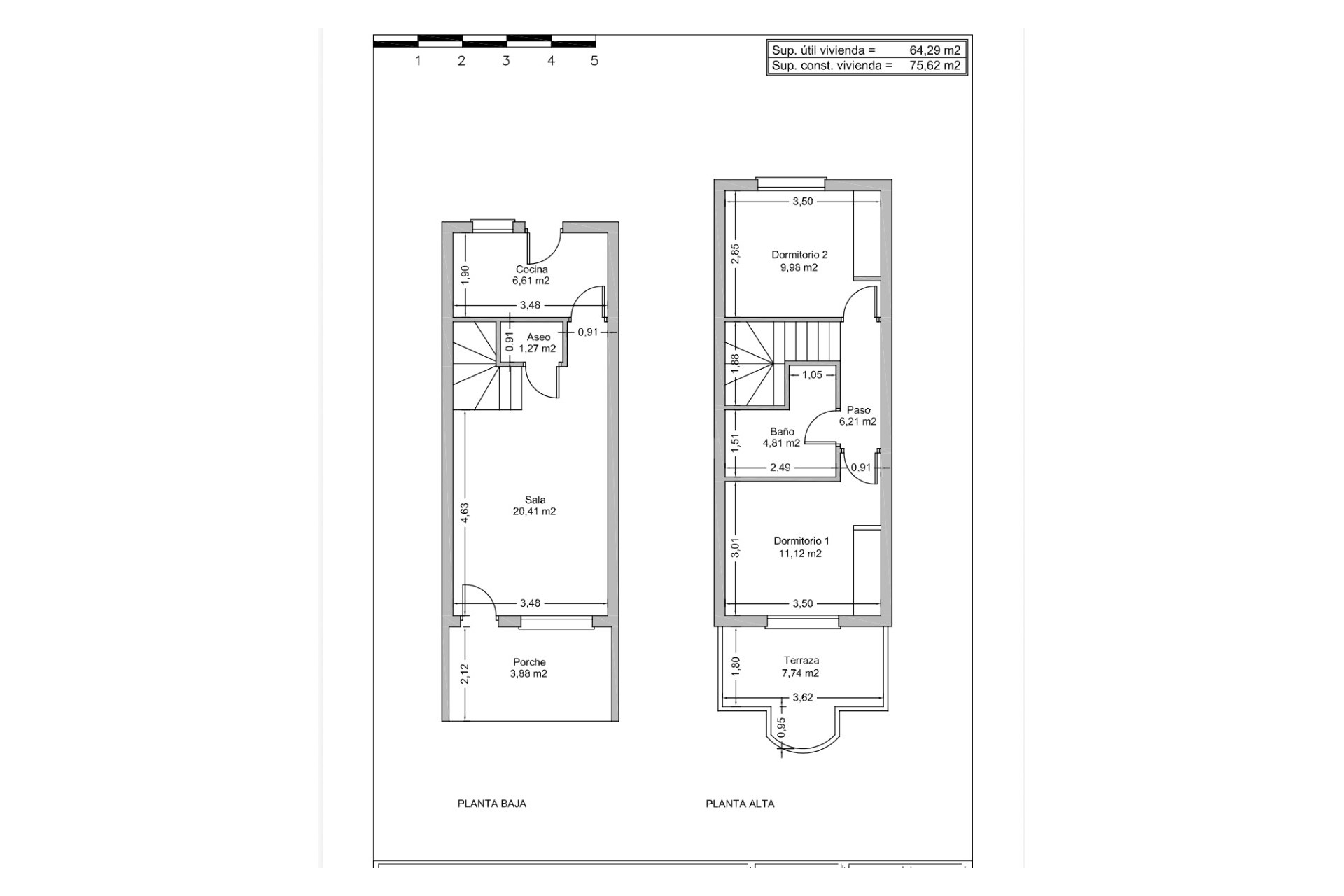
Zum Verkauf steht dieser charmante Bungalow Nr. 22, Modell FORTUNA, in der ruhigen und etablierten Urbanisation La Fiesta II, in Doña Pepa, Ciudad Quesada (Rojales, Alicante). Es handelt sich um ein zweistöckiges Duplex-Haus mit einer bebauten Gesamtfläche von 80,62 m², einem 50 m² großen privaten Garten und einer praktischen, ca. 20 m² großen privaten Veranda, die sich ideal zum Parken Ihres Autos abseits der Straße eignet. Aufteilung: Erdgeschoss: Großzügiges Wohn-Esszimmer, separate Küche, Gäste-WC und direkter Zugang zum privaten Garten. Obergeschoss: 2 helle Schlafzimmer und 1 komplettes Badezimmer mit Badewanne. Der private Garten bietet Zugang zum Gemeinschaftsbereich mit Pool, ideal zum Abkühlen an den warmen Tagen der Costa Blanca. Die überdachte Veranda bietet praktischen und komfortablen zusätzlichen Platz. Die Immobilie wird vollständig möbliert und mit Elektrogeräten ausgestattet verkauft – Sie müssen also nur Ihre Koffer packen und können sofort das mediterrane Leben genießen. Gelegen in einer sehr begehrten Wohngegend mit internationalem Flair, nah an allen Dienstleistungen von Ciudad Quesada (Supermärkte, Restaurants, Golf, Ärztezentren) und nur 10-15 Minuten von den Stränden von Guardamar und Torrevieja entfernt. Ideal als Ganzjahreswohnsitz oder als Investition für die Ferienvermietung. Möchten Sie das Objekt besichtigen? Kontaktieren Sie mich und ich zeige Ihnen dieses charmante Plätzchen in La Fiesta II!