REF. NB-14738
3
2
135m2
110m2
Ja
600 Mts.
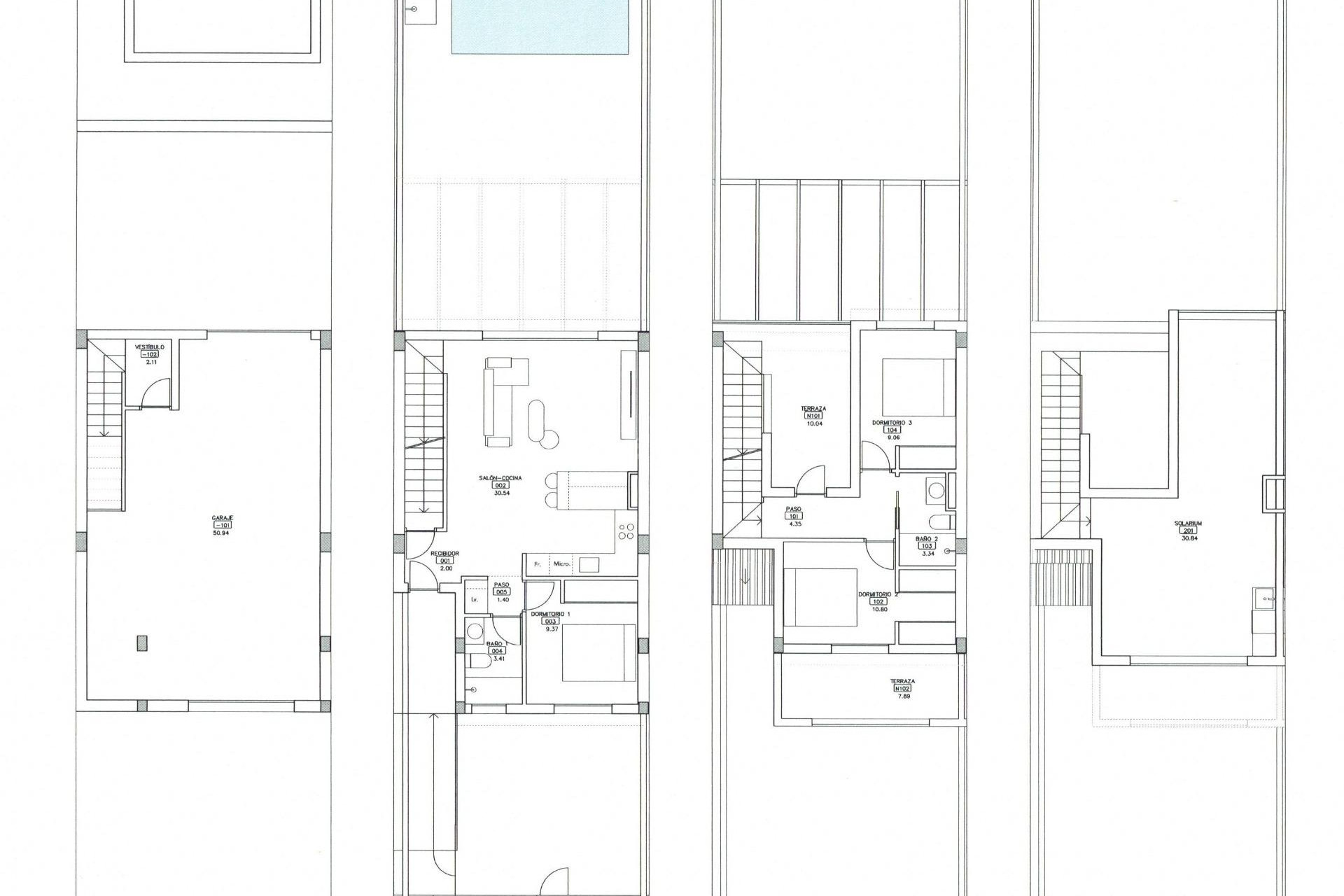
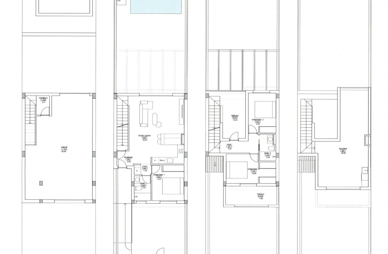
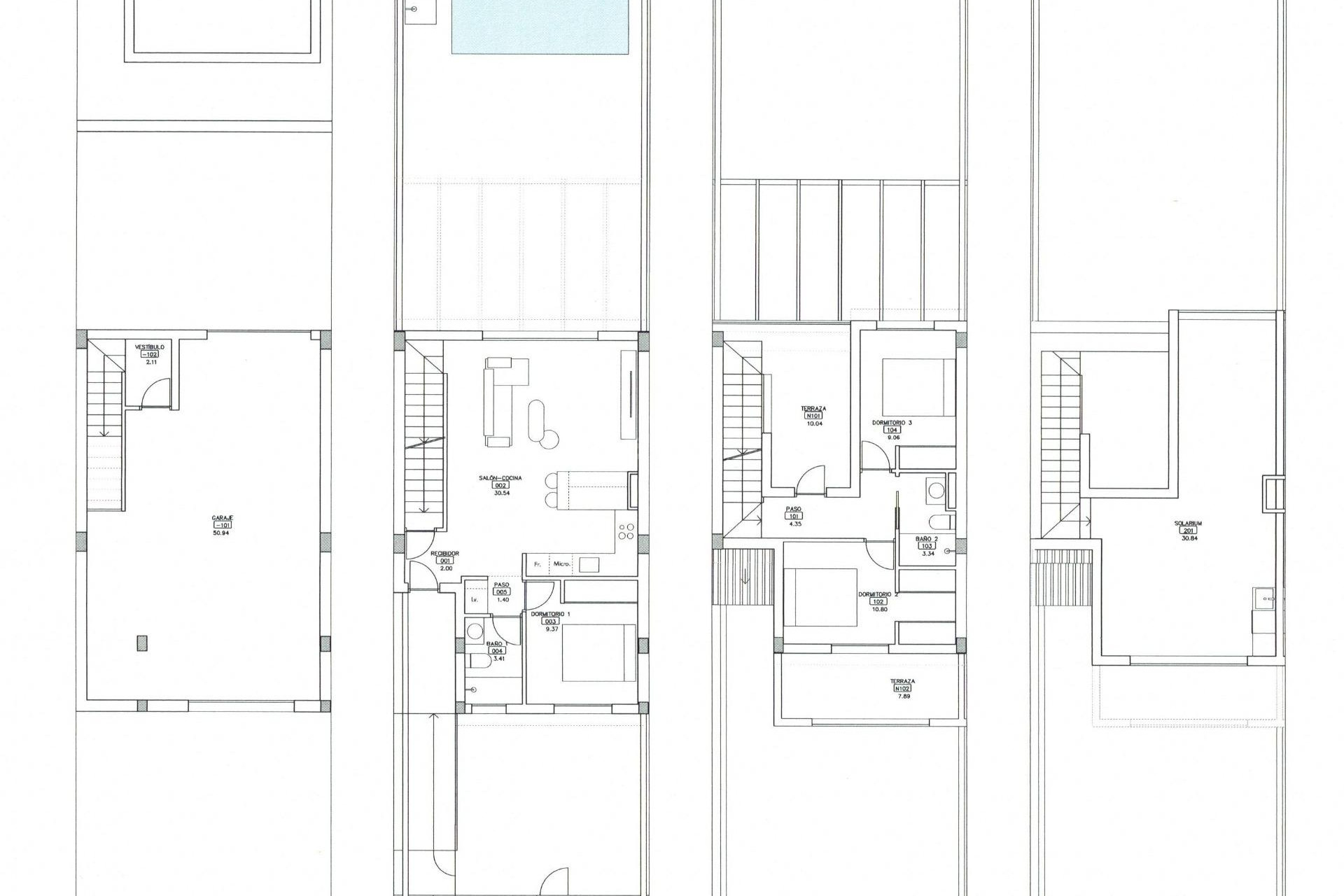
Neubau-Reihenhäuser in erster Linie am La Serena Golf in Los Alcázares Premium-Lage am Golfplatz und am Meer Entdecken Sie eine exklusive Wohnanlage mit 31 Neubau-Reihenhäusern in erster Linie am La Serena Golf in Los Alcázares, nur 600 m vom Mar Menor entfernt. Im Herzen der Costa Cálida gelegen, vereint dieser privilegierte Standort Golf, Strand und mediterranen Lebensstil. Mit allen Annehmlichkeiten in unmittelbarer Nähe und hervorragender Verkehrsanbindung ist dies der ideale Ort sowohl für den Urlaub als auch für das ganzjährige Wohnen. Moderne Häuser mit privatem Pool und Dachsolarium Jedes Haus bietet ein stilvolles, zeitgemäßes Design und helle Innenräume. Die Immobilien verteilen sich auf drei Ebenen plus Dachsolarium und bieten maximalen Komfort und Privatsphäre: Untergeschoss mit privater Garage für 2 Autos und Zugang zu einem Hof. Erdgeschoss mit offenem Wohn-/Essbereich und Küche mit Zugang zum Garten und privatem Pool, 1 Schlafzimmer und 1 Badezimmer Erster Stock mit 2 Schlafzimmern, 1 Badezimmer und 2 Terrassen Dachsolarium mit Sommerküche, ideal zum Entspannen und Genießen der Panoramablicke Ost- und Westausrichtung sorgen für hervorragendes Tageslicht und ein angenehmes Outdoor-Wohngefühl den ganzen Tag über. Hochwertige Ausstattung und Komfort Diese Häuser werden nach höchsten Standards gebaut und bieten Premium-Ausstattung, darunter: Privater Swimmingpool Tiefgarage für 2 Autos mit motorisiertem Tor Aerothermie-System für Warmwasser Vollständig installierte, kanalisierte Klimaanlage Möblierte und ausgestattete Küche Voll ausgestattete Badezimmer mit Möbeln, Spiegeln und Duschabtrennungen Sicherheitseingangstür Wohnen zwischen Meer und Fairway Umgeben von mediterraner Landschaft bietet diese exklusive Anlage ein ruhiges Wohnambiente direkt am Serena Golf, einem renommierten 18-Loch-Golfplatz, umgeben von Natur und ruhigen Seen. Die warmen, flachen Gewässer des Mar Menor eignen sich perfekt zum Schwimmen sowie für Wassersportarten wie Segeln, Stand-Up-Paddling und Kajakfahren – das ganze Jahr über. Entfernungen: Strand (Mar Menor): 600 m La Serena Golf: direkt am Komplex Zentrum von Los Alcázares: 2 km Cartagena: 22 km Stadt Murcia: 40 km Flughafen Murcia: 30 km Flughafen Alicante: 90 km Sichern Sie sich Ihren mediterranen Lebensstil Ganz gleich, ob Sie einen Hauptwohnsitz, ein Ferienhaus oder eine rentable Investitionsmöglichkeit suchen – diese Häuser bieten Luxus, Komfort und einen exklusiven Küsten-Lifestyle. Kontaktieren Sie uns noch heute, um einen Besichtigungstermin zu vereinbaren und Ihr neues Zuhause in Los Alcázares zu sichern.