REF. NB-47525
4
3
186m2
115m2
Ja
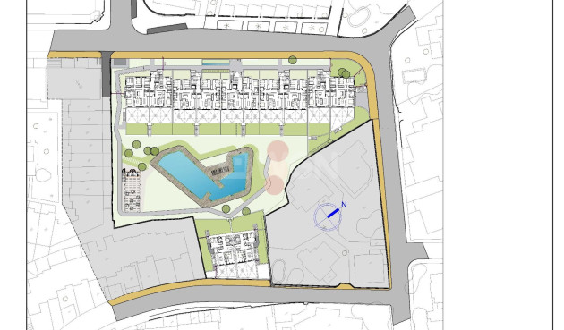
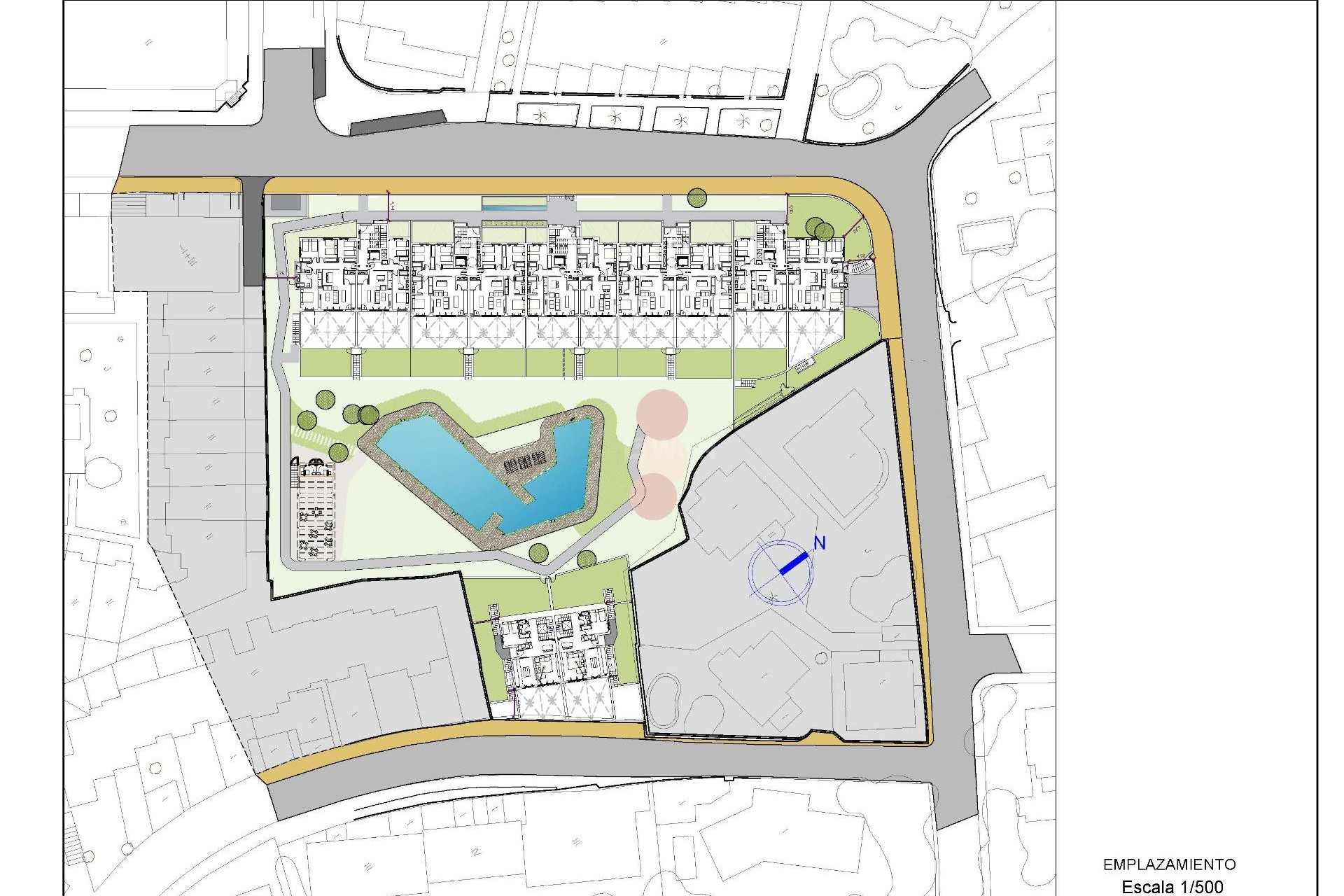
PRIVILEGIERTE ENKLAVE MIT HERVORRAGENDER AUSSICHT Wohnanlage mit 37 Häusern mit 2, 3 und 4 Schlafzimmern und 2 Doppelhaushälften, in denen Sie die Privatsphäre und Ruhe Ihres eigenen Hauses genießen können, mit großzügigen Terrassen, um das Mittelmeer an jedem Tag des Jahres zu erleben. Exklusive Gemeinschaftsbereiche zur gemeinsamen Nutzung, Abstellräume und Parkplätze. Perfekt ausgestattete Wohnungen mit allen Annehmlichkeiten: Einbauküchen, Klimaanlagen mit Airzone-Segmentierung, Aerothermie und motorisierte Jalousien. Sie werden große Gartenbereiche, ein multifunktionales Schwimmbad mit Strandzugang, Sonnenliegen im Wasser und Schwimmbahn, einen Kinderbereich im Freien, einen Fitnessbereich im Freien und einen voll ausgestatteten Txoco-Bereich genießen können. Die Lage ist ausgezeichnet: nur 700 Meter vom Strand von La Carihuela entfernt, im gleichnamigen Viertel und in unmittelbarer Nähe von Torremolinos. Die reichhaltige mediterrane Gastronomie mit Fisch und Meeresfrüchten als Protagonisten, das angenehme Klima mit mehr als 320 Sonnentagen im Jahr und einer durchschnittlichen Jahrestemperatur von 20º C, die zugänglichen Strände, Feste und Traditionen vervollständigen den Charme dieser Enklave Malagas. Dank der Nähe zu Málaga, dessen internationalem Flughafen (nur 8,5 km entfernt) und der Anbindung an die Autobahn, verfügt sie über alle Dienstleistungen der Hauptstadt. Am Meer zu leben ist verlockend, aber in einer Stadt mit allen Dienstleistungen, einem Kultur- und Freizeitangebot für jeden Geschmack, mit guter Anbindung an die Hauptstadt Málaga und mit internationalem Flair ist ein Luxus, den man sich leisten kann.