REF. NB-98573
3
3
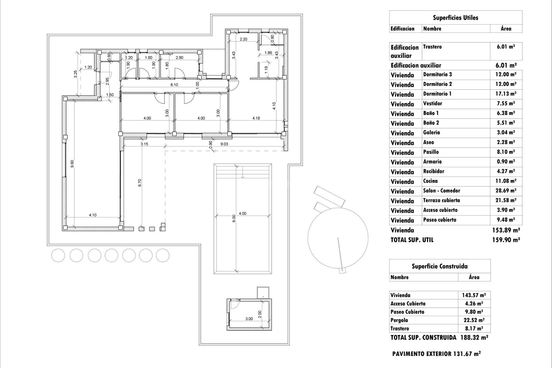
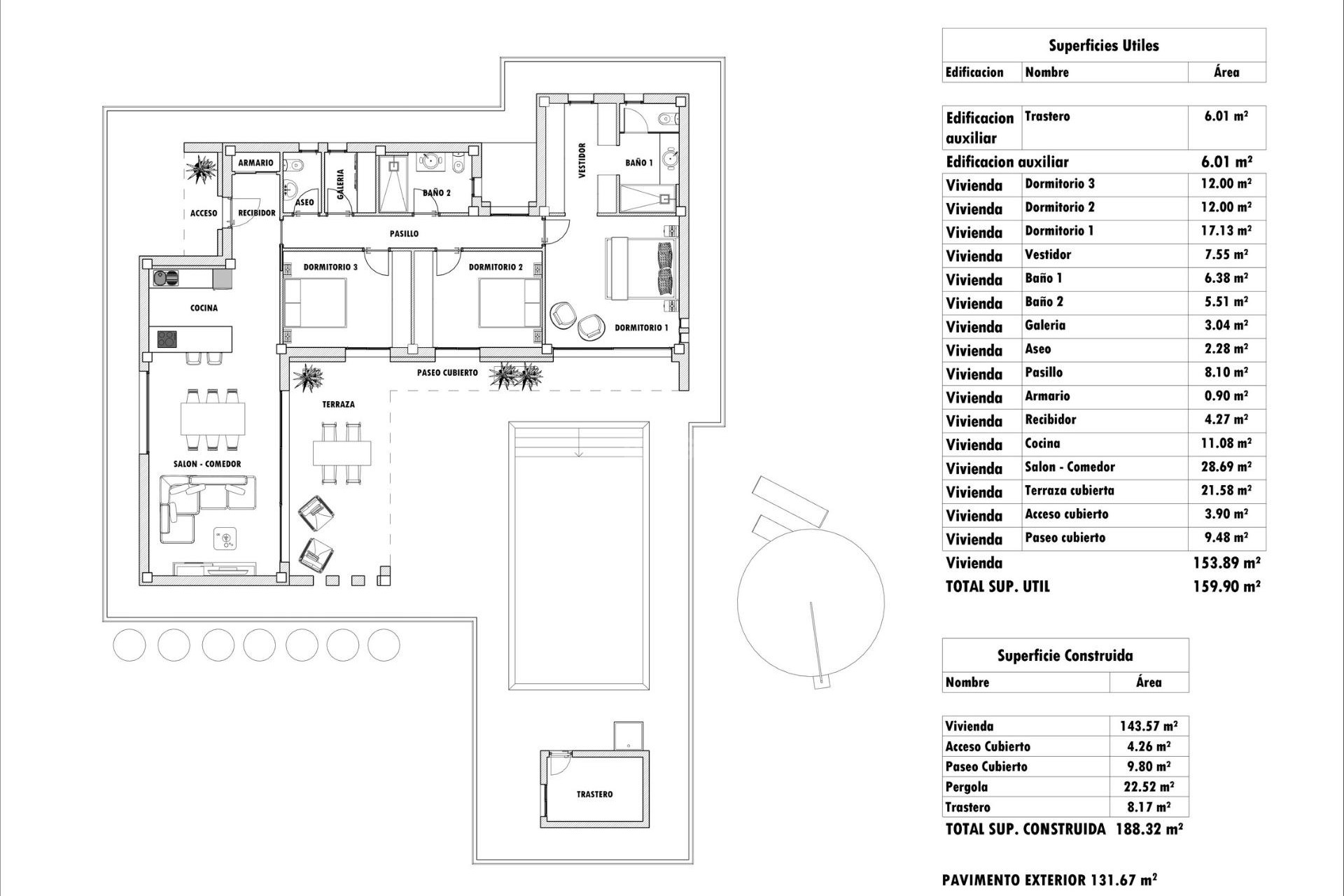
188m2
159m2
13.172m2
Ja
25000 Mts.
Neubauvillen in der Gemeinde Aspe. Neubauvillen mit verschiedenen Modellen zur Auswahl mit 2, 3 oder 4 Schlafzimmern, 1 oder 2 Etagen und in Plattenbauweise oder mit Struktur: Je nach Modell und gewähltem Grundstück wird der genaue Preis berechnet. Alle Villen werden auf rustikalen Grundstücken von mehr als 10.000 m² gebaut, von denen etwa 2.500 m² eingezäunt werden. Die Villen verfügen über eine offene Küche mit Wohnzimmer, Einbauschränke, einen privaten Pool, eine Veranda, einen Abstellraum und einen Außenparkplatz. Es stehen mehrere Grundstücke zur Auswahl. Für die Preisberechnung wurde ein Grundstück mit einem Preis von 75 000 Euro zugrunde gelegt (bei Wahl eines anderen Grundstücks ist die Differenz entsprechend dem Preis des Grundstücks zu zahlen). Die Fertigstellung erfolgt im Selbstbau, die Übergabe erfolgt ca. 12 Monate nach Erteilung der Baugenehmigung. Wenn Sie eine ruhige Umgebung suchen, in der Nähe von typisch spanischen Dörfern, fernab vom Massentourismus, umgeben von Bergen, mit einem sehr großen Grundstück und nur etwa 30 Minuten vom Meer entfernt, dann ist dies Ihr Zuhause. Aspe ist ein typisch spanisches Dorf mit allen Dienstleistungen für den täglichen Bedarf, umgeben von Bergen und mit mehreren Naturlandschaften in der Nähe, in denen Sie Wanderungen oder Mountainbike-Touren unternehmen können. Es liegt 25 km vom Strand, 9 km von Elche und etwa 20 km vom Flughafen Alicante entfernt.