REF. SP-35227
5
5
461m2
407m2
1.013m2
Ja
2200 Mts.
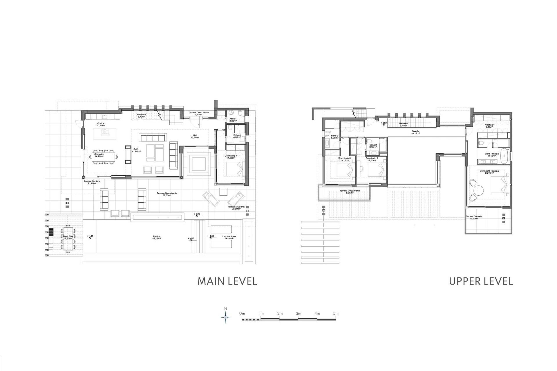
NEU GEBAUTE LUXUSVILLEN IN DER NÄHE VON MARBELLA Eingebettet in die illustre Enklave von Nueva Andalucia, bietet New Project seinen Bewohnern einen luxuriösen Rückzugsort, der die wahre Essenz des Luxuslebens verkörpert. Die privilegierte Lage in Nueva Andalucia bietet den Bewohnern einen bequemen Zugang zu einer Fülle von Annehmlichkeiten in der Nähe sowie einen herrlichen Blick auf die umliegenden Berge und das Meer. Die Urbanisation ist ein Refugium der Innovation und des Luxus und ein Beweis für die Synergie von modernem Design und zeitloser Eleganz. Den Bewohnern wird ein gehobener Lebensstil geboten, bei dem die besten Elemente der Architektur, der Sicherheit und der individuellen Gestaltung miteinander kombiniert werden. Dieses visionäre Projekt definiert das Konzept einer modernen Urbanisation neu und bietet einen unvergleichlichen Lebensstil, der sich durch Raffinesse, Sicherheit und geniales Design auszeichnet. Die Urbanisation besteht aus 26 neu gebauten Luxusvillen und stellt eine harmonische Mischung aus architektonischer Brillanz und funktionaler Eleganz dar. Die von dem visionären Architekten Ismael Mérida entworfenen Villen sind moderne Wunderwerke, die sich jeweils über drei Ebenen erstrecken, einschließlich Solarium und Untergeschoss, die alle durch ein Erdgeschoss verbunden sind. Die Villen sind nach den Himmelsrichtungen Süden, Osten, Südosten und Westen ausgerichtet und folgen so dem Lauf der Sonne, die im Laufe des Tages bezaubernde Farbtöne und Schatten wirft. Was dieses Projekt wirklich auszeichnet, ist sein innovatives Konzept für die Verkehrserschließung. Unterhalb der Villen befindet sich eine raffiniert angelegte Allee für den Autoverkehr und die Zufahrt zu den privaten Carports und Garagen, die diskret vor den Blicken verborgen sind. Aus der Vogelperspektive fällt der Blick nicht auf ein Straßennetz, sondern auf ein Netz von Fußgängerwegen und üppigen Landschaften, unter denen die Fahrzeuge versteckt zu den Garagen und Carports führen. Dieses fesselnde Merkmal erhöht nicht nur den ästhetischen Reiz, sondern fördert auch eine Atmosphäre der Gelassenheit. Eingebettet in die Ruhe einer bewachten Wohnanlage, die rund um die Uhr bewacht wird, bietet die Urbanisation eine Umgebung, in der man sich vollkommen sicher fühlen kann. Ein Wachmann, der am Eingang stationiert ist, sorgt für zusätzliche Sicherheit und Beruhigung. Ein einziger Ein- und Ausgang erhöht nicht nur die Sicherheit, sondern trägt auch zu dem Gefühl der Abgeschiedenheit und Privatsphäre bei, das diese exklusive Enklave auszeichnet. Die Bewohner können sich darauf verlassen, dass nur sie selbst Zugang zur Wohnanlage haben, und Gästen wird der Zutritt nach Genehmigung gewährt. Die Vielfalt dieser Urbanisation wird durch drei verschiedene Typologien gefördert. Die kleinen und mittelgroßen Residenzen weisen eine raffinierte Ähnlichkeit auf, während die größeren Villen mit zwei Grundstücken ein großzügiges Leben im großen Stil bieten. Es werden Upgrade-Pakete angeboten, die es den Bewohnern ermöglichen, ihre Villa genau auf ihre Wünsche abzustimmen. 23 dieser Häuser weisen eine harmonische Symmetrie in der Größe auf und sorgen für eine einheitliche und einladende Atmosphäre in der gesamten Anlage. Die 23 Häuser sind in 2 Typologien unterteilt: Typologie A, entworfen von GC-Studio, und Typologie B, entworfen von J. A. Flores. Die 3 Signature Villas, die als Aushängeschilder der Anlage gelten, verleihen der Anlage einen ganz eigenen Charme und sind ein Wahrzeichen für Prestige. Diese 3 Villen sind als Typologie C klassifiziert und wurden von Pedro Peña entworfen. Alle Villen verfügen nicht nur über ihre eigenen, maßgeschneiderten Annehmlichkeiten wie Unterhaltungsräume, Heimkinos und Fitnessstudios, sondern haben auch Zugang zu Gemeinschaftseinrichtungen wie einem unglaublichen Fitnessraum und einem hochmodernen SPA mit Innenpool, Hammam, Sauna und Eisbad. Die Villen des Typs A bestehen aus kleineren Wohnungen, die sich durch eine tadellose Innenausstattung auszeichnen, die vom renommierten Designstudio GC-Studio entworfen wurde. Diese Villen werden in zwei Unterkategorien eingeteilt, A1 und A2. Diese unterscheiden sich durch ihre Ausrichtung, die Anordnung der Schlafzimmer auf jeder Ebene und die Verfügbarkeit von privaten Carports oder Garagen. Die Villen des Typs A1 verfügen über einen privaten Carport, der über die Allee unter den Wohnungen zugänglich ist, während die Villen des Typs A2 über eine eigene Garage verfügen, die ebenfalls über die gleiche Allee zugänglich ist. Neben ihren besonderen Merkmalen sind alle Villen der Typologie A mit einer Unterhaltungsebene ausgestattet, die den Bewohnern ein ganz besonderes Lebensgefühl vermittelt. Die Typology A Villen erhöhen das Wohnerlebnis mit privaten Infinity-Pools und sorgfältig angelegten Gärten. Als zusätzliche Luxus- und Unterhaltungsebene ist jede Residenz mit einem maßgeschneiderten Solarium ausgestattet, das den Bewohnern einen einzigartigen und privaten Raum für Freizeit und Entspannung bietet. Die gemeinschaftlich genutzten Räume sind ein Beweis für das Engagement für Wellness und Genuss. Ein luxuriöses SPA und ein hochmoderner Fitnessraum sorgen für das körperliche Wohlbefinden der Bewohner, während die sorgfältig gepflegten Gärten eine Oase der Entspannung bieten. Das SPA verfügt über luxuriöse Annehmlichkeiten wie einen Innenpool, ein Hammam, eine Sauna und ein Eisbad, die alle sorgfältig ausgewählt wurden, um den Lebensstil der Bewohner zu verbessern. Die Gemeinschaftsgärten sind makellos gepflegt und bieten den Bewohnern grüne Bereiche, die ideal zum Entspannen sind. 631