REF. NB-26635
3
2
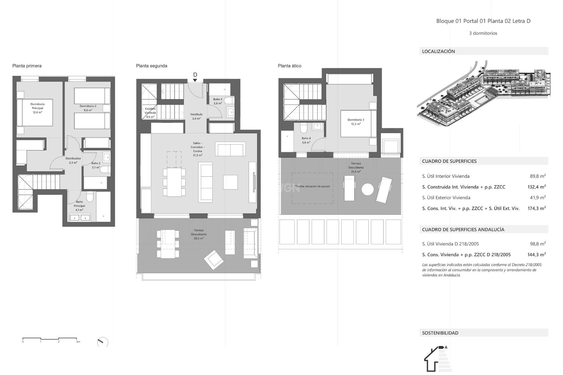
121m2
90m2
Ja
1500 Mts.
NEUE WOHNANLAGE IN DER NÄHE VON ESTEPONA Neubau einer exklusiven Wohnanlage in Cancelada, einer der besten Gegenden der neuen Goldenen Meile von Estepona. Die Wohnanlage verfügt über 82 Wohnungen, die sich auf 4 Etagen verteilen. Die meisten davon sind Maisonette-Wohnungen mit 2 und 3 Schlafzimmern mit Terrassen und/oder Gärten sowie Penthäuser mit Solarien. Alle Wohnungen verfügen über einen Abstellraum und eine Garage, und von den meisten kann man einen herrlichen Blick auf das Mittelmeer genießen. Die Wohnanlage verfügt über einen Swimmingpool, ideal um die mehr als 320 Sonnentage und das gute Wetter an der Costa del Sol zu genießen, sowohl alleine als auch mit der Familie. Sie haben außerdem Zugang zu einem ausgestatteten Fitnessraum, einem Sportplatz im Freien, 2 Petanque-Plätzen und dem exklusiven Clubhaus von Cancelada. Die Anlage befindet sich in einer privilegierten Lage in der Nähe von Estepona, nur wenige Minuten vom Strand entfernt und in der Nähe von Golfplätzen. Nur 10 Minuten von Marbella und 45 Minuten vom internationalen Flughafen Málaga entfernt. Mit einer durchschnittlichen Jahrestemperatur von 20º und mehr als 320 Sonnentagen im Jahr können Sie eine echte Lebensqualität genießen. Sie werden eine große Auswahl an Golfplätzen, kilometerlange ruhige Küsten, Sonne, Natur und die Gastronomie der Gegend genießen, von den internationalen Restaurants bis hin zur einladenden lokalen Küche. Der Ort verbindet auf perfekte Weise die Tradition seiner gepflasterten Straßen mit weiß getünchten Häusern und Innenhöfen mit farbenfrohen Blumenkübeln mit Modernität und den besten Freizeiteinrichtungen der Costa del Sol. Die privilegierte Lage zwischen dem Meer und den Bergen macht sie zu einem der attraktivsten Reiseziele der Provinz.