REF. NB-99633
6
7
708m2
600m2
1.177m2
Ja
2500 Mts.
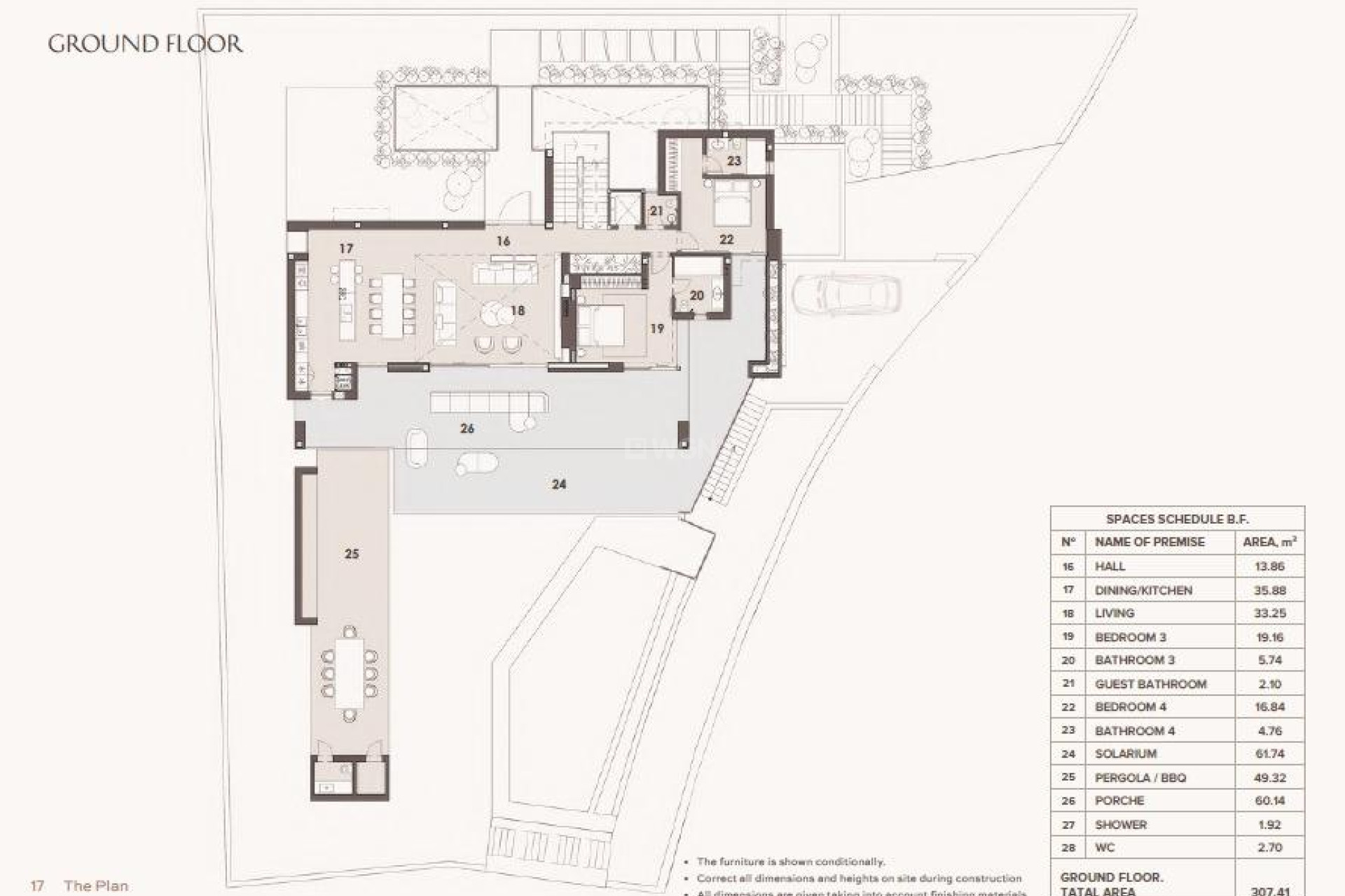
Luxuriöses Wohnen in Cascada de Camoján, Marbella: Eine Oase der Privatsphäre und Eleganz. Exklusive Lage an der Goldenen Meile von Marbella. Cascada de Camoján liegt an der berühmten Goldenen Meile von Marbella und ist eine elitäre Wohnanlage, die für ihr luxuriöses Ambiente, ihre üppigen Naturlandschaften und ihren Sinn für Ruhe bekannt ist. Cascada de Camoján ist bekannt für seinen atemberaubenden Blick auf die Berge und das Meer und bietet seinen Bewohnern einen privaten und ruhigen Lebensstil abseits des geschäftigen Treibens der Stadt und dennoch in der Nähe der wichtigsten Annehmlichkeiten. Diese exklusive Gegend verbindet natürliche Schönheit mit anspruchsvollem Wohnen und ist damit eine der prestigeträchtigsten Gegenden Marbellas. Nähe zu Marbellas Hauptattraktionen. Diese Villa in Cascada de Camoján liegt nur 5 km von Marbellas charmantem Stadtzentrum entfernt, wo Sie gehobene Boutiquen, feine Restaurants und ein pulsierendes Nachtleben erwarten. Die unberührten Strände von Marbella sind nur 4 km entfernt und ermöglichen einen schnellen Zugang zu sonnenverwöhnten Stränden und Aktivitäten am Meer. In der Nähe befinden sich auch mehrere weltbekannte Golfplätze, darunter der Marbella Golf Country Club, der etwa 10 km entfernt liegt und ein Paradies für Golfliebhaber ist. Für Reisende ist der internationale Flughafen Málaga nur 55 km von der Residenz entfernt, so dass die Anreise für internationale Besucher problemlos möglich ist. Ein architektonisches Wunderwerk, das Luxus mit Natur verbindet. Dieses atemberaubende Herrenhaus ist ein architektonisches Meisterwerk, das sich nahtlos in die natürliche Umgebung einfügt. Mit sechs Schlafzimmern und sieben Badezimmern bietet das Anwesen reichlich Platz sowohl für intime Zusammenkünfte als auch für größere Veranstaltungen. Die Villa verfügt über weitläufige Innen- und Außenbereiche, von überdachten Terrassen bis hin zu einem einladenden Solarium und einer großen Terrasse am Pool, die zum Sonnenbaden einlädt. Das Hauptschlafzimmer hat einen direkten Zugang zu einer privaten Terrasse, von der aus man einen herrlichen Blick auf das Mittelmeer hat. Ideal zum Unterhalten und Entspannen. Diese Residenz ist auf luxuriösen Komfort ausgelegt, mit einzigartigen Designelementen, hochwertigen Materialien und einer großzügigen Aufteilung, die sich perfekt für Familientreffen und Unterhaltungen eignet. Ein gut ausgestatteter Grillbereich lädt zum Essen im Freien ein, während die große Sonnenterrasse und die Terrasse am Pool zum Entspannen und Genießen der Sonne von Marbella einladen. Cascada de Camoján bietet ein unvergleichliches Wohnerlebnis, das Eleganz, Privatsphäre und Zugang zu Marbellas besten Annehmlichkeiten vereint.